Eladó családi ház Mikepércs 134 500 000 Ft

Leírás

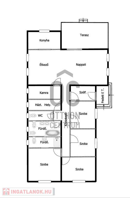
Mikepércs központjának közelében eladó egy 2023-ban épült, szinte új, nagyon szép állapotú, bruttó 125 m2-es, földszintes, nappali-amerikai konyha + 4 külön nyíló szobás, önálló, dupla komfortos családi ház, mely 2283 m2-es telken helyezkedik el. A telek adottságok lehető teszik a megosztását, így a későbbiekben eladható vagy beépíthető.

Az ingatlan étkezős-konyhás-nappalival, 4 szobával és 2 fürdőszobával 4 wc-vel rendelkezik, így rendkívűl ideális választás családok számára is. A tágas nappali világos és barátságos légkört teremt, amely tökéletes helyszíne a közös családi pillanatoknak. A ház prémium kivitelezésének köszönhetően nemcsak esztétikai élményt nyújt, hanem a fenntarthatóságra is nagy hangsúlyt fektet. Passzívház elvekhez közelinek tervezett otthonban gáz (cirko) fűtés és klímás hűtés biztosítja a kellemes hőmérsékletet egész évben.
Az épület kiváló minőségű anyagok felhasználásával készült, így garantálja az új lakók számára a tartósságot és az alacsony fenntartási költséget.
Az ingatlanhoz tartozik egy 17 négyzetméteres terasz, ahol a szabadban való pihenés és szórakozás élménye egyaránt garantált.
A beépített bútorok és szekrények, valamint a LED hangulatvilágítás pedig a modern életvitel kényelmét szolgálja.

További tulajdonságai:
- 38 m2-es nappali-étkező-konyha
- 4 külön nyíló szoba, laminált parketta burkolattal
- 3 rétegű üveggel szerelt, hőszigetelt műanyag nyílászárók
- Porotherm 30 K tégla + 15 cm hőszigetelés, 40 cm födémszigetelés
- Bramac cserép héjazat
- Modern, gépesített konyhabútor, újszerű gépekkel
- Padlófűtés
- A fedett előtér mellett 17 m2-es hátsó terasz kapcsolódik a nappalihoz
- 2 nagy méretű fürdőszoba, igényes burkolatokkal, WC-vel, káddal és zuhanyzóval
- Külön WC kézmosóval
- Járható, pakolható padlástér
- Nappaliban kandalló beállítási lehetőség ( SCHIEDEL kémény)
- LED lámpák és LED-es rejtett világítás
- Szuper alacsony rezsivel fenntartható

Egy otthon, ahova csak költöznie kell!
ENGEDJE EL AZ ÉPÍTKEZÉSSEL JÁRÓ NEHÉZSÉGEKET, VÁSÁROLJON TELJESEN KÉSZ CSALÁDI HÁZAT KEDVEZŐ ÁRON!
A környék ellátottsága kiváló, hiszen a közeli üzletek, iskolák és egészségügyi intézmények mindössze néhány percnyi távolságra találhatók.
Azoknak, akik szeretik a kertvárosi, barátságos környezetet, és fontos a belváros közelsége is.

Hívjon, és egyeztessünk időpontot a megtekintéshez!

Az ingatlanról teljes körű videó felvétel készült, a megtekintése érdekében weboldalunkon keresse a H513517 regisztrációs számon vagy keressen telefonon közvetlenül.

Családi ház részletei

Ár: 134 500 000 Ft
Méret: 125 négyzetméter
Azonosító: 11602059
Telek: 2283 négyzetméter
Ingatlan állapota: Kitűnő
Jelleg: családi ház
Építőanyag: Kérdezzen rá a hirdetőtől »
Fűtés jellege: Cirkó
Egész szobák: 5

Egyéb jellemzők

  • Csatorna
  • Garázs
  • Kábel TV
  • Melléképület
  • Parketta
  • Pince
  • Terasz