Eladó családi ház Mohács 54 990 000 Ft

Leírás

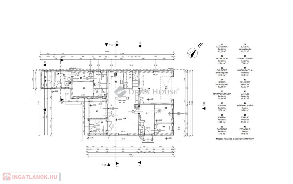
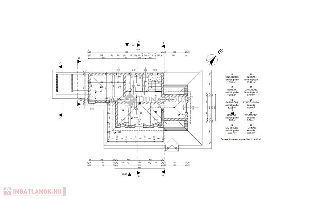
Félkész családi ház eladó Mohács egyik legszebb utcájában alakítsa saját elképzelése szerint! Mohács egyik legszebb utcájában a Táltos utcában kínálunk megvételre egy félkész állapotú családi házat, amely kiváló lehetőséget nyújt azok számára, akik saját igényeik szerint szeretnék befejezni és kialakítani jövőbeli otthonukat.Az ingatlan 880 m²-es telken helyezkedik el, a tervezett 333 m² alapterületű épület pedig tágas, jól alakítható tereket biztosít, így akár egy nagyobb család számára is ideális prémium otthon valósítható meg.A kivitelezés folytatásában teljes körű segítséget tudunk biztosítani, hiszen minden szükséges szakember rendelkezésre áll az építkezés befejezéséhez.Az építkezés főbb adatai38 cm-es Leiertherm tégla falazatMonolit födém mindkét szintenTerrán Danubia barna cserépfedésA telek teljes közműellátottsággal rendelkezik: villany gáz víz szennyvíz kábel TVAz ingatlan jelenlegi állapota nagy szabadságot ad a belső terek kialakításában, így minden részlet a leendő tulajdonos elképzelései szerint valósítható meg. Ha egy kiváló elhelyezkedésű ingatlant keres, ahol saját elképzelései szerint alakíthatja ki álmai otthonát, akkor ez a lehetőség Önre vár.Álmodja meg és valósítsa meg otthonát Mohács egyik legjobb utcájában, a Táltos utcában!

Családi ház részletei

Ár: 54 990 000 Ft
Méret: 333 négyzetméter
Azonosító: 11615939
Irodai azonosító: HZ075744-5213800
Cím: Eladó 333 nm-es ház Mohács
Telek: 880 négyzetméter
Ingatlan állapota:
Jelleg: családi ház
Építőanyag: Tégla
Fűtés jellege: Egyedi
Fűtés módja: Gáz
Szintek száma: Földszintes
Egész szobák: 8

Térkép

Hasonló családi ház hirdetések

Eladó családi ház

Mohács

Félkész családi ház eladó Mohács egyik legszebb utcájában alakítsa ...

Eladó családi ház

Mohács

Félkész családi ház eladó Mohács egyik legszebb utcájában alakítsa ...

Eladó családi ház

Mohács

Félkész családi ház eladó Mohács egyik legszebb utcájában! Ez a lakóparki ...

Hasonló családi ház hirdetések

Eladó családi ház

Mohács

Félkész családi ház eladó Mohács egyik legszebb utcájában alakítsa ...

Eladó családi ház

Mohács

Félkész családi ház eladó Mohács egyik legszebb utcájában alakítsa ...

Eladó családi ház

Mohács

Félkész családi ház eladó Mohács egyik legszebb utcájában! Ez a lakóparki ...