Eladó családi ház Monok 12 999 000 Ft

Leírás

Monok központi, mégis csendes részén kínálom megvételre ezt a kétgenerációssá alakítható, felújítandó állapotú ingatlant, amely kiváló alapot nyújt egy tágas, személyre szabott otthon kialakításához.

Főbb jellemzők
Tégla építésű, masszív szerkezet
3 szoba az alsó szinten, összesen 80 m² lakótér
A felső szint kb. 64 m², külön lépcsőházon keresztül közelíthető meg, jelenleg szerkezetkész
Cserép tetőfedés
1741 m²-es telek, amely kiválóan alkalmas kertészkedésre, gazdálkodásra vagy további építmények elhelyezésére

Miért jó választás?
Kétgenerációs otthon kialakítására tökéletes, hiszen a felső szint külön bejárattal rendelkezik
Felújítandó állapota miatt teljes mértékben a saját elképzeléseid szerint formálhatod
A nagy telek rengeteg lehetőséget kínál: melléképület, garázs, kert, állattartás
Monok főutcáján található, így könnyen megközelíthető, mégis nyugodt lakókörnyezetet biztosít

Környék

Monok rendezett, barátságos település, jó közlekedéssel és kellemes vidéki hangulattal. Ideális választás családoknak, befektetőknek vagy azoknak, akik tágas, jól alakítható ingatlant keresnek.

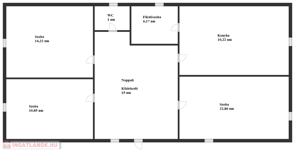
Helységlista:

Szoba: 14,22 nm

Szoba: 10,85 nm

Wc: 1 nm

Fürdőszoba: 6,17 nm

Nappali, Étkező, Közlekedő: 15 nm

Konyha: 10,22 nm

Szoba: 22 nm

Keressen bizalommal és nézzük meg !

Családi ház részletei

Ár: 12 999 000 Ft
Méret: 80 négyzetméter
Azonosító: 11604861
Irodai azonosító: 350714
Telek: 1741 négyzetméter
Ingatlan állapota: Felújítandó
Jelleg: családi ház
Építőanyag: Tégla
Egész szobák: 3

Hasonló családi ház hirdetések

Eladó családi ház

Monok

Napfényes otthon a kastély árnyékában – különleges lehetőség Monokon Borsod-Abaúj-Zemplén ...

Hasonló családi ház hirdetések

Eladó családi ház

Monok

Napfényes otthon a kastély árnyékában – különleges lehetőség Monokon Borsod-Abaúj-Zemplén ...