Eladó családi ház Monorierdő 57 500 000 Ft

Leírás

ELADÓ ÚJ ÉPÍTÉSŰ 3 szobás ikerházfél Monorierdőn!

ALACSONY REZSIKÖLTSÉGŰ, KIVÁLÓ VÁLASZTÁS!

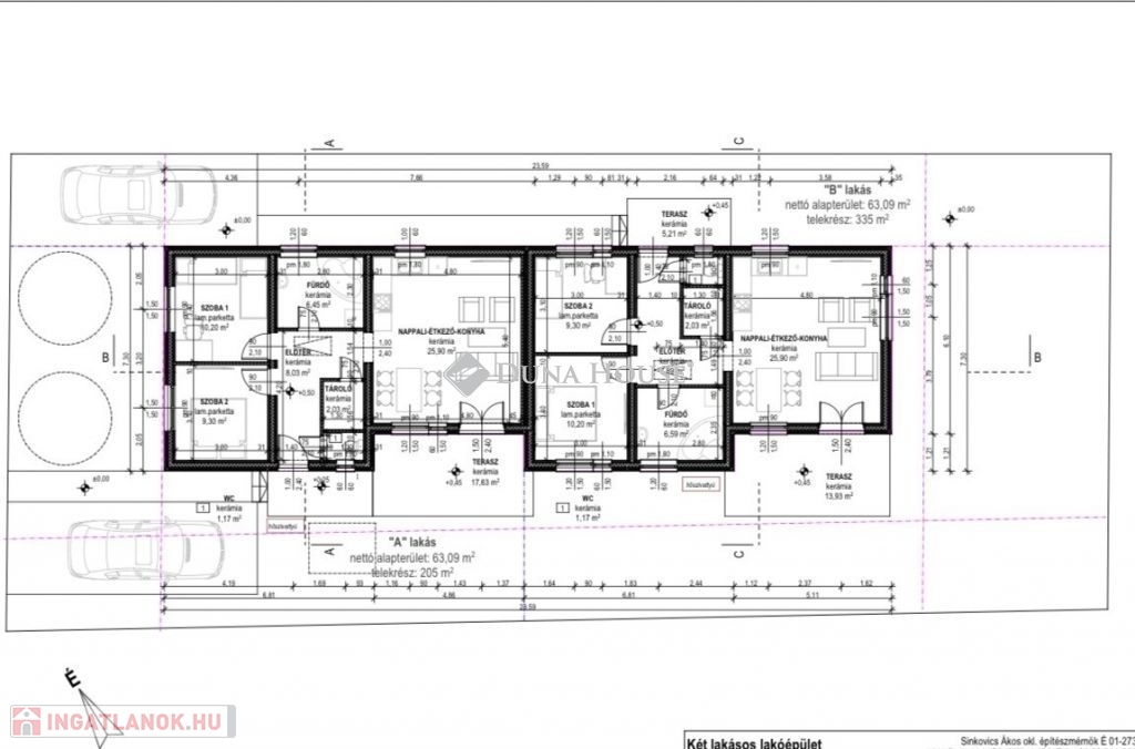
Az ingatlan 63 m2-es kiváló elrendezésű igényes tervek alapján épülő ingatlan.

Beton alapon könnyűszerkezetes ingatlanok cseréptető borítással.
Barna lábazat barna cserép bézs színű homlokzat EXTRA TRAVERTIN MÉSZKŐ DÍSZÍTÉSSEL a nappali kijáratnál a teraszon.

További extra barna nyílászárók az ingatlan vételárát képezik. H-tarifa óra, 1 db 3,5 kw inverteres klíma az ingatlanban.

Telek területe 205 m2, az ingatlan szabadon álló építkezés így a bejárat jobb és bal oldalt külön leválasztva. Kényelmes praktikus legjobb választás.

Kialakítása: 2 szoba, fürdő, külön wc, előtér, tároló, nappali+étkező konyha, 18 m2 nyitott terasz.
Fűtése All in One hőszivattyú adja, padlófűtés mindenhol.
10 cm ásványgyapot szigetelés (Az ásványgyapot különösen a kőzetgyapot) homlokzati szigetelés prémium, tartós (40-50+ év), nem éghető (A1 tűzvédelmi osztály) és kiváló páraáteresztő megoldás, amely megakadályozza a penészesedést,


VÁLASZTHATÓ:
Hidegburkolat 6000Ft/m2 melegburkolat 4000 Ft/ m2 áron választható,
beltéri ajtók 95 000 Ft értékben

szaniterek:
1 db 140x140-es fehér normál akril fürdőkád, Bruttó 90.000 Ft/db áron. Hozzá tartozik 1 db meleg vizes kiállás, 1 db kádtöltő csapteleppel Bruttó 25.000 Ft/db áron. Kivitelezésre kerül az épületben 1 db fehér normál Alföldi 65 cm-es mosdó, 45.000 Ft/db áron. Hozzá, tartozik 1 db mosdó csaptelep Bruttó 25.000 Ft/db áron. WC Cersanit President 1 db mély alsó kifolyásos és a hozzá tartozó Fehér Lagúna WC tartály és a WC üllőké Clivia fém csuklópánttal 85.000 Ft/ db áron. A szaniterekhez tartozó szifonok sarok szelepek Stb. A kialkudót ár tartalmaz továbbá 1 db mosógép kiállást is, amit a megrendelővel utólagos egyeztetés után építünk be.

A könnyűszerkezetes építési mód ideális választás azoknak, akik gyorsan szeretnének modern, energiatakarékos otthonba költözni.

Közelben: Iskola, Óvoda, Vasútállomás, Gyógyszertár, Coop

Amennyiben felkeltettem érdeklődését, hívjon bizalommal.

Családi ház részletei

Ár: 57 500 000 Ft
Méret: 63 négyzetméter
Azonosító: 11595884
Irodai azonosító: HZ077277-5135775
Telek: 205 négyzetméter
Ingatlan állapota: Épülő
Jelleg: ikerház
Építőanyag: Könnyűszerkezetes
Fűtés jellege: Villany
Fűtés módja: Hőszivattyú
Kor: Új építésű
Szintek száma: Földszintes
Egész szobák: 3

Egyéb jellemzők

  • Garázs

Térkép

Hasonló családi ház hirdetések

Eladó családi ház

Monorierdő

Megvételre kínálunk Monorierdőn egy újépítésű, ...

Eladó családi ház

Monorierdő

Megvételre kínálunk Monorierdőn egy újépítésű, ...

Eladó családi ház

Monorierdő

Monorierdő központjához közel csendes utcában eladó ...

Eladó családi ház

Monorierdő

Megvételre kínálunk Monorierdőn egy újépítésű, HÓSZIVATTYÚS, ...

Hasonló családi ház hirdetések

Eladó családi ház

Monorierdő

Megvételre kínálunk Monorierdőn egy újépítésű, ...

Eladó családi ház

Monorierdő

Megvételre kínálunk Monorierdőn egy újépítésű, ...

Eladó családi ház

Monorierdő

Monorierdő központjához közel csendes utcában eladó ...

Eladó családi ház

Monorierdő

Megvételre kínálunk Monorierdőn egy újépítésű, HÓSZIVATTYÚS, ...