Eladó családi ház Monor 109 900 000 Ft

Leírás

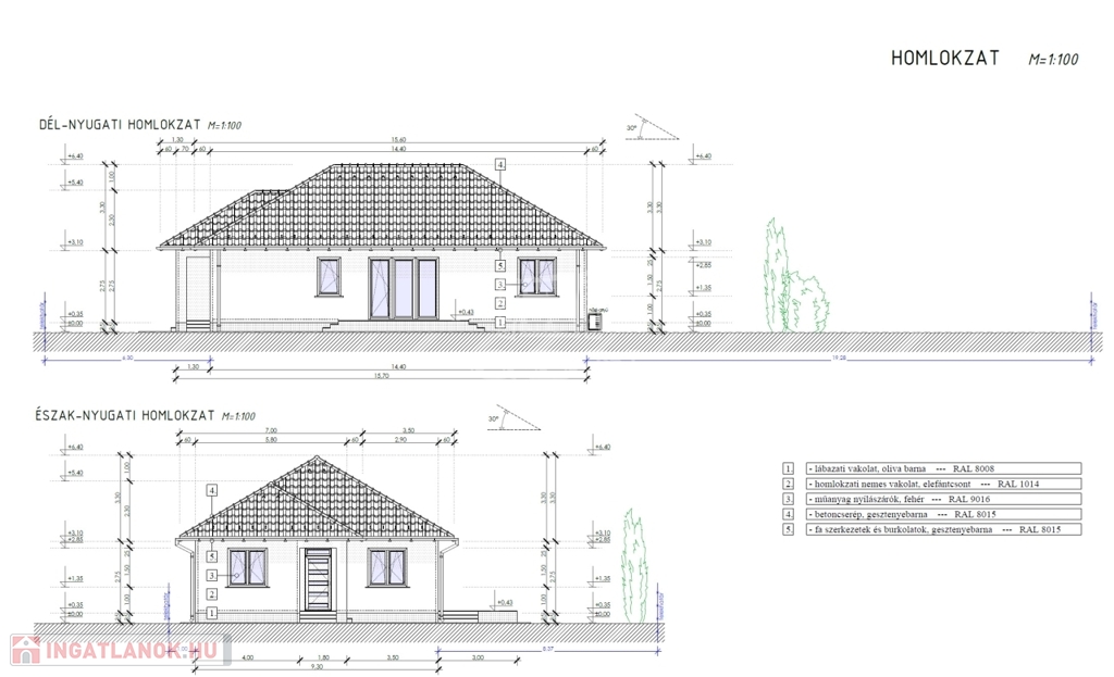
Monoron a Madách utcában, 554 m2-es telken, újonnan épülő nettó 111,29 m2 hasznos lakótérrel rendelkező, 4 szoba + nappalis önálló családi ház eladó.

Csok plusz, Otthon Start elérhető!

A terv még módosítható, igény szerint kialakítható három szobával és nagyobb nappalival is a családi ház!

Az ingatlan 30-as Nútféderes tégla falazóelemből épül, fa födémmel.
A tető héjazata antracit betoncserép lesz, a homlokzatok 15cm EPS, a padló 10cm Austrotherm AT-N100-as, a vízszintes födém 25cm Ásványgyapot szigeteléssel lesz ellátva.

Hat légkamrás 3 rétegű evegekkel szerelt nyílászárók kerülnek beépítésre.

A fűtést 10kw-os monoblockos hőszivattyús rendszer fogja ellátni, padlófűtéssel.


A műszaki tartalom választható az alábbi költségkereten belül:

-hidegburkolat:5000.- Ft./m2-ig.
-melegburkolat:5000.- Ft./m2-ig
-csaptelepek:15.000.- Ft./db
-kád vagy zuhany: 50.000.- Ft.
-beltéri ajtók:50.000.- Ft./db

Elektromos kiépítés:
-Konnektorok szobákban: 3 db
-Konnektorok nappaliban 4db + internet és kábeltv kiállás
-Konnektorok konyhában: 6db
-Világítás helyiségenként 1-1 db
-Kábeltévé: Előkészítés


Magasabb árú tatalom is választható a különbség finanszírozásával.

Riasztó előkészítés és kapu mozgató elektronika előkészítés is készül.

Kérésre szívesen küldünk komplett tervdokumentációt, műszaki leírást.


A kivitelező korábban Sülysápon számos ingatlant épített,a már értékesített és birtokbaadott ingatlanokat komoly érdeklődés esetén szívesen megmutatjuk referenciaként.


Várható átadás 2026 harmadik negyedév!

INGYENES hitel tanácsadás, CSOK Plusz ügyintézés!
BANKFÜGGETLEN hitelcentrumunk az összes elérhető bank és hitelintézet ajánlatát versenyezteti az Ön kedvéért, ráadásul DÍJMENTESEN.

- Egyedi, bankfiókban nem elérhető kamat- és díjkedvezmények
- Hitelképesség vizsgálat
- Idő, energia és pénz megtakarítás
- Teljes hivatali ügyintézés

Amennyiben hirdetésem felkeltette az érdeklődését vagy egyéb információra van szüksége hívjon bizalommal!

Családi ház részletei

Ár: 109 900 000 Ft
Méret: 113 négyzetméter
Azonosító: 11592597
Irodai azonosító: 391631
Cím: Madách utca
Telek: 554 négyzetméter
Ingatlan állapota: Kitűnő
Jelleg: családi ház
Építőanyag: Tégla
Fűtés jellege: Geotermikus
Fűtés módja: Hőszivattyú
Komfort fokozat: Összkomfort
Kor: Új építésű
Szintek száma: Földszintes
Egész szobák: 5

Egyéb jellemzők

  • Csatorna
  • Garázs
  • Pince
  • Terasz

Térkép

Hasonló családi ház hirdetések

Eladó családi ház

Monor

Megvételre kínálunk Monor egyik legszebb részén, egy ...

Eladó családi ház

Monor

Monoron a Virág utcában eladó egy elit vevői kört megcélzó kétlakrészes ...

Eladó családi ház

Monor

Megvételre kínálunk Monor egyik legszebb részén, egy ...

Eladó családi ház

Monor

ELADÓ 2 GENERÁCIÓS TÉGLA ÉPÍTÉSŰ CSALÁDI HÁZ MONOR KÖZPONTI RÉSZÉN! Az ...

Hasonló családi ház hirdetések

Eladó családi ház

Monor

Megvételre kínálunk Monor egyik legszebb részén, egy ...

Eladó családi ház

Monor

Monoron a Virág utcában eladó egy elit vevői kört megcélzó kétlakrészes ...

Eladó családi ház

Monor

Megvételre kínálunk Monor egyik legszebb részén, egy ...

Eladó családi ház

Monor

ELADÓ 2 GENERÁCIÓS TÉGLA ÉPÍTÉSŰ CSALÁDI HÁZ MONOR KÖZPONTI RÉSZÉN! Az ...