Eladó családi ház Monor 70 900 000 Ft

Leírás


Megvételre kínálunk Monoron egy újépítésű, HÓSZIVATTYÚS, KLÍMÁS, teraszos, 86 nm-es, 4 szobás ikerházat. A teraszok mérete 20 nm. Minőségi alapanyagokból, igényes kivitelezés jellemzi a projektet, ahol a biztonság és a kényelem mellett az energiatakarékosság volt a fő szempont. Az ingatlan fűtéséről, valamint a használati melegvíz ellátásáról egy modern, energia takarékos, innovatív levegő-víz hőszivattyú gondoskodik H tarifás üzemeltetéssel.

Ennek köszönhetően a rezsi költségek minimalizálódnak.

 

Az ingatlan hűtéséről egy klíma berendezés fog gondoskodni.

 

Ennél a beruházásnál most lehetősége van kompromisszumok nélkül egy olyan lakásba költözni, ahol Ön kiválaszthatja a hideg és meleg burkolatokat, szanitereket, valamint az egyéb kiegészítőket a családja legnagyobb megelégedésére, ez által személyre szabva álmai otthonát.

A kulcsra kész ár tartalmazza a redőnyöket, három rétegű nyílászárókat, riasztó előkészítést, kaputelefon és motoros kapu kiépítést.

 

A gépjárművekkel az ingatlanhoz tartozó térkövezett beállón lehet biztonságosan parkolni.  

 

Az ingatlanhoz 400 nm-es privát telek tartozik.

 

Igénybe vehető lehetséges kedvezmények:

CSOK

5% Áfa visszatérítés

Babaváró hitel

Illeték kedvezmény vagy mentesség.



Az ingatlan árát a kulcsrakész állapotra adtuk meg.

 

A hirdetés referencia fotókat is tartalmaz!



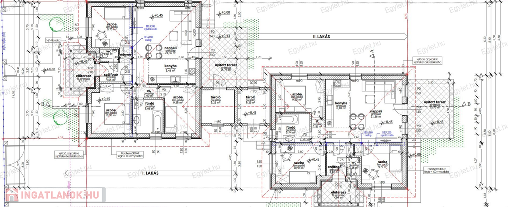
Helyiség lista:

- Szélfogó

- Közlekedő

- WC

- Szoba

- Szoba

- Szoba

- Fürdőszoba

- Amerikai konyha,

- Étkező

- Nappali 

- Tároló

- Terasz

- Előterasz



Az ingatlan biztonságos, nyugodt, csendes, kertes házas övezetében, Monor egyik legszebb részén található. A környék fejlett infrastruktúrájának köszönhetően bővelkedik a szociális intézményekben, bölcsőde, óvoda, általános iskola, orvosi intézmények, bevásárlási lehetőségek, találhatóak a közelben.

Közlekedése kiváló, busszal a centrum vagy vonattal a Nyugati pu. rövid idő alatt megközelíthető. Az M4-es autópálya öt perc alatt elérhető.



Hitel, CSOK igénylésben díjmentes ügyintézéssel állunk rendelkezésére! Nálunk kiválaszthatja az Ön számára legkedvezőbb ajánlatot.



Várom megtisztelő érdeklődésüket.

Családi ház részletei

Ár: 70 900 000 Ft
Méret: 86 négyzetméter
Azonosító: 11536208
Irodai azonosító: 209001908
Telek: 400 négyzetméter
Ingatlan állapota: Kitűnő
Jelleg: ikerház
Építőanyag: Tégla
Komfort fokozat: Összkomfort
Kor: Új építésű
Egész szobák: 4

Hasonló családi ház hirdetések

Eladó családi ház

Monor

Összeköltözőknek ideális lehetőség!Budapesttől alig 35 km-re, Monor ...

Eladó családi ház

Monor

KIZÁRÓLAG A JUDIT INGATLAN ÉS HITELIRODA KÍNÁLATÁBAN!!! ÁRCSÖKKENÉS ...

Eladó családi ház

Monor

Megvételre kínálunk Monoron egy újépítésű, HÓSZIVATTYÚS, ...

Eladó családi ház

Monor

MONOR- FÖLDSZINTI LAKÁS2 SZOBA + NAGY AMERIKAI KONYHÁS NAPPALIFELÚJÍTOTT ...

Hasonló családi ház hirdetések

Eladó családi ház

Monor

Összeköltözőknek ideális lehetőség!Budapesttől alig 35 km-re, Monor ...

Eladó családi ház

Monor

KIZÁRÓLAG A JUDIT INGATLAN ÉS HITELIRODA KÍNÁLATÁBAN!!! ÁRCSÖKKENÉS ...

Eladó családi ház

Monor

Megvételre kínálunk Monoron egy újépítésű, HÓSZIVATTYÚS, ...

Eladó családi ház

Monor

MONOR- FÖLDSZINTI LAKÁS2 SZOBA + NAGY AMERIKAI KONYHÁS NAPPALIFELÚJÍTOTT ...