Eladó családi ház Monor 77 000 000 Ft

Leírás

HASZNÁLJA KI A CSOK+ KAMATTÁMOGATOTT HITEL ELŐNYEIT, A 4% ILLETÉKKEDVEZMÉNYT, VALAMINT A 3%-OS OTTHON START HITELT!!!!!!

10 % FOGLALÓVAL LEKÖTHETŐ!!!

Monor kertvárosában 2 db társasházi lakás épül saját telekkel, közös kocsibeállóval melyek MÁR FOGLALÓZHATÓAK!!!

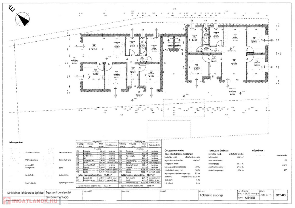
Az 1. lakás lakóterülete 76,87 m2, melyben előszoba (5,11 m2), nappali (18,36 m2), konyha-étkező (8,14 m2), közlekedő (2,75 m2), 1. szoba (10,15 m2), 2. szoba (9,49 m2), 3. szoba (9,36), fürdőszoba (7,12 m2), WC (1,35 m2), és háztartási helyiség (5,04 m2) található, valamint egy fedett terasz (12,42 m2) van a bejárat előtt. A két lakás nem ér össze, közöttük kerti tároló (2,81 m2) van.

Az ingatlanhoz kb. 50 m2 saját telek tartozik.

Fűtés: hőszivattyúval („H” tarifa), hőleadás padlófűtéssel, valamint inverteres klímával.

Közművek közül vezetékes víz, villany („H” tarifával), és csatorna bevezetésre kerül.

ÁRA: 77.000.000.- Ft

A 2. lakás lakóterülete 76,07 m2, melyben előszoba (5,11 m2), nappali (18,11 m2), konyha-étkező (3,86 m2), közlekedő (3,32 m2), 1. szoba (10,15 m2), 2. szoba (10,98 m2), 3. szoba (10,98), fürdőszoba (7,08 m2), WC (1,44 m2), és háztartási helyiség (5,04 m2) található, valamint a bejárati ajtó előtt egy előtér (4,01 m2), és egy fedett terasz (10,00 m2) kapcsolódik a nappalihoz. A két lakás között kerti tároló (2,81 m2) van.

Az ingatlanhoz kb. 400 m2 saját telek tartozik.

Fűtés: hőszivattyúval („H” tarifa), hőleadás padlófűtéssel, valamint inverteres klímával.

Közművek közül a villany („H” tarifával), és vezetékes víz kerül bevezetésre, a szennyvízelvezetés zárt rendszerű emésztőbe történik.

ÁRA: 80.000.000.- Ft

A lakások ytongból épülnek 10 cm külső dryvit szigeteléssel, a födémet 30 cm-es kőzetgyapottal szigetelik, a nyílászárók 3 rétegű, hőszigetelt műanyagok. A locsoláshoz fúrt kút van.

Elektromos kapu!

Burkolatok 10.000.- Ft/m2 árig választhatóak.

Átadás: 2026. október

DÍJMENTES HITELÜGYINTÉZÉS IRODÁNKBAN!!!

OTTHON START HITEL, CSOK+, BABAVÁRÓ KÖLCSÖN, KAMATTÁMOGATOTT LAKÁSHITELEK, ….

2003 ÓTA AZ ÖNÖK BIZALMÁBAN!

Családi ház részletei

Ár: 77 000 000 Ft
Méret: 77 négyzetméter
Azonosító: 11610966
Irodai azonosító: 2178
Telek: 50 négyzetméter
Ingatlan állapota: Épülő
Jelleg: társasház
Építőanyag: YTONG
Fűtés jellege: Hőszivattyú
Fűtés módja: Hőszivattyú
Komfort fokozat: Összkomfort
Kor: Új építésű
Elhelyezkedés: Utcafronti
Szintek száma: Földszintes
Bútorozott: Nem bútorozott
Egész szobák: 1
Fél szobák: 3
Nappalik: 1

Egyéb jellemzők

  • Beépíthető tetőtér
  • Csatorna
  • Garázs
  • Kábel TV
  • Melléképület
  • Padlás
  • Parketta
  • Pince
  • Terasz

Térkép

Hasonló családi ház hirdetések

Eladó családi ház

Monor

MONOR- FÖLDSZINTI LAKÁS2 SZOBA + NAGY AMERIKAI KONYHÁS NAPPALIFELÚJÍTOTT ...

Eladó családi ház

Monor

Megvételre kínálunk Monoron egy újépítésű, HÓSZIVATTYÚS, ...

Eladó családi ház

Monor

HASZNÁLJA KI A CSOK+ KAMATTÁMOGATOTT HITEL ELŐNYEIT, A 4% ILLETÉKKEDVEZMÉNYT, ...

Eladó családi ház

Monor, Újtelep

Monor Telepi részén felújított 3 háló + nappalis családi ház, tetőtér ...

Hasonló családi ház hirdetések

Eladó családi ház

Monor

MONOR- FÖLDSZINTI LAKÁS2 SZOBA + NAGY AMERIKAI KONYHÁS NAPPALIFELÚJÍTOTT ...

Eladó családi ház

Monor

Megvételre kínálunk Monoron egy újépítésű, HÓSZIVATTYÚS, ...

Eladó családi ház

Monor

HASZNÁLJA KI A CSOK+ KAMATTÁMOGATOTT HITEL ELŐNYEIT, A 4% ILLETÉKKEDVEZMÉNYT, ...

Eladó családi ház

Monor, Újtelep

Monor Telepi részén felújított 3 háló + nappalis családi ház, tetőtér ...