Eladó családi ház Monor 90 000 000 Ft

Leírás

HASZNÁLJA KI A CSOK+ KAMATTÁMOGATOTT HITEL ELŐNYEIT, A 4% ILLETÉKKEDVEZMÉNYT, VALAMINT A 3%-OS OTTHON START HITELT!!!!!!

10 % FOGLALÓVAL, + 10 % VÉTELÁR ELŐLEGGEL LEKÖTHETŐ!!!

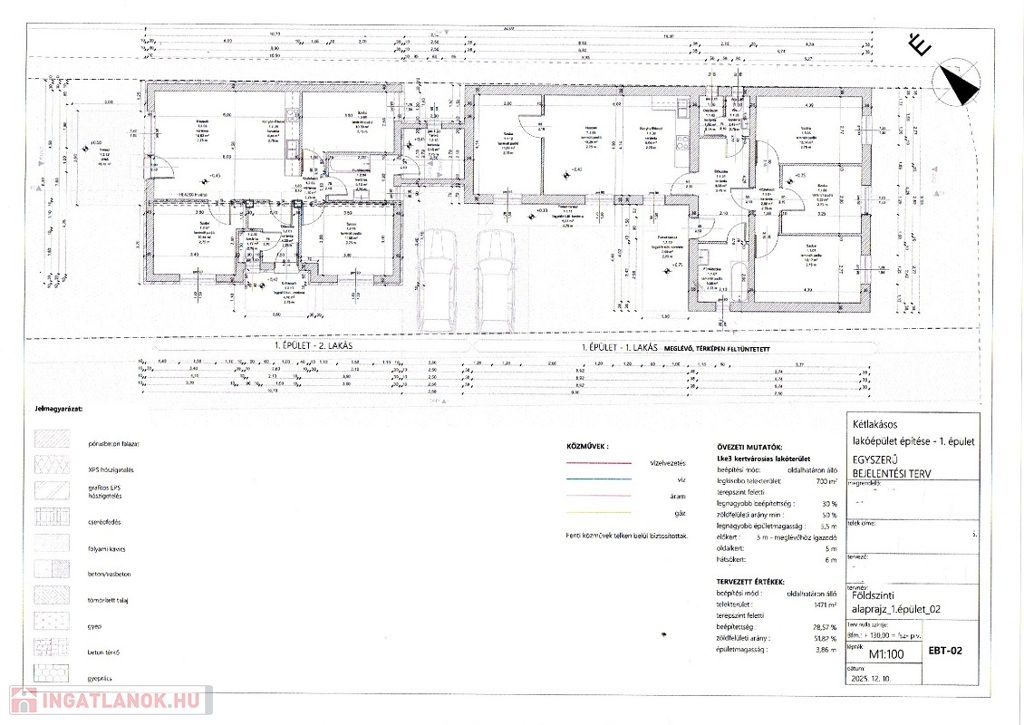
Monor kertvárosában 2×2 társasházi lakás épül, saját telekkel, közös kocsibeállóval melyek I. ütemének FOGLALÁSA MÁR MEGKEZDŐDÖTT!!!

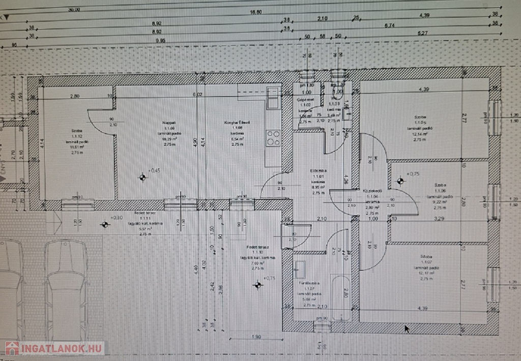
Az 1. lakás lakóterülete 92,35 m2, melyben előszoba (8,95 m2), nappali (24,02 m2), konyha-étkező (12,82 m2), közlekedő (2,80 m2), 1. szoba (12,14 m2), 2. szoba (9,22 m2), 3. szoba (12,17), fürdőszoba (5,08 m2), WC (3,49 m2), és gépészet (1,66 m2) található, valamint egy fedett terasz (7,69 m2) van a bejárat előtt.

Igény szerint a nappaliból egy 4. szoba (11,61 m2) is kialakítható, így a nappali (18,29 m2), a konyha-étkező (6,54 m2) lesz.

Az ingatlanhoz kb. 50 m2 saját telek tartozik.

Fűtés: hőszivattyúval („H” tarifa), hőleadás padlófűtéssel, valamint inverteres klímával.

Közművek közül vezetékes víz, villany („H” tarifával), és csatorna bevezetésre kerül.

Az ingatlan a ’90-es években épült téglából, ezt újítják fel teljes egészében: új szigetelést, nyílászárókat, fűtésrendszert, és a vevő által kiválasztott burkolatot kap, valamint a belső tereket is átalakítják a mai kor elvárásainak megfelelően.

ÁRA: 90.000.000.- Ft

Ehhez az ingatlanhoz csatlakozik az új építésű 2. lakás, mellyel csak a tárolóval ér össze.

A 2. lakás lakóterülete 76,18 m2, melyben előszoba (4,38 m2), nappali (18,52 m2), konyha-étkező (8,48 m2), közlekedő (1,10 m2), 1. szoba (11,05 m2), 2. szoba (10,30 m2), 3. szoba (10,64), fürdőszoba (5,13 m2), WC (1,17 m2), és tároló (5,46 m2) található, valamint egy előlépcső (4,16 m2), és egy terasz (11,70 m2) kapcsolódik a nappalihoz.

Fűtés: hőszivattyúval („H” tarifa), hőleadás padlófűtéssel, valamint inverteres klímával.

Közművek közül a villany („H” tarifával), vezetékes víz kerül bevezetésre, a szennyvízelvezetés emésztőbe történik.

ÁRA: 83.800.000.- Ft

Elektromos kapu!

Burkolatok 8.000.- Ft/m2 árig választhatóak.

Átadás: 2026. IV. negyedév

AZ ELKÉSZÜLT INGATLANOKRÓL FELTÖLTÖTT KÉPEK A VÁLLALKOZÓ ÁLTAL ÉPÍTETT INGATLANOK REFERENCIAMUNKÁI!!!

DÍJMENTES HITELÜGYINTÉZÉS IRODÁNKBAN!!!

OTTHON START HITEL, CSOK+, BABAVÁRÓ KÖLCSÖN, KAMATTÁMOGATOTT LAKÁSHITELEK, ….

2003 ÓTA AZ ÖNÖK BIZALMÁBAN!

Családi ház részletei

Ár: 90 000 000 Ft
Méret: 92 négyzetméter
Azonosító: 11586940
Irodai azonosító: 2150
Telek: 100 négyzetméter
Ingatlan állapota: Felújított
Jelleg: sorház
Építőanyag: Kérdezzen rá a hirdetőtől »
Fűtés jellege: Hőszivattyú
Komfort fokozat: Összkomfort
Kor: 21-50 éves
Elhelyezkedés: Utcafronti
Szintek száma: Földszintes
Bútorozott: Nem bútorozott
Egész szobák: 3
Fél szobák: 1
Nappalik: 1

Egyéb jellemzők

  • Beépíthető tetőtér
  • Csatorna
  • Garázs
  • Kábel TV
  • Melléképület
  • Padlás
  • Parketta
  • Pince
  • Terasz

Térkép

Hasonló családi ház hirdetések

Eladó családi ház

Monor

Új építésű családi ház Monoron!!!Megvételre kínálok, egy 105nm hasznos ...

Eladó családi ház

Monor

MONOR KERTVÁROSI RÉSZÉN ÚJ ÉPÍTÉSŰ IKERHÁZ FÉL ELADÓ!!! Monor csendes, ...

Eladó családi ház

Monor, Újtelep

KIZÁRÓLAG A JUDIT INGATLAN ÉS HITELIRODA KÍNÁLATÁBAN!!! Monor Telepi ...

Eladó családi ház

Monor

KIZÁRÓLAG A JUDIT INGATLAN ÉS HITELIRODA KÍNÁLATÁBAN!!! Monor „Főszög”-i ...

Hasonló családi ház hirdetések

Eladó családi ház

Monor

Új építésű családi ház Monoron!!!Megvételre kínálok, egy 105nm hasznos ...

Eladó családi ház

Monor

MONOR KERTVÁROSI RÉSZÉN ÚJ ÉPÍTÉSŰ IKERHÁZ FÉL ELADÓ!!! Monor csendes, ...

Eladó családi ház

Monor, Újtelep

KIZÁRÓLAG A JUDIT INGATLAN ÉS HITELIRODA KÍNÁLATÁBAN!!! Monor Telepi ...

Eladó családi ház

Monor

KIZÁRÓLAG A JUDIT INGATLAN ÉS HITELIRODA KÍNÁLATÁBAN!!! Monor „Főszög”-i ...