Eladó családi ház Nagykanizsa 154 900 000 Ft

Leírás

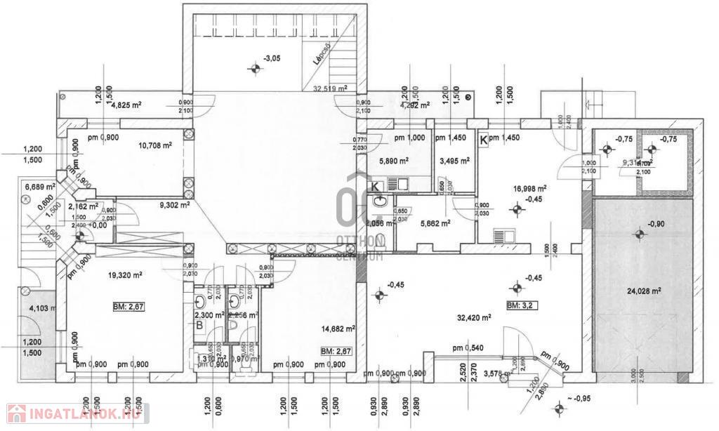
Nagykanizsa belvárosában kínálom megvételre az alábbi társasházzá alakított családi házat, amelyben jelenleg irodák és üzlethelyiség garázzsal van kialakítva.

Ingatlan jellemzői:
- 607 m2-es telken helyezkedik el, ahol belső zárt udvar található térkő burkolással.
- 8 szoba méretű helyiség van jelenleg létrehozva, amelyek iroda funkciót töltenek be, 2 db erkély, egy terasz, garázs, tárolók, vizesblokkok, közlekedők és egy üzlethelyiség.
- Társasházzá alakítás során 6 külön helyrajzi számon, 4 különálló lakás, tároló, garázs és közös helyiségek lettek megtervezve.
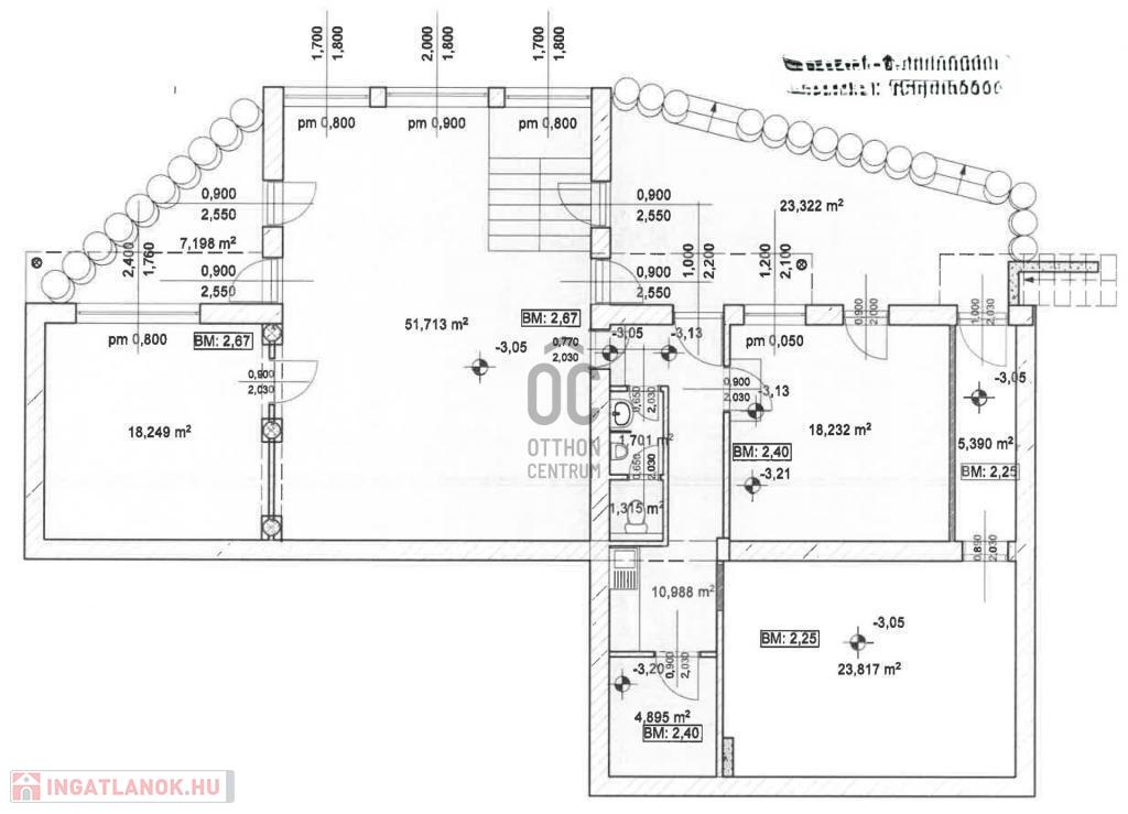
- A képek között található fekete-fehér alaprajzok a jelenlegi, a színesek a lehetséges, kialakítható tereket mutatják.
- A legnagyobb lakás 252 m2-es, a következő 57,7 m2-es, a harmadik 44,3 m2-es, a negyedik, legkisebb pedig 29,1 m2.
- Ezeken kívül egy közlekedő, raktár, terasz lett leválasztva, 33,2 m2 nagyságban, illetve egy garázs, ami 23,6 m2.
- A közös helyiségek mérete 22,5 m2.
- Jelenleg 390 m2 van használatban, de a lehetséges, megtervezett bővítéssel a tetőtérben, ez 463 m2-re növelhető.
- A vizesblokkok a mostani használatnak megfelelően WC-kézmosó helyiségeket jelentenek.
- Az ingatlanban minden közmű rendelkezésre áll.
- A villany és gázórákból 2-2, a vízórákból 3 db van jelenleg. Az üzlethelyiség és az irodák külön mérésen vannak.
- Fűtése 2 db gázkazánról üzemel.
- Hűtéséről klímaberendezések gondoskodnak.
- Az épület kívül, belül kiváló állapotban van, teljesen felújított.
- Beton alapokon, tégla építésű, beton födémmel, tetőtéri beépítési lehetőséggel.
- Tető héjazata cserép fedésű.
- A ház víz szigetelést és külső hőszigetelést kapott.
- A zárt udvarban több autó számára a parkolás biztosított.

Irodánk teljes körű szolgáltatást nyújt kereső ügyfeleinek.
Szakszerű tanácsadással, ingyenes CSOK és hitelügyintézéssel, energetikai tanúsítvány elkészítésével és kedvező díjszabású ügyvéddel nyújtunk segítséget!

Családi ház részletei

Ár: 154 900 000 Ft
Méret: 390 négyzetméter
Azonosító: 11596198
Irodai azonosító: H495405-5136350
Telek: 607 négyzetméter
Ingatlan állapota: Kitűnő
Jelleg: családi ház
Építőanyag: Tégla
Fűtés jellege: Cirkó
Fűtés módja: Gáz
Kor: 21-50 éves
Szintek száma: Földszintes
Egész szobák: 8

Térkép

Hasonló családi ház hirdetések

Eladó családi ház

Nagykanizsa

Nagykanizsa legvonzóbb kertvárosi részén földszintes 210 m2-es családi ...

Eladó családi ház

Nagykanizsa

Nagykanizsa legvonzóbb kertvárosi részén földszintes 210 m2-es családi ...

Eladó családi ház

Nagykanizsa

Nagykanizsa belvárosában kínálom megvételre az alábbi társasházzá ...

Eladó családi ház

Nagykanizsa

Nagykanizsa legvonzóbb kertvárosi részén földszintes 210 m2-es családi ...

Hasonló családi ház hirdetések

Eladó családi ház

Nagykanizsa

Nagykanizsa legvonzóbb kertvárosi részén földszintes 210 m2-es családi ...

Eladó családi ház

Nagykanizsa

Nagykanizsa legvonzóbb kertvárosi részén földszintes 210 m2-es családi ...

Eladó családi ház

Nagykanizsa

Nagykanizsa belvárosában kínálom megvételre az alábbi társasházzá ...

Eladó családi ház

Nagykanizsa

Nagykanizsa legvonzóbb kertvárosi részén földszintes 210 m2-es családi ...