Eladó családi ház Nagykanizsa 154 900 000 Ft

Leírás

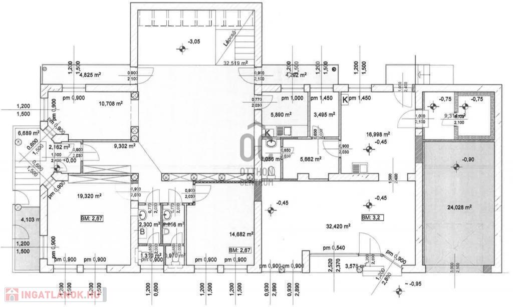
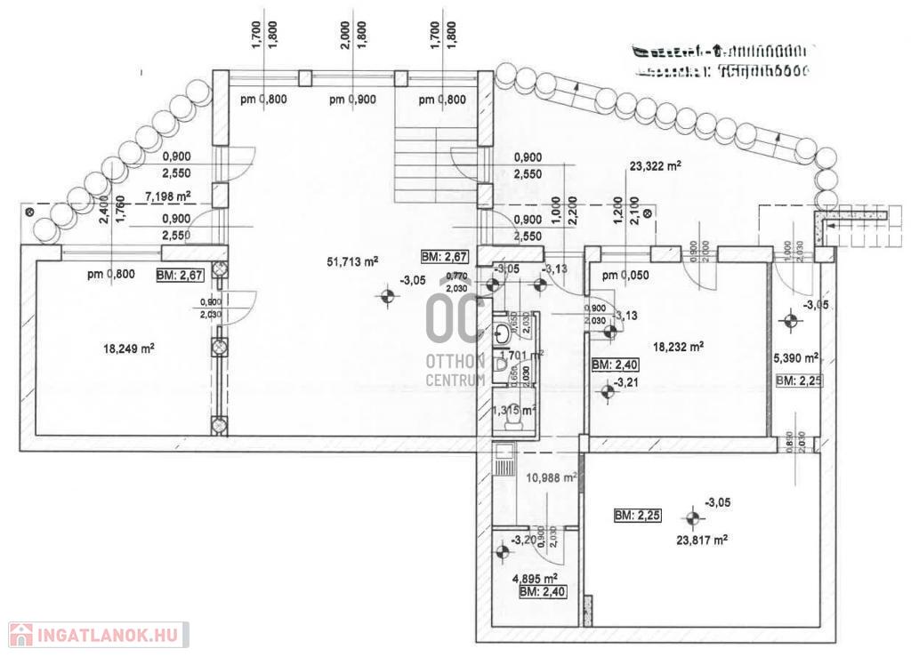
Nagykanizsa belvárosában kínálom megvételre az alábbi társasházzá alakított családi házat, amelyben jelenleg irodák és üzlethelyiség garázzsal van kialakítva.

Ingatlan jellemzői:
- 607 m2-es telken helyezkedik el, ahol belső zárt udvar található térkő burkolással.
- 8 szoba méretű helyiség van jelenleg létrehozva, amelyek iroda funkciót töltenek be, 2 db erkély, egy terasz, garázs, tárolók, vizesblokkok, közlekedők és egy üzlethelyiség.
- Társasházzá alakítás során 6 külön helyrajzi számon, 4 különálló lakás, tároló, garázs és közös helyiségek lettek megtervezve.
- A képek között található fekete-fehér alaprajzok a jelenlegi, a színesek a lehetséges, kialakítható tereket mutatják.
- A legnagyobb lakás 252 m2-es, a következő 57,7 m2-es, a harmadik 44,3 m2-es, a negyedik, legkisebb pedig 29,1 m2.
- Ezeken kívül egy közlekedő, raktár, terasz lett leválasztva, 33,2 m2 nagyságban, illetve egy garázs, ami 23,6 m2.
- A közös helyiségek mérete 22,5 m2.
- Jelenleg 390 m2 van használatban, de a lehetséges, megtervezett bővítéssel a tetőtérben, ez 463 m2-re növelhető.
- A vizesblokkok a mostani használatnak megfelelően WC-kézmosó helyiségeket jelentenek.
- Az ingatlanban minden közmű rendelkezésre áll.
- A villany és gázórákból 2-2, a vízórákból 3 db van jelenleg. Az üzlethelyiség és az irodák külön mérésen vannak.
- Fűtése 2 db gázkazánról üzemel.
- Hűtéséről klímaberendezések gondoskodnak.
- Az épület kívül, belül kiváló állapotban van, teljesen felújított.
- Beton alapokon, tégla építésű, beton födémmel, tetőtéri beépítési lehetőséggel.
- Tető héjazata cserép fedésű.
- A ház víz szigetelést és külső hőszigetelést kapott.
- A zárt udvarban több autó számára a parkolás biztosított.

Irodánk teljes körű szolgáltatást nyújt kereső ügyfeleinek.
Szakszerű tanácsadással, ingyenes CSOK és hitelügyintézéssel, energetikai tanúsítvány elkészítésével és kedvező díjszabású ügyvéddel nyújtunk segítséget!

Családi ház részletei

Ár: 154 900 000 Ft
Méret: 390 négyzetméter
Azonosító: 11601519
Irodai azonosító: H495405-5157472
Telek: 607 négyzetméter
Ingatlan állapota: Kitűnő
Jelleg: családi ház
Építőanyag: Tégla
Fűtés jellege: Cirkó
Fűtés módja: Gáz
Kor: 21-50 éves
Szintek száma: Földszintes
Egész szobák: 8

Térkép

Hasonló családi ház hirdetések

Eladó családi ház

Nagykanizsa

Nagykanizsa legvonzóbb kertvárosi részén földszintes 210 m2-es családi ...

Eladó családi ház

Nagykanizsa

Nagykanizsa legvonzóbb kertvárosi részén földszintes 210 m2-es családi ...

Eladó családi ház

Nagykanizsa

Nagykanizsa belvárosában kínálom megvételre az alábbi társasházzá ...

Eladó családi ház

Nagykanizsa

Nagykanizsa belvárosában kínálom megvételre az alábbi társasházzá ...

Hasonló családi ház hirdetések

Eladó családi ház

Nagykanizsa

Nagykanizsa legvonzóbb kertvárosi részén földszintes 210 m2-es családi ...

Eladó családi ház

Nagykanizsa

Nagykanizsa legvonzóbb kertvárosi részén földszintes 210 m2-es családi ...

Eladó családi ház

Nagykanizsa

Nagykanizsa belvárosában kínálom megvételre az alábbi társasházzá ...

Eladó családi ház

Nagykanizsa

Nagykanizsa belvárosában kínálom megvételre az alábbi társasházzá ...