Eladó családi ház Nagykanizsa 16 800 000 Ft

Leírás

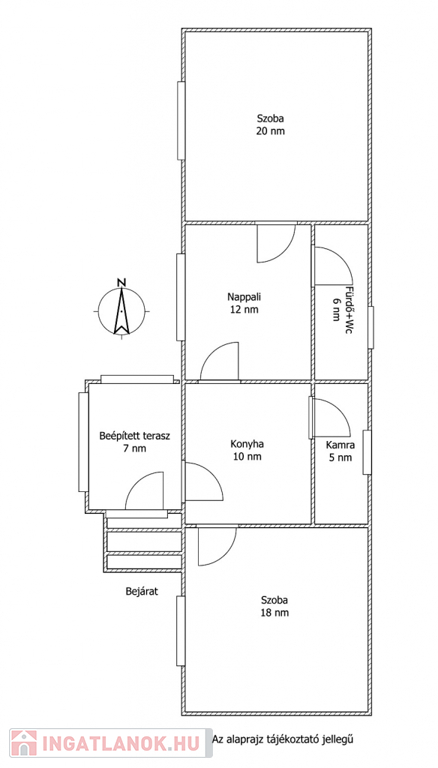
Nagykanizsa kedvelt városrészében található ez az 1968-ban épült, összközműves, 78 nm-es, két szoba+ nappalis udvari téglalakás, melyet most eladásra kínálunk. Az ingatlant jelenleg nem lakják, az azonnali birtokba adás lehetőségével ajánljuk. Állapotát tekintve felújítandó, az utóbbi időben a karbantartások elmaradtak. Fűtése gázkonvektorokkal történik. A házhoz beépített terasz, és saját használatú udvarrész is tartozik. A telek osztatlan közös tulajdonban van a szomszéddal. Parkolni a ház előtt lehetséges.
További részletes információkért keressen minket elérhetőségeinken!

Referencia szám: HK-5176207-NOK

Családi ház részletei

Ár: 16 800 000 Ft
Méret: 78 négyzetméter
Azonosító: 11606283
Irodai azonosító: HK-5176207-5176207
Telek: 100 négyzetméter
Ingatlan állapota: Átlagos
Jelleg: családi ház
Építőanyag: Tégla
Fűtés jellege: Konvektoros
Fűtés módja: Gáz
Komfort fokozat: Összkomfort
Kor: 50 évesnél régebbi
Szintek száma: Földszintes
Egész szobák: 3

Térkép

Hasonló családi ház hirdetések

Eladó családi ház

Nagykanizsa, Kiskanizsa

NAGYKANIZSÁN ÉPÍTKEZŐK, BEFEKTETŐK FIGYELEM! – RITKA LEHETŐSÉG KISKANIZSÁN! Nagykanizsa ...

Hasonló családi ház hirdetések

Eladó családi ház

Nagykanizsa, Kiskanizsa

NAGYKANIZSÁN ÉPÍTKEZŐK, BEFEKTETŐK FIGYELEM! – RITKA LEHETŐSÉG KISKANIZSÁN! Nagykanizsa ...