Eladó családi ház Nagykanizsa 98 200 000 Ft

Leírás

Az ingatlan sorházi jellegű, belváros közeli egyedi kialakítású épület, melyet a város egykori vezető statikus építésze tervezett. A félszinteltolásos megoldásnak köszönhetően rendkívül jó helykihasználással, tágas, jól tagolt terekkel rendelkezik, így ideális nagyobb család vagy több generáció együttélésére is.
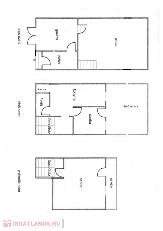
A ház 180 m² lakóterülettel, 20 m²-es garázzsal és egy 40 m²-es pincével rendelkezik. Az ingatlanhoz egy első és hátsó udvar is tartozik, amelyek biztosítják a nyugodt, privát életteret. A biztonságról távfelügyeletre kötött riasztórendszer gondoskodik.
A jelenlegi tulajdonosok 2014 végén vásárolták meg az ingatlant, majd teljes körű gépészeti korszerűsítést végeztek. Megújult az elektromos hálózat – az E.ON bekötőkábellel együtt –, valamint a gáz- és szennyvízrendszer is. A házra 6 kW-os napelemrendszer került, a világítás LED-es, így az energiafelhasználás rendkívül kedvező. A fűtést és a melegvíz-ellátást Immergas cirkókazán biztosítja, a vízlágyítást Hidrofilt rendszer segíti.
A felújítások során megtörtént a tetőcsere, a térkövezés, valamint a fa nyílászárók felújítása is. Az ingatlan természetes, egészséges lakókörnyezetet biztosít, műanyag ablakok nélkül, penészedéstől mentesen. A padlástér 40 cm vastag kőzetgyapot szigetelést, a homlokzat pedig az eredeti szigetelésen felül további 10 cm EPS hőszigetelést kapott.
Az épület alapterülete 60 m². A pince felett, az alapszinten található a garázs és a lépcsőházi bejárat. Az első félszinten konyha kamrával, egy különálló – jelenleg gardróbként használt, de igény szerint egybenyitható – szoba, valamint zuhanyzós fürdőszoba toalettel kapott helyet. Néhány lépcsővel feljebb egy 32 m²-es, világos nappali található, melyhez a ház teljes homlokzatán végigfutó erkély kapcsolódik.
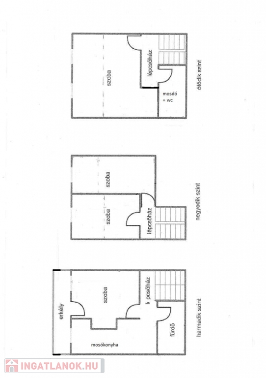
A következő félszinten egy hálószoba, egy mosókonyha és egy igényesen kialakított, olasz jacuzzikádas fürdőszoba található. Efölött két további hálószoba kapott helyet, míg a legfelső szinten egy 30 m²-nél is nagyobb szülői háló található, saját mosdóval, ahol a fürdőkád vagy zuhanykabin kiépítése már elő van készítve.
Az ingatlan kialakítása lehetővé teszi két vagy akár három különálló lakóegység létrehozását is, így ideális nagycsaládosoknak, több generáció együttélésére vagy befektetési célra egyaránt. A tulajdonosok költözés miatt a felújításokat nem kívánják tovább folytatni, ezért az ingatlan kifejezetten kedvező áron kerül értékesítésre. Kisebb ráfordítással egy valódi, többgenerációs luxusingatlan alakítható ki belőle.

Ne hagyja ki ezt a páratlan lehetőséget!

Ha egy tökéletes állapotú, tágas, azonnal költözhető családi házat keres, modern kialakítással közel a belvároshoz, ne habozzon! Hívjon minket bizalommal a megtekintésért! Irodánk teljes körű ügyintézésben segít: hitelügyintézés, ügyvéd, energetikai tanúsítvány és felújítás terén is számíthat ránk!

Referencia szám: HK-5122973-NOK

Családi ház részletei

Ár: 98 200 000 Ft
Méret: 180 négyzetméter
Azonosító: 11592509
Irodai azonosító: HK-5122973-5122973
Telek: 125 négyzetméter
Ingatlan állapota: Kitűnő
Jelleg: sorház
Építőanyag: Tégla
Fűtés jellege: Cirkó
Fűtés módja: Gáz
Komfort fokozat: Összkomfort
Kor: 21-50 éves
Szintek száma: 2 szint
Egész szobák: 5
Fél szobák: 1

Egyéb jellemzők

  • Garázs
  • Padlás
  • Pince

Térkép

Hasonló családi ház hirdetések

Eladó családi ház

Nagykanizsa

Polgári elegancia és modern kényelem egy helyen! Ez a kétszintes családi ...

Eladó családi ház

Nagykanizsa

Új építésű családi ház eladó Nagykanizsa-Palin városrészében! Megvételre ...

Eladó családi ház

Nagykanizsa

Nagykanizsán eladó egy nagypolgári ház, mely 1990-ben újjáépült. A ...

Eladó családi ház

Nagykanizsa

Nagykanizsán Miklósfa családi házas nyugodt városrészben ajánljuk leendő ...

Hasonló családi ház hirdetések

Eladó családi ház

Nagykanizsa

Polgári elegancia és modern kényelem egy helyen! Ez a kétszintes családi ...

Eladó családi ház

Nagykanizsa

Új építésű családi ház eladó Nagykanizsa-Palin városrészében! Megvételre ...

Eladó családi ház

Nagykanizsa

Nagykanizsán eladó egy nagypolgári ház, mely 1990-ben újjáépült. A ...

Eladó családi ház

Nagykanizsa

Nagykanizsán Miklósfa családi házas nyugodt városrészben ajánljuk leendő ...