Eladó családi ház Nagykovácsi 255 000 000 Ft

Leírás

Igényes otthon Nagykovácsiban.

A főváros központjától mindössze 15 km-re, Nagykovácsiban 170nm-es, 5+1 szobás, garázsos, duplakomfortos, energiatudatos ikerház eladó

Az eladó ikerház 2024 III.-IV. negyedévében kerül átadásra. A lakás a négy lakásos sorház utcafronttól legtávolabb eső ingatlana.

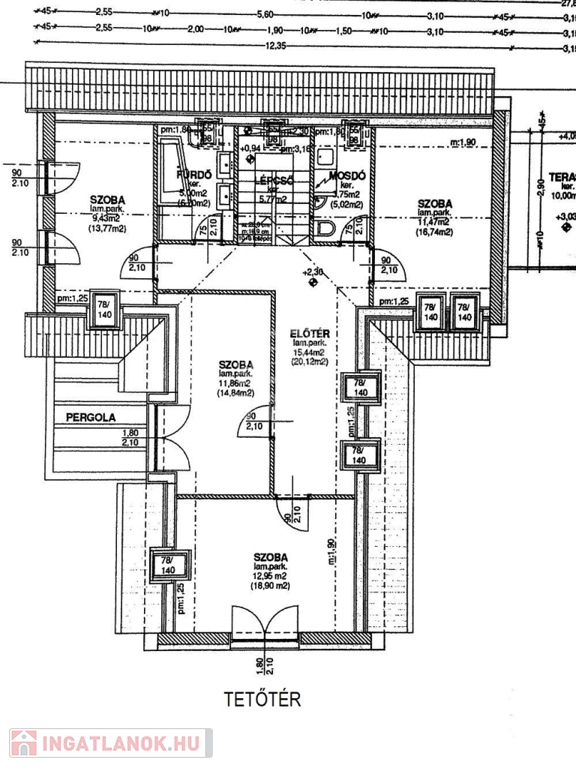
Elrendezése:
Földszinten Nappali-konyha-étkező (44,7 nm), szoba (14,8 nm), fürdőszoba (4,95), vendég WC, gardrób, előszoba + garázs (27,9 nm) + terasz (25 nm);
Emelet: 4 szoba (br. 18,9, 14,8,16,7 és 9,4 nm) 2 fürdőszoba (5,0 és 3,7 nm) + lépcsőház.

Fűtés és meleg víz: hőszivattyú padló és mennyezet felületi fűtéssel.
Külső nyílászárók pácoét fa szerkezetűek, ablakok háromrétegűek hőszigetelt üvegezéssel, külső zsaluziáva. Belső ajtók: pácolt fa szerkezetűek.

Hőszigetelés: padlóban 15 cm; tetőfödémben 30 cm; garázsban 10 cm.

Hangszigetelés padlóban, födémben 4 cm.

Pergola a D-i fronton.
Esővíztárolás: 5 m3.

A 2051 nm-es telken két ikerház kerül kialakításra, az egyes lakásokhoz ~ 400 nm-es saját kertrész tartozik.


Fiztési ütemezés a készenléti állapotnak megfelelően.


Amennyiben az ingatlanvásárlásához banki finanszírozást is igénybe kíván venni, úgy BANKFÜGGETLEN hitelügyintéző kollégáink szívesen nyújtanak felvilágosítást az aktuális hitelekkel, egyénre szabott kedvezményekkel, CSOK-kal kapcsolatban.

Családi ház részletei

Ár: 255 000 000 Ft
Méret: 170 négyzetméter
Azonosító: 11409053
Irodai azonosító: 371603
Cím: Kossuth utca
Telek: 2051 négyzetméter
Ingatlan állapota: Átlagos
Jelleg: ikerház
Építőanyag: Tégla
Fűtés jellege: Geotermikus
Fűtés módja: Hőszivattyú
Komfort fokozat: Dupla komfort
Kor: Új építésű
Szintek száma: 1 szint
Egész szobák: 5
Fél szobák: 1

Egyéb jellemzők

  • Csatorna
  • Garázs
  • Pince
  • Terasz

Térkép

Hasonló családi ház hirdetések

Eladó családi ház

Nagykovácsi

Nagykovácsiban kínálunk megvételre egy nettó 180 nm alapterületű - új ...

Eladó családi ház

Nagykovácsi

A főváros központjától mindössze 15 km-re, Nagykovácsiban 170nm-es, ...

Eladó családi ház

Nagykovácsi

Nagykovácsiban, Budai agglomeráció egyik legszebb lokációjában eladó ...

Eladó családi ház

Nagykovácsi

Nagykovácsi, Zsiros-hegy felöli részen eladó egy erdőközeli hangulatos ...

Hasonló családi ház hirdetések

Eladó családi ház

Nagykovácsi

Nagykovácsiban kínálunk megvételre egy nettó 180 nm alapterületű - új ...

Eladó családi ház

Nagykovácsi

A főváros központjától mindössze 15 km-re, Nagykovácsiban 170nm-es, ...

Eladó családi ház

Nagykovácsi

Nagykovácsiban, Budai agglomeráció egyik legszebb lokációjában eladó ...

Eladó családi ház

Nagykovácsi

Nagykovácsi, Zsiros-hegy felöli részen eladó egy erdőközeli hangulatos ...