Eladó családi ház Nagykozár 140 000 000 Ft

Leírás

Eladó családi ház Nagykozárban kiváló állapot, dupla garázs, parkosított udvar!
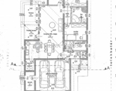
Eladásra kínálunk Nagykozárban, rendezett utcában, csendes környezetben egy 2004-ben épült, 100 m²-es, nappali + 3 szobás családi házat, amelyhez 1.010 m²-es, sík telek tartozik.
Az ingatlan főbb jellemzői:
- Lakótér: nappali + konyha-étkező (43 m²),
3 külön szoba- Fürdőszoba + WC,
valamint külön WC- Mosókonyha/háztartási helyiség és kamra-
Garázsból nyíló hobbi/barkács helyiség
- Fedett és nyitott terasz, közvetlen kapcsolat a kerttel
Műszaki adatok, felszereltség:
- Könnyűszerkezetes, szigetelt épület
- Gáz-cirkó kazán biztosítja a fűtést és a melegvizet
- 2 klímaberendezés a komfort érdekében
- Műanyag nyílászárók, mindenhol redőnnyel és szúnyoghálóval
- Riasztó- és kamerarendszer a biztonságért
Igény esetén teljes berendezéssel együtt eladó.
Külső adottságok:
- Parkosított, gondozott udvar örökzöldekkel
- Fúrt kút, öntözési lehetőséggel
- 2 férőhelyes, dupla garázs
- Kerti tároló a szerszámoknak
Elhelyezkedés:
- Rendezett, barátságos utca
- Jó szomszédság
Pécs mindössze néhány perc alatt elérhető
Ez a ház tökéletes választás lehet mindazoknak, akik csendes, biztonságos környezetben szeretnének élni, nagy kerttel és kényelmes, jól kialakított belső terekkel.
Ideális családok számára, de befektetésnek is értékálló választás.
További információért és megtekintésért várom hívását!

Családi ház részletei

Ár: 140 000 000 Ft
Méret: 150 négyzetméter
Azonosító: 11569161
Irodai azonosító: HZ067530-5050362
Cím: Nagykozári 150 nm-es ház eladó
Telek: 1010 négyzetméter
Ingatlan állapota: Kitűnő
Jelleg: családi ház
Építőanyag: Könnyűszerkezetes
Fűtés jellege: Cirkó
Fűtés módja: Gáz
Kor: 21-50 éves
Szintek száma: Földszintes
Egész szobák: 4

Térkép

Hasonló családi ház hirdetések

Eladó családi ház

Nagykozár

Eladó Nagykozár új építésű részén 2012-ben épült nappali + 3 szobás ...

Eladó családi ház

Nagykozár

Nagykozárban, Pécstől 10 percre, eladó egy 150nm alapterületű, amerikai ...

Eladó családi ház

Nagykozár

Nagykozár központjától nem messze, egy forgalomtól elzárt, nyugodt zsákutcában ...

Eladó családi ház

Nagykozár

Nagykozár központjától nem messze, egy forgalomtól elzárt, nyugodt zsákutcában ...

Hasonló családi ház hirdetések

Eladó családi ház

Nagykozár

Eladó Nagykozár új építésű részén 2012-ben épült nappali + 3 szobás ...

Eladó családi ház

Nagykozár

Nagykozárban, Pécstől 10 percre, eladó egy 150nm alapterületű, amerikai ...

Eladó családi ház

Nagykozár

Nagykozár központjától nem messze, egy forgalomtól elzárt, nyugodt zsákutcában ...

Eladó családi ház

Nagykozár

Nagykozár központjától nem messze, egy forgalomtól elzárt, nyugodt zsákutcában ...