Eladó családi ház Nyáregyháza 72 900 000 Ft

Leírás

Költözzön Álomotthonába, Budapestről gyorsan elérhető Nyáregyházára!

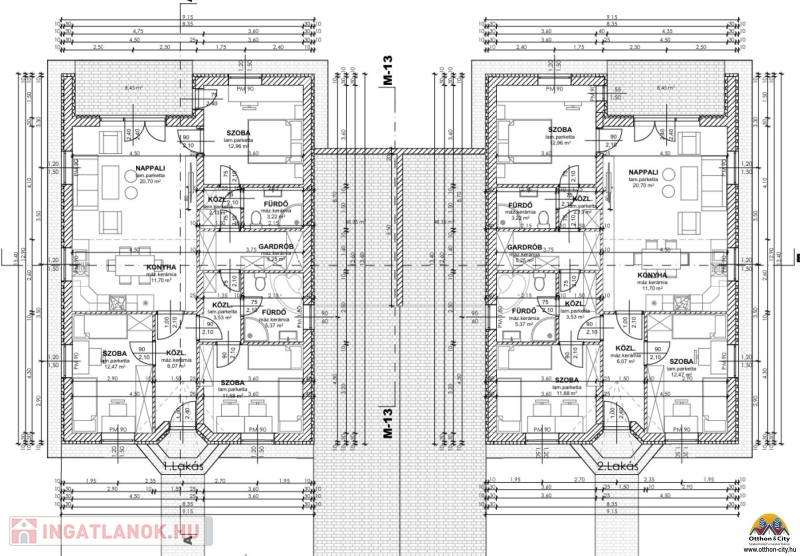
Eladó Modern Ikerházak Csendes, Zöldövezeti családi házas övezetben!
Kiváló a közlekedés: 3 perces sétával buszmegálló elérhető ahonnan a Monorierdő vasútállomás 9 perc és innen Budapestet 20 perc alatt elérjük. Két földszinti ikerházfél kerül eladásra, ahol a nyugalom és a modern életstílus találkozik.

Cégünk több éves szakmai tapasztalattal rendelkezik a prémium ingatlanok építése terén! Referenciaházaink megtekinthetők, hogy Ön is megbizonyosodjon a minőségünkről!

Kiemelkedő telek adottságok:
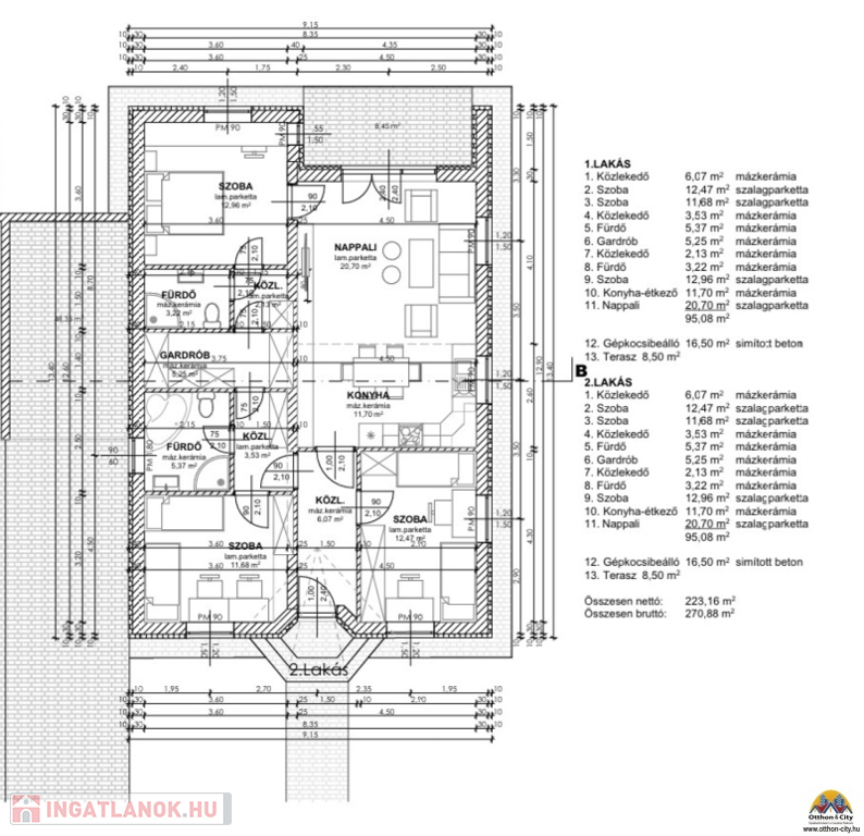
Összterület: 2200 nm
A lakásokhoz tartozó terület: 1100 nm- 1100 nm

Maximális privát szféra: Az ingatlanok között FEDETT autóbeálló épül, így nincs közös fal, ami garantálja az Ön nyugalmát és privát életterét! Hagyományos ikerház, egymás mellet és nem egymás mögött helyezkednek el.

Luxus elrendezés:
Tégla építésű, földszintes ikerházak mérete nettó 93 nm
Modern amerikai konyhás nappali
3 különálló hálószoba (11, 12, 13 nm),
Dupla fürdőszoba: épített zuhannyal és fürdőkáddal
Gardróbszoba
Prémium kivitelezés, energiatakarékos megoldások:
Fűtés: modern, hőszivattyús rendszer – alacsony rezsiköltségek!
Hűtő-fűtő inverteres Klímával felszerelten
Energetikai besorolás: AA+ - Zöldhitel és CSOK+, Otthonstart igénybevételére alkalmas
Szigetelés: 12 cm szigetelés az aljzatban, 10 cm grafitos szigetelés a homlokzaton, 30 cm szigetelés a fafödémen
A három rétegű, öt légkamrás ablakok műanyag redőnyök lesznek felszerelve
Riasztórendszernek, kapunyitó motornak előkészítése
Átadás: 2026.02. kulcsrakészen, minőségi kivitelezéssel!

Ez az ingatlan nemcsak egy ház – ez egy életérzés! Ha fontos Önnek a nyugalom, a modern életstílus és az energiatakarékos megoldások, akkor ne keressen tovább!

Lépjen időben! Vegye fel velünk a kapcsolatot még ma, és biztosítsa be helyét ebben a csodálatos környezetben!

Családi ház részletei

Ár: 72 900 000 Ft
Méret: 95 négyzetméter
Azonosító: 11559282
Telek: 1000 négyzetméter
Ingatlan állapota: Kitűnő
Jelleg: ikerház
Építőanyag: Kérdezzen rá a hirdetőtől »
Szintek száma: 1 szint
Egész szobák: 4

Egyéb jellemzők

  • Csatorna
  • Garázs
  • Kábel TV
  • Melléképület
  • Parketta
  • Pince
  • Terasz

Hasonló családi ház hirdetések

Eladó családi ház

Nyáregyháza

Kiadható albérletekkel eladó egy különleges lakóház, erdei környezetben, ...

Hasonló családi ház hirdetések

Eladó családi ház

Nyáregyháza

Kiadható albérletekkel eladó egy különleges lakóház, erdei környezetben, ...