Eladó családi ház Nyíregyháza 74 900 000 Ft

Leírás

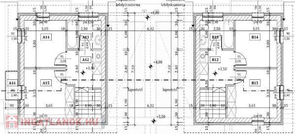
Nyírszőlős csendes, kertvárosi részén eladásra kínálok egy 123 m² alapterületű, mediterrán stílusú ikerházat, amely csak garázskapcsolattal érintkezik a szomszédos lakóegységgel, így biztosítva a nagyobb privát szférát. Az ingatlan várhatóan 2026. év végén kerül átadásra.
Az ingatlan praktikus elosztású:

nappali + 3 szoba
tágas, világos élettér
mindkét szinten külön mosdó/WC található, ami a kényelmes mindennapokat szolgálja

Műszaki jellemzők:

30-as Porotherm NF tégla falazat
külső falakon 15 cm hőszigetelés
monolit födém 30 cm szigeteléssel
műanyag nyílászárók, 3 rétegű üvegezéssel
vizes helyiségek teljes falszigeteléssel
energetikai besorolás A+

Telek és egyéb adottságok:

360 m²-es telek
18 m²-es garázs

Fűtés és komfort:

egyedi gáz- vagy hőszivattyús fűtési rendszer választható
padlófűtés a közös terekben
radiátoros fűtés a szobákban
klimatizálás a vételár részét képezi

Irányár: 74,9 millió Ft
TEL: 20 9 268-433
Az ingatlan ideális választás családok számára, akik új építésű, korszerű és energiahatékony otthont keresnek nyugodt, kertvárosi környezetben, nagyobb intimitással.Az ingatlan azonosítója: 100194Érdeklődni: +36209268433 Az ingatlan azonosítója: 100194 Érdeklődni: +36209268433

Családi ház részletei

Ár: 74 900 000 Ft
Méret: 123 négyzetméter
Azonosító: 11616104
Irodai azonosító: 100194
Telek: 360 négyzetméter
Ingatlan állapota: Épülő
Jelleg: családi ház
Építőanyag: Tégla
Fűtés jellege: Geotermikus
Kor: 1-5 éves
Egész szobák: 3

Hasonló családi ház hirdetések

Eladó családi ház

Nyíregyháza

Nyíregyházán a Korányi kertvárosban, eladásra ...

Eladó családi ház

Nyíregyháza

Nyíregyháza Sóstóhegyen a Kemecsei út közelében ...

Eladó családi ház

Nyíregyháza, Oros

Nyíregyháza Oroson Praktiker közelében, 6 Szobás, ...

Eladó családi ház

Nyíregyháza

Nyíregyháza Ságvári Kertvárosban eladásra ...

Hasonló családi ház hirdetések

Eladó családi ház

Nyíregyháza

Nyíregyházán a Korányi kertvárosban, eladásra ...

Eladó családi ház

Nyíregyháza

Nyíregyháza Sóstóhegyen a Kemecsei út közelében ...

Eladó családi ház

Nyíregyháza, Oros

Nyíregyháza Oroson Praktiker közelében, 6 Szobás, ...

Eladó családi ház

Nyíregyháza

Nyíregyháza Ságvári Kertvárosban eladásra ...