Eladó családi ház Nyíregyháza 79 000 000 Ft

Leírás

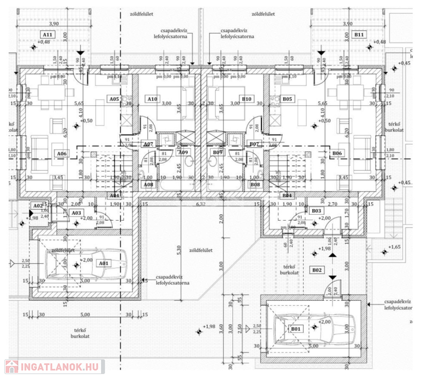
Eladó Nyíregyháza Nyírszőlős részén a Kollégium utcai lakóparkban 2025-ben épülő új A++ besorolású 3 szobás garázsos lakóparki ikerház. (K/2)

Ára: 79.000.000 Ft.

Az ingatlan alap méretei:
- a telek mérete: 360nm,
- a ház alapterülete: 109nm.

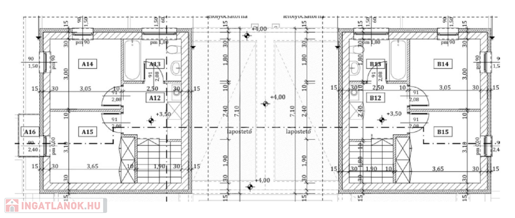
Az épület hasznos alapterülete 109nm melyben található:
- 3 szoba,
- amerikai konyhás nappali,
- kamra,
- fürdőszoba,
- WC,
- közlekedő,
- előszoba,
- garázs (17nm),
- terasz (12nm).


Az új építésű lakóparki ikerház várhatóan 8 hónapon belül kerül átadásra, mely korszerű hő takarékos építészeti megoldásokat alkalmazva készül el. A falazata 30-as téglából épül, mely 15 cm-es EPS homlokzati hőszigetelést kap. A födém szerkezete 15 cm-es ásványszálas hőszigetelésű lesz, így az egész épület energetikai szempontból A++ kategóriájú.

Az épületben áram, víz, gáz és csatorna bekötésre kerül. Az épület padlófűtéssel, radiátoros fűtéssel vagy kérés esetén a kettő kombinációjával készül el, mely gáz cirkó kazánról fog működni. Ezen kívül még 2 db hűtő-fűtő klíma is rendelkezésre fog állni. A melegvíz ellátásról szintén a gáz cirkó kazán gondoskodik.

Az ingatlan ideális választás lehet mindazok számára, akik új építésű, modern energiatakarékos otthont keresnek nyugodt kertvárosi környezetben.

Fontos!
Az ingatlan per és tehermentes, 2 gyerekes CSOK Plusz is igénybe vehető!

Figyelem!
Minőségi kivitelezés és választható belső burkolatok, szaniterek.
2025-ös energetikai szabványoknak megfelelő modern megoldások.
A belső elrendezés igény szerint módosítható.

Ha felkeltette érdeklődését, hívja irodánkat bizalommal!
Ha hitelre van szüksége éljen ingyenes, személyre szabott hitel ügyintézési szolgáltatásunkkal is.

Családi ház részletei

Ár: 79 000 000 Ft
Méret: 109 négyzetméter
Azonosító: 11545084
Irodai azonosító: 383973
Cím: Kollégium utcai lakópark 2
Telek: 360 négyzetméter
Ingatlan állapota: Kitűnő
Jelleg: családi ház
Építőanyag: Tégla
Fűtés jellege: Cirkó
Fűtés módja: Gáz
Komfort fokozat: Dupla komfort
Kor: Új építésű
Szintek száma: 1 szint
Egész szobák: 3

Egyéb jellemzők

  • Csatorna
  • Garázs
  • Pince
  • Terasz

Térkép

Hasonló családi ház hirdetések

Eladó családi ház

Nyíregyháza, Oros

Nyíregyháza-Oroson 110 nm-es, 3 szoba +nappali-étkezős, ...

Eladó családi ház

Nyíregyháza

Nyíregyházán a Korányi kertvárosban, eladásra ...

Eladó családi ház

Nyíregyháza

Nyíregyházán Borbányán, aszfaltozott út ...

Eladó családi ház

Nyíregyháza

Nyíregyháza Sóstóhegyen a Kemecsei út közelében ...

Hasonló családi ház hirdetések

Eladó családi ház

Nyíregyháza, Oros

Nyíregyháza-Oroson 110 nm-es, 3 szoba +nappali-étkezős, ...

Eladó családi ház

Nyíregyháza

Nyíregyházán a Korányi kertvárosban, eladásra ...

Eladó családi ház

Nyíregyháza

Nyíregyházán Borbányán, aszfaltozott út ...

Eladó családi ház

Nyíregyháza

Nyíregyháza Sóstóhegyen a Kemecsei út közelében ...