Eladó családi ház Nyíregyháza 89 900 000 Ft

Leírás

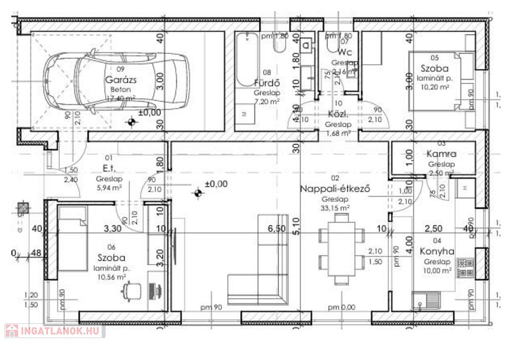
Eladó Nyíregyháza Nyírszőlős részén a Kollégium utcai lakóparkban 2025-ben épülő új amerikai stílusú A++ besorolású 2 szobás garázsos kertes családi ház. (K/1)

Ára: 89.900.000 Ft.

Az ingatlan alap méretei:
- a telek mérete: 901nm,
- a ház alapterülete: 101nm.

Az épület hasznos alapterülete 100,8nm melyben található:
- 2 szoba,
- amerikai konyhás nappali,
- kamra,
- fürdőszoba,
- WC,
- közlekedő,
- előtér,
- garázs (17nm).


Az amerikai stílusú új építésű családi ház várhatóan 8 hónapon belül kerül átadásra, mely korszerű hő takarékos építészeti megoldásokat alkalmazva készül el. A falazata 30-as téglából épül, mely 15 cm-es EPS homlokzati hőszigetelést kap. A födém szerkezete 15 cm-es ásványszálas hőszigetelésű lesz, így az egész épület energetikai szempontból A++ kategóriájú.

Az épületben áram, víz, gáz és csatorna bekötésre kerül. Az épület padlófűtéssel, radiátoros fűtéssel vagy kérés esetén a kettő kombinációjával készül el, mely gáz cirkó kazánról fog működni. Ezen kívül még 2 db hűtő-fűtő klíma is rendelkezésre fog állni. A melegvíz ellátásról szintén a gáz cirkó kazán gondoskodik.

Az ingatlan ideális választás lehet mindazok számára, akik új építésű, modern energiatakarékos otthont keresnek nyugodt kertvárosi környezetben.

Fontos!
Az ingatlan per és tehermentes, 2 gyerekes CSOK Plusz is igénybe vehető!

Figyelem!
Minőségi kivitelezés és választható belső burkolatok, szaniterek.
2025-ös energetikai szabványoknak megfelelő modern megoldások.
A belső elrendezés igény szerint módosítható.

Ha felkeltette érdeklődését, hívja irodánkat bizalommal!
Ha hitelre van szüksége éljen ingyenes, személyre szabott hitel ügyintézési szolgáltatásunkkal is.

Családi ház részletei

Ár: 89 900 000 Ft
Méret: 101 négyzetméter
Azonosító: 11609756
Irodai azonosító: 388009
Cím: Kollégium utcai lakópark 1
Telek: 901 négyzetméter
Ingatlan állapota: Kitűnő
Jelleg: családi ház
Építőanyag: Tégla
Fűtés jellege: Cirkó
Fűtés módja: Gáz
Komfort fokozat: Dupla komfort
Kor: Új építésű
Szintek száma: Földszintes
Egész szobák: 2

Egyéb jellemzők

  • Csatorna
  • Garázs
  • Pince
  • Terasz

Térkép

Hasonló családi ház hirdetések

Eladó családi ház

Nyíregyháza, Malomkert

Nyíregyházán a Malomkertben 75+55 nm-es, 4 szoba, 2 konyhás, ...

Eladó családi ház

Nyíregyháza

Nyíregyháza-Borbánya elején a Kállói ...

Eladó családi ház

Nyíregyháza

Nyíregyháza, Korányi Frigyes úton, 170 nm-es, nappali ...

Eladó családi ház

Nyíregyháza

Nyíregyháza - Sóstóhegy,  Kemecsei út ...

Hasonló családi ház hirdetések

Eladó családi ház

Nyíregyháza, Malomkert

Nyíregyházán a Malomkertben 75+55 nm-es, 4 szoba, 2 konyhás, ...

Eladó családi ház

Nyíregyháza

Nyíregyháza-Borbánya elején a Kállói ...

Eladó családi ház

Nyíregyháza

Nyíregyháza, Korányi Frigyes úton, 170 nm-es, nappali ...

Eladó családi ház

Nyíregyháza

Nyíregyháza - Sóstóhegy,  Kemecsei út ...