Eladó családi ház Nyúl 98 600 000 Ft

Leírás



EZ AZ A HÁZ, AMIRE 30 ÉV MÚLVA IS AZT MONDOD MAJD: „JÓ DÖNTÉS VOLT!”
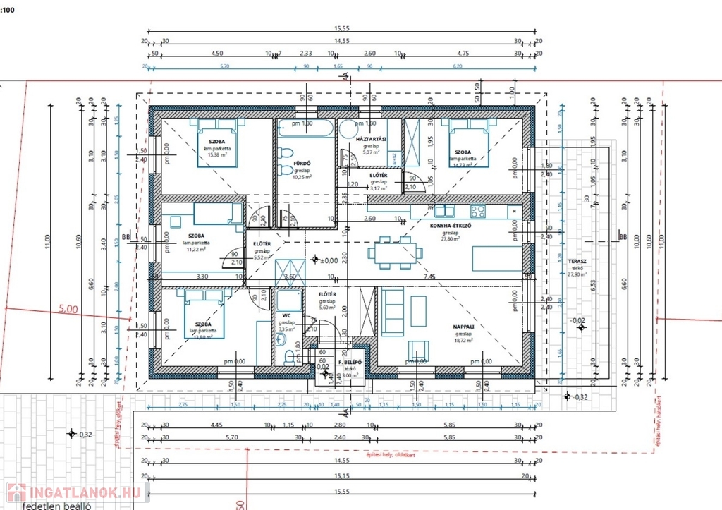
Képzeld el, hogy egy vadonatúj, modern, energiahatékony, 135 m2-es OTTHONT veszel (étkező-konyha-nappali + 4 szoba, 2 fürdőszoba) + 28 m2-es TERASZ, egy élhető 630 m2-es (19,4 m x 32,9 m) telken, amit most még a saját stílusodra formálhatsz, GYŐRTŐL PÁR PERCRE, Nyúl !! HA!!! Mégnagyobb telekre vágysz, lehetőség van a telek hosszát 12 m-rel meghosszabbítani,
AMI 930 M2-ES TELKET JELENT!
A SZÁMOK, AMIK SZÁMÍTANAK:
Telek: 630 m²
Lakótér: nettó 135 m²
Elrendezés:
•46,5 m² amerikai konyhás nappali
•4 külön nyíló hálószoba (11,2 m² / 13,8 m² / 14,7 m² / 15,4 m²)
•2 fürdőszoba
•1 háztartási helyiség
•Tágas előszoba, széles közlekedők
•28 m² terasz
A kert végében különálló garázs is építhető (külön megállapodás alapján a beruházó kivitelezi).
Ez az a méret, ahol már nem kell sakkozni a terekkel.
Home office? Gyerekszoba? Gardrób? Edzősarok? Minden is megoldható!

A+ ENERGETIKA – NEM CSAK JÓL HANGZIK, HANEM PÉNZT SPÓROL
•A+ energetikai besorolás
•3x16A nappali áram + 3x16A H-tarifa (már engedélyezve)
•Víz-levegős hőszivattyú
•Padló- és mennyezeti hűtés-fűtés
•HMV tartály
Ez egy rezsibiztos, jövőálló rendszer.
Nem a számlák miatt fogsz aggódni, hanem azon gondolkodsz majd, hova utazzatok nyáron.

MASSZÍV MŰSZAKI TARTALOM – AMI NEM LÁTSZIK, DE ÉRTÉK
•30 cm pórusbeton főfal
•10 cm válaszfal
•20 cm homlokzati hőszigetelés
•14 cm padlószigetelés + estrich beton
•30 cm födémszigetelés (kőzetgyapot vagy azzal egyenértékű)
•Szeglemezes tetőszerkezet padlásfeljáróval
•Antracit hullámos betoncserép, antracit bádogozás
Nyílászárók:
•MARSHALL, 6 légkamrás, 3 rétegű üvegezés
•Kívül antracit, belül fehér
•Vakolható redőnytok
•Pliszé szúnyogháló előkészítés
•Igény szerint motoros, távirányítós redőny

OKOSAN ELŐKÉSZÍTETT ELEKTROMOS RENDSZER
•Minden hálóban 4 konnektor (és még ahányat csak akarsz)
•Nappaliban és konyhában 8-8 konnektor
•Kültéren 1 konnektor
•Lámpakiállás minden helyiségben, bejáratnál és a teraszon
•Riasztórendszer előkészítés
•Alap gépészeti kiállások (a tervezett konyhaszigetnél is)

Ez a ház a mai életformára lett tervezve, tudatosan.
EDDIG FŰTÉSKÉSZ ÁLLAPOT – A TÖBBI A TE DÖNTÉSED
A meghirdetett bruttó vételár fűtéskész állapotra vonatkozik.
Fűtéskész állapotban - 98,6MFt

KULCSRAKÉSZ ÁLLAPOTOT a beruházó egyedi megállapodás alapján vállal.
Vételár tartalma
telek (630m2)
Szerkezet:
épület alapozás
főfalazat (30cm-es pórusbeton, hálózva, másodolva)
szeglemezes tetőszerkezet betoncserép héjazattal
tetőszerkezeti bádogozás és esőcsatornázás talajszintig
tető túlnyúlás dobozolása lambériával, színre festve
kültéri nyílászárók, pliszé segédkeret, vakoltó redőny tokozás és lefutó sinek
válaszfalazás 10-es ytonggal (hálózva, másodolva)
lábazati talajvíz elleni védőréteg
20cm homlokzati és lábazati hőszigetelés (hálózva, élvédőzve, másodolva, színezve)
belső padlószinten talajvíz és talajpára elleni védelem folyékony gumival két rétegben
14cm lépésálló szigetelés, hőtükörfólia
estrich beton
a mennyezeti csövezés felett hőtükörfólia majd 30cm kőzetgyapot szigetelés
padlásfeljáró (padlástér használható területének deszkázata külön kérhető)
térkövezett szélfogó és terasz terveknek megfelelő méretben

Gépészet és villamosság:
3x16A nappali áram és 3x16A H-tarifa a hőszivattyúhoz
víz-levegős hőszivattyú + 300l HMV tartály (itt a padló burkolást muszály megcsinálni)
mindenhol padló és mennyezeti fűtéshez és hűtéshez is csövezés
vizes helységekben és a konyhában alap gépészeti kiállások
riasztórendszerhez vezetékezés mozgás és nyitásérzékelőkhöz
minden hálószobában 4db, nappaliban és a konyhában 8-8 db, kültéren 1db dugaszolóaljzatnak vezetékes kiállás
minden helységben, a bejárati ajtó előtt és a teraszon is 1-1db mennyezeti vagy oldalfali lámpához kiállás
Így, akár 125 M Ft-ból lehet egy KULCSRAKÉSZ, MINŐSÉGI, GYÖNYÖRŰ OTTHONOD!
És itt jön a legjobb rész:
Minél hamarabb választod, annál több minden készülhet a Te igényeid szerint.
Burkolat.
Színek.
Hangulat.
Ez nem csak egy „kész ház”.
Ez egy lehetőség, hogy valóban a SAJÁTOD legyen.

FINANSZÍROZHATÓ
Az ingatlanra bármilyen hitel igényelhető.

ŐSZINTÉN?
Az ilyen paraméterű, önálló, 135 m²-es, étkező-konyha-nappali + 4 szobás, 2 fürdőszobás,
A+ energetikájú új építésű házak Győr környékén RITKÁK – ÉS GYORSAN ELKELNEK,
Ha most hozzájutsz egy ilyenhez, az nem csak egy vásárlás.
Az egy szintlépés.
Egy saját kert.
Egy modern, rezsibiztos otthon.
Egy hely, ahova jó hazamenni.
Ha érzed benne a jövőtöket, ne várj, mert az ilyen lehetőségek nem kopogtatnak kétszer!

Nyúl ideális választás családoknak. Iskola, óvoda, bölcsőde, cukrászda, étterem, "kis"boltok, multi a településen belül elérhetők.
Az M1-es és Győr néhány perc alatt megközelíthető, így a városi munka és a nyugodt otthoni környezet jól összeegyeztethető.

Amennyiben felkeltette érdeklődésedet, további információért vagy megtekintéshez időpontért
HÍVJ BIZALOMMAL!
+36 70 63 58 661
Nézzük meg együtt, MERT ÉRDEMES!
Hívj a hét bármely napján!

Ügyfeleimnek az adásvétel teljes körű lebonyolítását vállalom.
Az első megtekintéstől a beköltözésig számíthat rám!
Irodánk ügyvédi szolgáltatással és díjmentes, 3 %-os hitel, támogatott hitelek, bank független piaci hitelek, CSOK ügyintézésével áll rendelkezésükre.
A jelen hirdetésben rögzített, az ingatlannal kapcsolatos adatok, információk a Megbízó tájékoztatása alapján kerültek meghatározásra.

BARISKÁNÉ NEMES ERZSÉBET
Prémium Ingatlanértékesítő

Családi ház részletei

Ár: 98 600 000 Ft
Méret: 135 négyzetméter
Azonosító: 11601028
Irodai azonosító: 125188
Cím: Nyúl
Ingatlan állapota: Átlagos
Jelleg: családi ház
Építőanyag: Kérdezzen rá a hirdetőtől »
Fűtés jellege: Cirkó
Kor: Új építésű
Egész szobák: 5

Egyéb jellemzők

  • Terasz