Eladó családi ház Ócsa 109 900 000 Ft

Leírás

Ócsa, méltán kedvelt részén kínálok eladásra kettő darab, Bruttó 159.5 nm-es, nappali + 4 hálószobás, dupla fürdőszobás, teraszos, magas műszaki tartalommal épülő, hőszivattyús, tetőtér beépítéses, új építésű ikerházi lakásokat!!!

A 2025-ös évi elvárásoknak megfelelően épül, levegő-víz hőszivattyúval. A hűtésről kettő db 3.5 KW-os inverteres hűtő-fűtő klíma fog gondoskodni.
Az 1239 nm-es telekre 1 db ikerház kerül megépítésre, minden ingatlanhoz kerítéssel leválasztott telek terület tartozik. Az utcafronti 1. számú ingatlanhoz tartozó telekterület: ~250 nm, terasz 14 nm +4 nm tetőterasz, a hátsóudvar felőli ingatlanhoz: ~1000 nm telekterület, terasz 14 nm + 4 nm tetőterasz . A lakások kizárólag fedett kocsibeállóval kapcsolódnak, ezáltal az ott élők egymás nyugalmát nem zavarják.

A lakások ügyvéd által ellenjegyzett használati megosztással kerülnek értékesítésre.

Árak:
1.lakás: utcafronti ingatlan nettó 142 nm(bruttó 159.5 nm) , ~ 200-250 nm telekterület, levegő-víz hőszivattyú, padlófűtés. Irányár: 99.9 Millió forint.

2.lakás: hátsó udvar felőli nettó 142 nm(bruttó 159.5 nm), ~ 1000 nm telekterület, levegő-víz hőszivattyú, padlófűtés. Irányár: ELKELT!!!

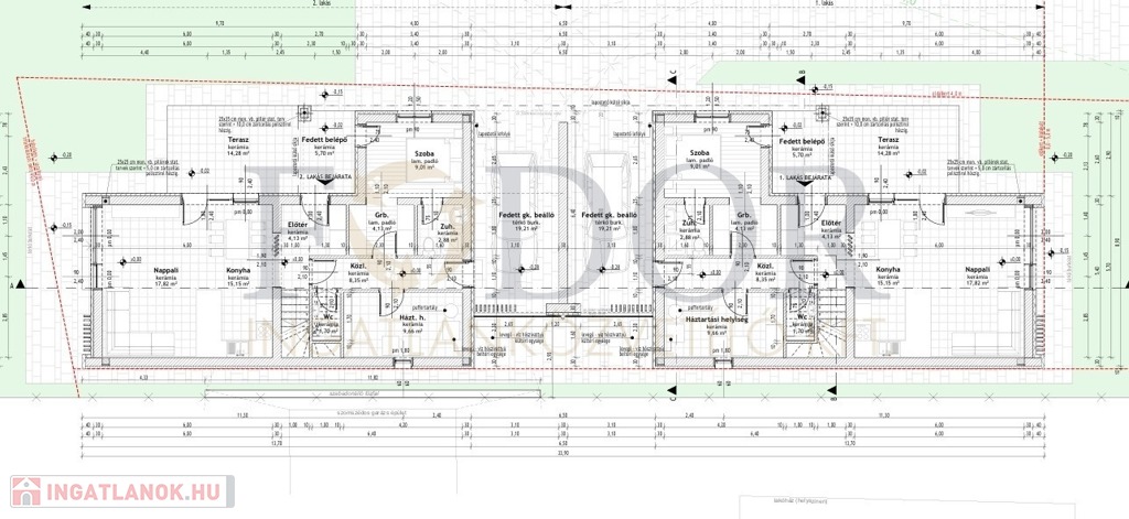
ELRENDEZÉSÜKET LÁSD AZ ALAPRAJZON!

Az építkezés hamarosan elkezdődik, kövesse nyomon új otthona épülését. A hirdetésben szereplő vételár a kulcsrakész állapotra vonatkozik. Burkolatok, szaniterek, beltéri ajtók választhatók.

Megbízható, tőkeerős kivitelező, nem az első építkezése, precíz, minőségi anyagokkal és emberi erőforrással dolgozik. Referencia házak a közelben.

Bővebb információért és részletes tájékoztatásért keressen bizalommal!!!

Műszaki:
• 30-as PHOROTHERM főfal + 10 cm homlokzati szigetelés
• 10 cm válaszfalak
• fafödém, felette 25 cm ásvány vagy üveggyapot szigetelés
• antracit cserép
• vasbeton sávalap
• antracit, műanyag tokos, 3 rétegű thermo üveges külső nyílászárók redőnnyel
• hőszivattyú, padlófűtés
• 2 db 3,5 KW-os inverteres hűtő-fűtő klíma egy a nappaliban nappaliban és egy az emeleti közlekedőben
• hidegburkolat: 8000ft/nm
• melegburkolat: 5000ft/nm


Tulajdonságok:
• amerikai konyhás világos nappali
• nappali + 4 db különnyíló hálószoba
• földszinti szülői háló gardróbbal és privát zuhanyzóval
• 2 db fürdőszoba
• saját privát telekterület
• riasztó rendszer előkészítés
• napelem előkészítés
• utcafronti elektromos kapu az ár részét képezi
• alap kertrendezés füvesítve
• telek előtti közterület térkövezése

AZ ÁR KULCSRAKÉSZ ÁLLAPOTRA VONATKOZIK! ELRENDEZÉSÉT LÁSD AZ ALAPRAJZON!

Infrastruktúrája kiváló, Ócsa Budapest közvetlen agglomerációjában található, mindössze 25 km-re a fővárostól, így autóval és vonattal is gyorsan megközelíthető. A település saját vasútállomással rendelkezik, ahonnan a zónázó vonatokkal 30-35 perc alatt elérhető Budapest belvárosa (Kőbánya-Kispest, Nyugati pályaudvar). A M5-ös autópálya és az M0-s körgyűrű közelsége miatt az autós közlekedés is rendkívül kedvező. A környék csendes, családbarát, kiváló infrastruktúrával: iskola, óvoda, orvosi rendelő, gyógyszertár, boltok, piac és sportolási lehetőségek mind helyben elérhetők.

Várható átadás: 2026.II. negyedév

A leírás kizárólag tájékoztató jellegű

IRODÁNK INGYENES HITEL ÜGYINTÉZÉSSEL, TANÁCSADÁSSAL, SZÁMOS BANK AJÁNLATÁVAL ÉS AZ ÚJ CSOK PLUSZ FOLYÓSÍTÁSÁVAL VÁRJA ÜGYFELEIT!

Családi ház részletei

Ár: 109 900 000 Ft
Méret: 142 négyzetméter
Azonosító: 11572817
Irodai azonosító: 343889
Telek: 600 négyzetméter
Ingatlan állapota: Kitűnő
Jelleg: ikerház
Építőanyag: Tégla
Komfort fokozat: Dupla komfort
Kor: Új építésű
Egész szobák: 5

Egyéb jellemzők

  • Terasz

Hasonló családi ház hirdetések

Eladó családi ház

Ócsa

Ócsa, méltán kedvelt részén kínálok eladásra kettő darab, Bruttó ...

Hasonló családi ház hirdetések

Eladó családi ház

Ócsa

Ócsa, méltán kedvelt részén kínálok eladásra kettő darab, Bruttó ...