Eladó családi ház Pákozd 235 000 000 Ft

Leírás

Önálló ingatlan! Alacsony rezsi! Rövid birtokbaadási idő!

Vh-004171. Pákozdon, a Velencei-tó északi partján 1070 m2-es telken 230m2-es, nappali + 4 szobás családi ház, parkosított kerttel, nyári kiülővel, medencével eladó!

Pákozd a Velencei-tó északi partja és a Velencei-hegység délkeleti lábánál elhelyezkedő, festői környezetben található település. Igen kedvező földrajzi elhelyezkedése az országon belül. Hiszen Budapesttől 49 km, Székesfehérvártól 10 km, a Balatontól (Siófok) 50 km. Mindez az M7-es autópályán is elérhető.

A kétszintes tágas ház, a főútról könnyen megközelíthető övezetben található. Buszmegálló, illetve a kereskedelmi, valamint a közintézmények (óvoda, iskola, orvos, fogorvos, posta, gyógyszertár, játszótér, élelmiszer bolt, hentes, gazdabolt..) 10 - 15 perc távolságra elérhetőek.
Az ingatlan összközműves, az épület 2004-ban, POROTHERM 38-as téglából épült+ 5cm szigeteléssel. A ház beton födémes, tető héjalása TONDACH tetőcseréppel készült. A fűtést hőszivattyú biztosítja, a hőleadásról radiátorok gondoskodnak. Alternatív fűtésként minden helységben hűtő – fűtő klímák találhatók. A nyílászárók 2 rétegű üvegezésűek, redőnnyel, illetve árnyékolóval ellátottak. A helyiségek minőségi burkolatokkal burkoltak. A villanyszámla szinte 0 ft, köszönhető a szaldós napelemnek évente 18.000 Kw termeléssel.

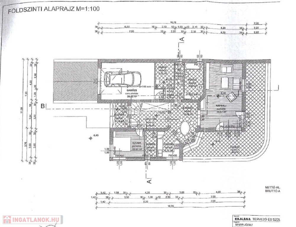
Az ingatlan elosztása: 230 m2 hasznos alapterület:
-Földszint 98m2: előtér, tágas nappali, étkező- konyha +kamra, 1 hálószoba, 1 fürdő (kád külön wc-vel, Háztartási helyiség+ 40m2-es terasz + 26 nm-es garázs
- Tetőtér 130m2: közlekedő, 3 hálószoba+ fürdőszoba (zuhanyzóval és káddal)

Főbb jellemzők:
• központ közeli elhelyezkedés, önálló 1070 m2 telekterület, közelben túrázási lehetőség
• nappali+4 szoba+ 2 fürdő + nyári kiülő medencével (2,75 m * 5,75 m)
• parkosított kert
• napelem rendszer
• az épület teljesen klimatizált, földszinten, az emeleten hűtő-fűtő klímák
• kamerarendszer az épületen és a melléképületen távoli hozzáféréssel

Az utcafronti bejutás kapun keresztül biztosított. A telek, gondozott örökzöldekkel, dísznövényekkel, sövényekkel,.. parkosított valamint 8 zónás öntözőrendszerrel ellátott.

A nyári kiülő, több funkcióra is kényelmesen használható. A teljesen felszerelt és gépesített konyhának köszönhetően nem kell a házba bemenni, és minden konyhai funkció komfortosan elérhető egy társasági vagy családi összejövetel alkalmával.

Az épület részben található egy épített zuhanyzós fürdő és wc egyben, a használati meleg vizet villanybojler biztosítja. A napelemrendszer is ennek az épületnek a tetejére lett telepítve.
A szabadidős tevékenységen és használaton túlmenően az épület dupla állásos garázsnak is jól használható.

A motoros garázskapúk egyedi tervezésűek és gyártásúak, leengedésüket követően is világos marad a belső tér.

A nyári meleget klíma enyhíti az épületrészben, télen pedig gondoskodik a melegről, így minden évszakban kényelmesen és komfortosan használható.

A melléképület utolsó egysége szintén több funkciós, alkalmas akár kerti szerszámok, biciklik stb. minőségi tárolására, vagy egy autó számara garázs funkciót is be tud tölteni. Az elején és a hátulján is garázskapú található ami megkönnyíti a mindennapi funkcióknak megfelelő használatot.

Ideális választás mindenki számára, legyen szó gyermekkel költöző családoknak, pihenni vágyóknak. A ház a kényelmes otthont biztosít a lakók számára, mind a belső lakrészben, mind a kert, udvar, illetve a terasz területén. Nyugalmat sugároz, a mindennapos rohanások után.

Eladási irányár: 235 mFt

A vásárláshoz, a jelenleg aktuális családok otthonteremtésére vonatkozó összes támogatás igénybe vehető (CSOK, Jelzáloghitel, Babaváró……)

Ha felkeltette érdeklődését, hívja irodánkat bizalommal, éljen ingyenes, személyre szabott hitelügyintézés szolgáltatásunkkal. Segítünk továbbá adásvételhez szükséges ügyvédi közreműködésben, energetikai tanúsítvány, valamint értékbecslés elkészítésében.

Családi ház részletei

Ár: 235 000 000 Ft
Méret: 230 négyzetméter
Azonosító: 11431282
Irodai azonosító: 371664
Cím: Pákozd
Telek: 1070 négyzetméter
Ingatlan állapota: Átlagos
Jelleg: családi ház
Építőanyag: Tégla
Fűtés jellege: Geotermikus
Fűtés módja: Hőszivattyú
Komfort fokozat: Összkomfort
Kor: 21-50 éves
Szintek száma: 1 szint
Egész szobák: 1
Fél szobák: 4

Egyéb jellemzők

  • Csatorna
  • Garázs
  • Pince
  • Terasz

Térkép