Eladó családi ház Pécel 98 000 000 Ft

Leírás

CSAK NÁLUNK!

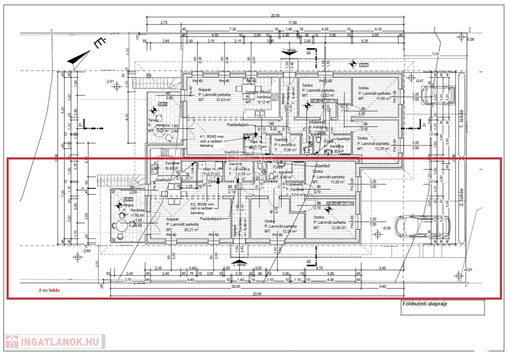
Pécel, kedvelt Levendulás lakóparkjában, eladó egy nettó 98,8 m², bruttó 107,81 m² alapterületű, 2 lakásos lakóépület 2-es lakása.

A lakásokat, aszfaltos úton lehet megközelíteni. .

A 98,8 m²-es lakótérben 3 szoba + nappali biztosít kényelmes életteret a jövőbeli lakóknak. A házhoz tartozik egy ~508 m²-es saját kert, ami tökéletes helyszín családi és baráti összejövetelekhez. A 11,83 m²-es teraszról (alatta 9,01 m²-es tároló) gyönyörű kilátás nyílik a környező tájra.


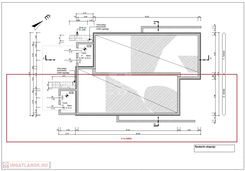
A lakások szimmetrikus belső elrendezéssel kerültek megtervezésre, földszintes kialakítással, illetve részleges szuterén beépítéssel. A lakások az oldalkerti homlokzatok közepén lévő bejáratokon közelíthetők meg.

Rövid műszaki tartalom:

- Az épület földszinti és emeleti külső határoló falai 30 cm vastag Porotherm 30 X-Therm falazó blokkból, úgynevezett klíma téglából készülnek.

- A külső körítő falak külső oldalai 15 cm grafitos EPS (H 80) hab hőszigetelő vakolatot kapnak.

- A tetőtér hőszigetelése, fújt hőszigetelő hab, kb. 45 cm vastag kőzetgyapotnak fele meg.

- A válaszfalak 10 N+F Porotherm válaszfal lapokból falazott 10 cm vastag falszerkezetek.

- A külső nyílászárók, fehér színben gyártott műanyag 3 rétegű, hőszigetelő üvegezéssel ellátottak (U= 0,9 W/m2K) ablakok lesznek.

- A meleg víz ellátást és a fűtést gáz kondenzációs kazán biztosítja majd, padlófűtés hűleadással.

Az alternatív fűtésről és hűtésről, KLÍMA fog gondoskodni.

A tervezet áram kapacitás 3 x16 A lesz.

Felár ellenében H-tarifás óra kérhető!

Helységlista:

- Földszint:
- 4,48 m² belépő ,
- 5,78 m² közlekedő,
- 12,38 m² szoba I.,
- 12,80 m² szoba II. ,
- 11,20 m² szoba III.,
- 4,80 m² fürdő,
- 1,44 m² WC,
- 3,68 m² gardrób,
- 3,27 m² háztartási helység,
- 26,21 m² nappali,
- 10,92 m² konyha -étkező,
- 1,84 m² kamra
- -----------------
98,8 m²

Nyitott terasz 11,83 m²

A terasz alatt szuterén tároló 9,01 m² lesz.


A kert durva tereprendezéssel lesz átadva.

Műszaki tartalom:

-Hideg burkolat 6.000 Ft/m²
-Meleg burkolat 5.000 Ft/m²
-Szaniterek 200.000 Ft-ig
-Beltéri ajtók 60.000 Ft, kilinccsel együtt /db


Magasabb árú építőanyag választás esetén a különbözetet a Vevő finanszírozza.

Az ár tartalmazza még:

- H-tarifa óra előkészítését, az órát és a dobozt nem,
- Kapumozgató elektronika előkészítését,
- Riasztó előkészítését.

A berendezések kiépítése opcionálisan, plusz pénzért megrendelhetők.

A belső VÁLASZFALAK, MÉG MÓDOSÍTHATÓK!


A Kivitelező a műszaki tartalom változtatás jogát fenntartja, az előírt energetikai előírások figyelembe vételével.

A Cég számos referenciával rendelkezik. Komoly érdeklődés esetén szívesen mutatunk referenciát!

Ne hagyja ki ezt a lehetőséget, legyen Ön az új ikerház tulajdonosa Pécelen!


JÖJJÖN el, NÉZZE meg, SZERESSEN bele!


A GV HitelCentrum, KÖTELEZETTSÉG MENTESEN és DÍJMENTESEN, versenyezteti Önért a bankok hitelajánlatait. Ismerje meg a vissza nem térítendő állami támogatásokat!

* Egyedi, bankfiókban nem elérhető kamat- és díjkedvezmények.
* Ingyenes Hitelképesség vizsgálat.
* Idő, energia és pénz megtakarítás.
* Teljes hivatali ügyintézés.
* Babaváró.
* CSOK+
* Hitel.
* Megtakarítás,
* és EGYÉB BANKI tranzakcióban segítségére lehetünk!

• Igény esetén, ÜGYVÉDI segítséget nyújtunk, MEGFIZETHETŐ áron!


Ha az ingatlannal kapcsolatban bővebb felvilágosításra lenne szüksége, hívjon bizalommal, állok rendelkezésére!

F.M.

Családi ház részletei

Ár: 98 000 000 Ft
Méret: 98 négyzetméter
Azonosító: 11611601
Irodai azonosító: 385231
Cím: Pécel, új építésű ikerfél -2 lakás
Telek: 508 négyzetméter
Ingatlan állapota: Épülő
Jelleg: ikerház
Építőanyag: Tégla
Fűtés jellege: Cirkó
Fűtés módja: Gáz
Komfort fokozat: Összkomfort
Kor: Új építésű
Szintek száma: 1 szint
Egész szobák: 3
Fél szobák: 1

Egyéb jellemzők

  • Csatorna
  • Garázs
  • Pince
  • Terasz

Térkép

Hasonló családi ház hirdetések

Eladó családi ház

Pécel

Pécelen a Százszorszép utca 61. szám alatt 1009m2-es telkeken, újonnan ...

Eladó családi ház

Pécel

Eladó sokoldalú ingatlan Pécelen, hatalmas szuterénnel ...

Eladó családi ház

Pécel

ÖSSZEKÖLTÖZNI VÁGYÓK FIGYELEM !!! Megvételre kínálok Pest megyei Pécelen, ...

Eladó családi ház

Pécel

CSAK NÁLUNK! Pécel, kedvelt Levendulás lakóparkjában, eladó egy nettó ...

Hasonló családi ház hirdetések

Eladó családi ház

Pécel

Pécelen a Százszorszép utca 61. szám alatt 1009m2-es telkeken, újonnan ...

Eladó családi ház

Pécel

Eladó sokoldalú ingatlan Pécelen, hatalmas szuterénnel ...

Eladó családi ház

Pécel

ÖSSZEKÖLTÖZNI VÁGYÓK FIGYELEM !!! Megvételre kínálok Pest megyei Pécelen, ...

Eladó családi ház

Pécel

CSAK NÁLUNK! Pécel, kedvelt Levendulás lakóparkjában, eladó egy nettó ...