Eladó családi ház Pécs 122 000 000 Ft

Leírás

Pécs-Rózsadombon, teljes körűen felújított, nappali-konyha-étkezős + 2 szobás ház eladó!

Az eredeti házból csak a 4 fal maradt meg, minden egyéb a mai kor követelményeinek megfelelően, magas minőségű anyagokkal és gondos szakértelemmel lett újjáépítve.

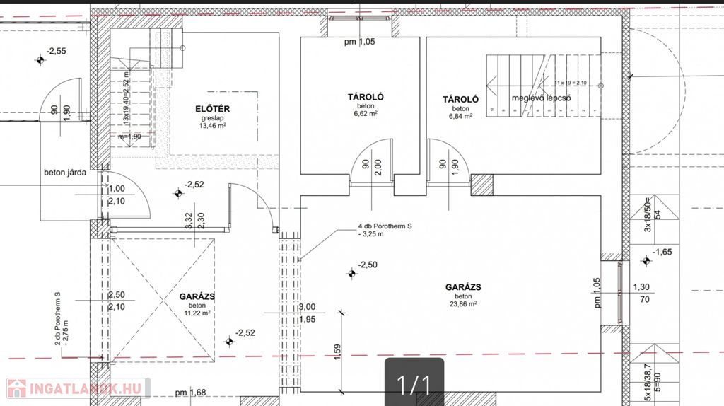
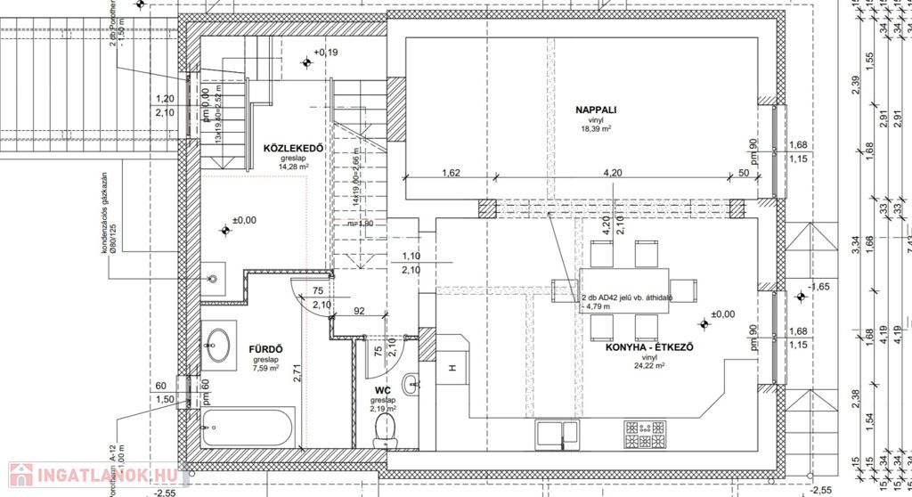
Lakótér: 67 m² + 44 m²
Az alsó szinten tágas nappali, konyha és étkező található egy légtérben, a tetőtérben pedig 2 külön bejáratú szoba kapott helyet. Mindkét szinten fürdőszoba és WC teszi kényelmessé a mindennapi életet.

A földszinten tágas, 34 m²-es garázs található, amely elektromos kapuval van ellátva és kényelmesen elfér benne két autó is. További tárolók is rendelkezésre állnak, jelenleg egyik helyiség vendégszobának berendezve.

A ház falai 15 cm, a födém pedig 30 cm vastag szigetelést kapott. A háromfázisú villamos rendszer biztosítja a megfelelő áramellátást.
Fűtését kondenzációs kombi gázkazán, padlófűtéssel, míg a hűtést szintenként 1-1 klímaberendezés biztosítja.

Telek: 1854 m²-es, enyhén lejtős, füvesített terület, amely méretéből adódóan rengeteg lehetőséget kínál. A ház előtt kavicsos parkoló áll rendelkezésre.

Az ingatlanhoz tartozik egy hangulatos kis pince, a telken ciszterna, kút és további tároló is található.

A ház elhelyezkedésének köszönhetően minden fontos szolgáltatás, bevásárlási lehetőség és egyéb kiszolgáló egység a közelben elérhető.

Családi ház részletei

Ár: 122 000 000 Ft
Méret: 180 négyzetméter
Azonosító: 11444729
Irodai azonosító: 325669
Telek: 1854 négyzetméter
Ingatlan állapota: Átlagos
Jelleg: családi ház
Építőanyag: Tégla
Fűtés jellege: Cirkó
Fűtés módja: Gáz
Komfort fokozat: Dupla komfort
Egész szobák: 3

Egyéb jellemzők

  • Garázs

Hasonló családi ház hirdetések

Eladó családi ház

Pécs

Pécs Király utcában eladó 1832-ben épült kétszintes műemlékjellegű ...

Eladó családi ház

Pécs

Eladó, CSOK-ra, CSOK+-ra, babaváróra alkalmas 2022-ben teljes körűen ...

Eladó családi ház

Pécs, Mecsekoldal

Pécsen a Deindol-Kismélyvölgy hegyhát dűlő-ben páratlan panorámával ...

Eladó családi ház

Pécs

Eladó különleges, medencés családi ház Pécsen, a Mecsek keleti oldalán!Háromszintes, ...

Hasonló családi ház hirdetések

Eladó családi ház

Pécs

Pécs Király utcában eladó 1832-ben épült kétszintes műemlékjellegű ...

Eladó családi ház

Pécs

Eladó, CSOK-ra, CSOK+-ra, babaváróra alkalmas 2022-ben teljes körűen ...

Eladó családi ház

Pécs, Mecsekoldal

Pécsen a Deindol-Kismélyvölgy hegyhát dűlő-ben páratlan panorámával ...

Eladó családi ház

Pécs

Eladó különleges, medencés családi ház Pécsen, a Mecsek keleti oldalán!Háromszintes, ...