Eladó családi ház Pécs 129 000 000 Ft

Leírás

Ez a csodálatos ingatlan nem csak egy otthon, hanem egy életforma is, ahol a nyugalom, a zöld környezet és a kényelem tökéletes összhangja várja Önt és családját. Ne hagyja ki ezt a ritka lehetőséget, hogy sajátjává tegyen egy darab paradicsomot a város szívében!

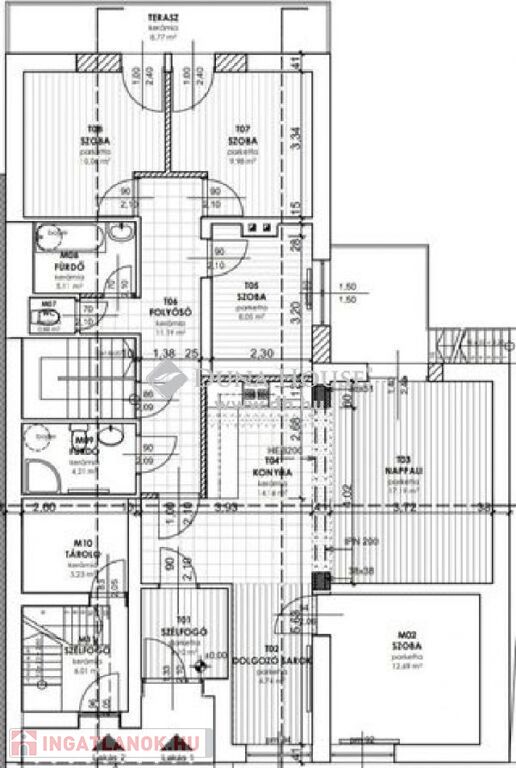
Az ingatlan tágas, világos terekkel büszkélkedik, amelyek maximális kényelmet és praktikumot nyújtanak a mindennapok során. A kétgenerációs kialakításnak köszönhetően tökéletes választás azok számára, akik együtt, de mégis különálló élettérben szeretnének élni a szeretteikkel. A téglaépítés biztosítja az ingatlan hosszú távú stabilitását és hőszigetelési tulajdonságait, így a lakók egész évben élvezhetik annak kényelmét és melegét.

A ház impozáns kertre néző kilátással bír, amely tökéletes helyszíne lehet a pihentető hétvégi tevékenységeknek, vagy akár a baráti összejöveteleknek is. A gondosan tervezett és karbantartott kültéri területek kiváló lehetőséget nyújtanak a szabadidős tevékenységek széles skálájához, így garantálva, hogy minden korosztály számára megfelelő szórakozási lehetőség álljon rendelkezésre.
Eladásra kínálunk egy lenyűgöző, tégla építésű kétgenerációs családi házat, amely egy gyönyörűen parkosított kert ölelésében várja új tulajdonosát. Az ingatlan egy csendes, zöldövezeti környéken helyezkedik el, közvetlenül egy református iskola mellett, így ideális választás családok számára, akik nagyra értékelik a közvetlen hozzáférést a minőségi oktatáshoz és a természet közelségét.

Családi ház részletei

Ár: 129 000 000 Ft
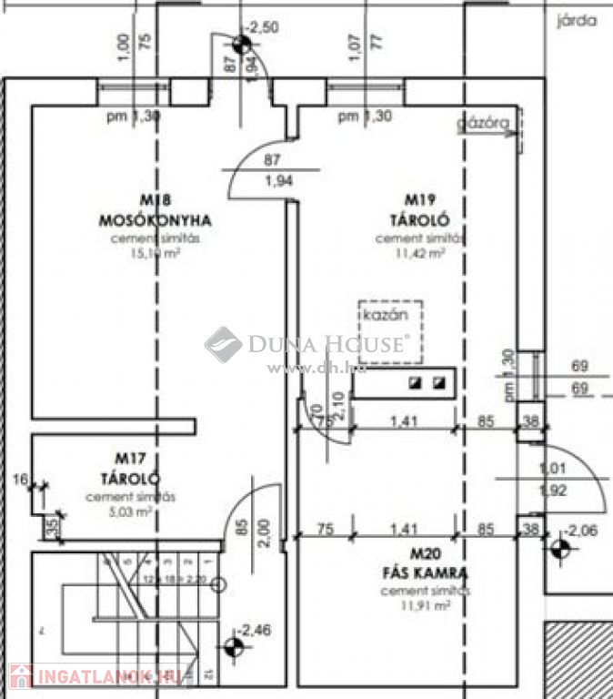
Méret: 200 négyzetméter
Azonosító: 11472690
Irodai azonosító: HZ073329-4655651
Cím: 200 nm-es ház eladó Pécs
Telek: 624 négyzetméter
Ingatlan állapota: Átlagos
Jelleg: családi ház
Építőanyag: Tégla
Fűtés jellege: Cirkó
Fűtés módja: Gáz
Kor: 21-50 éves
Szintek száma: Földszintes
Egész szobák: 5

Térkép

Hasonló családi ház hirdetések

Eladó családi ház

Pécs

Eladó, CSOK-ra, CSOK+-ra, babaváróra alkalmas 2022-ben teljes körűen ...

Eladó családi ház

Pécs, Mecsekoldal

Pécsen a Deindol-Kismélyvölgy hegyhát dűlő-ben páratlan panorámával ...

Eladó családi ház

Pécs

Eladó különleges, medencés családi ház Pécsen, a Mecsek keleti oldalán!Háromszintes, ...

Eladó családi ház

Pécs

Pécs csodás, talán egyik legnyugodtabb részén eladó ez a panorámás, ...

Hasonló családi ház hirdetések

Eladó családi ház

Pécs

Eladó, CSOK-ra, CSOK+-ra, babaváróra alkalmas 2022-ben teljes körűen ...

Eladó családi ház

Pécs, Mecsekoldal

Pécsen a Deindol-Kismélyvölgy hegyhát dűlő-ben páratlan panorámával ...

Eladó családi ház

Pécs

Eladó különleges, medencés családi ház Pécsen, a Mecsek keleti oldalán!Háromszintes, ...

Eladó családi ház

Pécs

Pécs csodás, talán egyik legnyugodtabb részén eladó ez a panorámás, ...