Eladó családi ház Pécs 129 900 000 Ft

Leírás

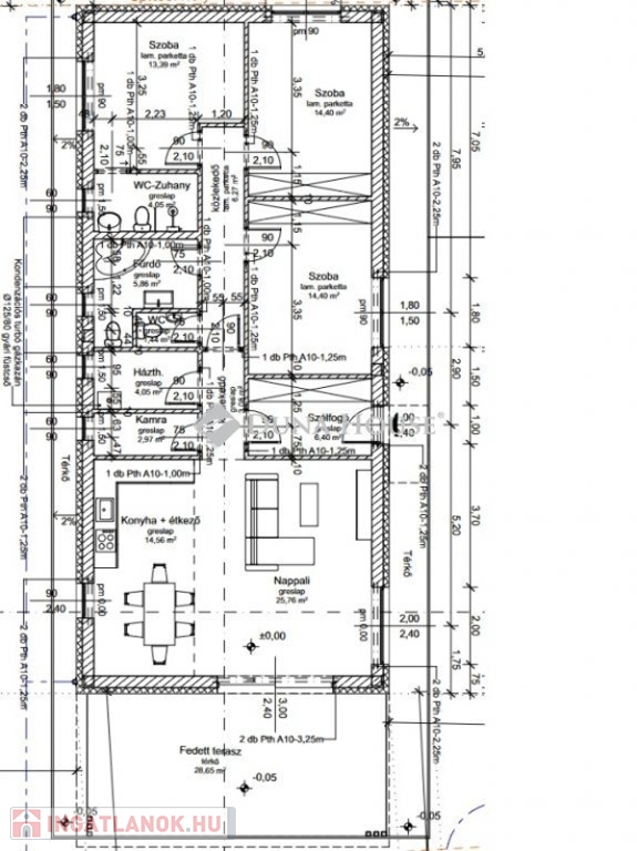
### Eladó új építésű, modern családi ház Pécs kedvelt déli részén!

Pécs Délkeleti városrészén, a **Postamester utcában** kínálunk megvételre egy **új építésű, azonnal költözhető** minimal stílusú, magas műszaki tartalommal rendelkező családi házat.

**Lakótér**: 116 m²
**Tájolás**: Délkeleti, napfényes
**Telek**: rendezett, csendes környezet

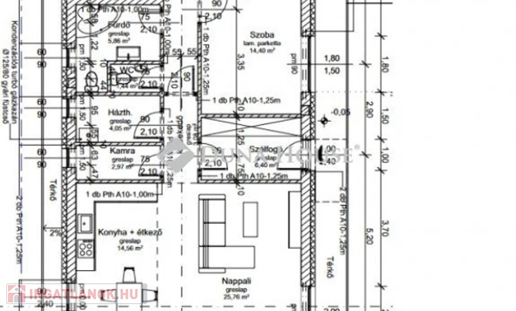
**Elrendezés:**

* Tágas, amerikai konyhás nappali-étkező
* 3 hálószoba (egyik saját fürdőszobával)
* Külön fürdőszoba + vendég WC
* Gépészeti helyiség
* **Közel 30 m²-es fedett terasz** a nappaliból nyílóan

**Műszaki tartalom:**

* **Energiahatékonyság: A+**
* Fűtés: **turbógázkazán**
* **Napelem** a tetőn
* **4 db klíma** gondoskodik a hűtésről és kiegészítő fűtésről

️ **Költözhető**: 2025. október vége / november eleje

Modern, alacsony rezsijű, letisztult formavilágú otthont keres Pécs egyik csendes, mégis jól megközelíthető részén?
Ez az ingatlan kiváló választás lehet családoknak vagy akár hosszú távú befektetésnek is.

**További információért és megtekintésért keressen bizalommal!**

129900000 Ft
Keressenek Bizalommal!
Érdeklődni.: Orsolics Zsolt + 36(20)3770000

Referencia szám: HZ042027-NOK

Családi ház részletei

Ár: 129 900 000 Ft
Méret: 145 négyzetméter
Azonosító: 11566430
Irodai azonosító: HZ042027-5039104
Telek: 786 négyzetméter
Összesített energetikai besorolás: A
Ingatlan állapota: Épülő
Jelleg: családi ház
Építőanyag: Tégla
Fűtés jellege: Egyedi
Fűtés módja: Gáz
Kor: Új építésű
Szintek száma: Földszintes
Egész szobák: 4

Egyéb jellemzők

  • Garázs

Térkép

Hasonló családi ház hirdetések

Eladó családi ház

Pécs

Eladó, CSOK-ra, CSOK+-ra, babaváróra alkalmas 2022-ben teljes körűen ...

Eladó családi ház

Pécs

Eladó Pécs Újhegyen 130 m2-es, 2016-ban épült nappali + 3 szobás családi ...

Eladó családi ház

Pécs

Eladó különleges, medencés családi ház Pécsen, a Mecsek keleti oldalán!Háromszintes, ...

Eladó családi ház

Pécs, Mecsekoldal

Pécsen a Deindol-Kismélyvölgy hegyhát dűlő-ben páratlan panorámával ...

Hasonló családi ház hirdetések

Eladó családi ház

Pécs

Eladó, CSOK-ra, CSOK+-ra, babaváróra alkalmas 2022-ben teljes körűen ...

Eladó családi ház

Pécs

Eladó Pécs Újhegyen 130 m2-es, 2016-ban épült nappali + 3 szobás családi ...

Eladó családi ház

Pécs

Eladó különleges, medencés családi ház Pécsen, a Mecsek keleti oldalán!Háromszintes, ...

Eladó családi ház

Pécs, Mecsekoldal

Pécsen a Deindol-Kismélyvölgy hegyhát dűlő-ben páratlan panorámával ...