Eladó családi ház Pécs 599 000 000 Ft

Leírás

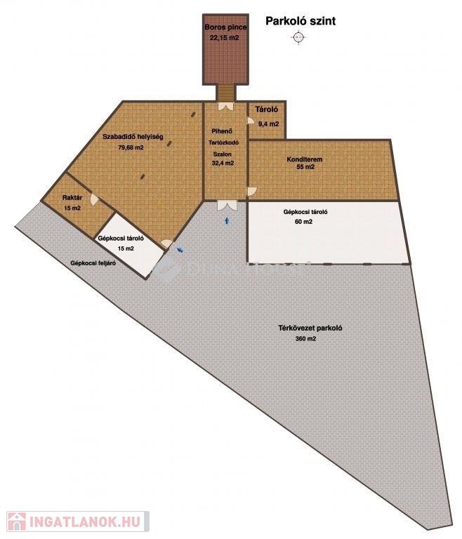
Egyedülálló lehetőséget kínálunk: eladásra került egy páratlan adottságokkal rendelkező luxusingatlan Pécs egyik legszebb pontján, a Mecsek ölelésében. A 1695 m²-es telken fekvő 1727 m²-es komplexum két főépületből, négy szintből és megannyi exkluzív térből áll.

Főbb jellemzők:

16 hálószoba, 12 fürdőszoba, 3 konyha és 3 étkező

71 m²-es nappali 7 méteres belmagassággal

Panorámás, fedett medence (28 m²) és wellness részleg szaunával

Fitness terem (55 m²), klubhelyiség, 80 m²-es rendezvényterem

Borospince (22 m²) és prémium minőségű belsőépítészeti megoldások

Parkolás és infrastruktúra:

5 garázs + 4 külső beálló

Több mint 200 m² parkolófelület

Mosókonyha, gépészeti helyiségek, raktárak

28 kW-os napelemrendszer a modern energiahatékonyságért

Kültér és elhelyezkedés:

Parkosított kert, közel 600 m² zöldterület

Lenyűgöző Mecsek-panoráma

Nyugodt, mégis jól megközelíthető lokáció

Ez az ingatlan nem csupán otthon, hanem életstílus. Tökéletes választás lehet exkluzív magánrezidenciának, reprezentatív céges központnak, prémium boutique hotelnek vagy wellnessközpontnak is.

Komoly érdeklődők számára további információ és megtekintés egyeztethető.

Fedezze fel Pécs valódi gyöngyszemét – ahol minden nap a luxus nyugalmában kezdődhet.

599000000 Ft
Keressenek Bizalommal!
Érdeklődni.: Orsolics Zsolt + 36(20)3770000

Referencia szám: HZ033993-NOK

Családi ház részletei

Ár: 599 000 000 Ft
Méret: 1 800 négyzetméter
Azonosító: 11573622
Irodai azonosító: HZ033993-5065916
Telek: 1695 négyzetméter
Összesített energetikai besorolás: B
Ingatlan állapota: Kitűnő
Jelleg: családi ház
Építőanyag: Tégla
Fűtés jellege: Egyedi
Fűtés módja: Gáz
Komfort fokozat: Dupla komfort
Kor: 21-50 éves
Szintek száma: Földszintes
Egész szobák: 17

Egyéb jellemzők

  • Garázs
  • Pince

Térkép