Eladó családi ház Pétfürdő 58 000 000 Ft

Leírás

Pétfürdőn eladásra kínálunk egy csendes, zöldövezeti részen lévő 84 m2-es sorházat 100 m2-es telekkel és egy 47 m²-es különálló garázzsal a GDN Ingatlanhálózat kínálatából.

Tulajdonságok:
- Ha csendes környezetre, vágyik; de fontos, hogy a többi nagy város mint: Veszprém, Várpalota, vagy Székesfehérvár illetve a Balaton is közel legyen, akkor jó helyen jár. Ingázóknak tökéletes választás ez az ingatlan!

- Víz, villany, gáz, csatorna a házba bekötésre került.
- Az épület lapostetővel, tégla falazattal 10 cm-es szigeteléssel és vasbeton födémmel készült, a nyílászárók alumínium és műanyag szerkezetűek, redőnnyel felszerelt.
- Az ingatlanhoz tartozik egy hangulatos füvesített hátsó kert, illetve a különálló, 80 m2-es garázs is, amely akár apartman kialakítására is ideális lehetőséget nyújt az új tulajdonosnak.

- Az igényesen kialakított ingatlan elektromos redőnyökkel is felszerelt a teljes lakószinten, valamint klíma beszerelése is megtörtént a felső szobákban.
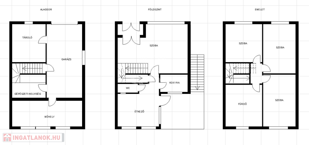
- Az alsó szinten szép tágas teraszról az előtér-étkezőbe lépünk.
Innen nyílik  egy nagyobb méretű szoba, valamint a konyha, mosdó-WC-vel és a lépcsőlejáró a garázshoz. A szobában található a kényelmes feljáró az emeletre, ahol a 3 további szobába és a szép tágas és felújított fürdőszobába jutunk.
- A legalsó szinten pedig  a jókora garázs mellett 2 műhely kialakítása valósult meg, illetve itt találjuk még a gépezet helyiséget is.
- A városközponthoz közel található, egy nagyon szép park és játszótér van még a közelben, illetve látványosság a csónakázó tó, valamint közeli halastó.

Ajánljuk az ingatlant azoknak, akik Pétfürdőn szeretnének letelepedni; csendes, nyugodt környezetre vágynak, de mégis közel szeretnének lenni a közeli városokhoz; valamint azoknak is, akik a hangos nyüzsgéstől mentesen szeretnék szabadidejüket tölteni.

Ne hagyja ki ezt a remek lehetőséget!

Amennyiben a veszprémi GDN Ingatlaniroda által kínált pétfürdői sorház, vagy bármely, a kínálatunkban található ingatlan felkeltette érdeklődését, forduljon hozzám bizalommal!

Ingatlanirodánk díjmentes, banksemleges hitelügyintézéssel, illetve ügyvédi tanácsadással is áll Ügyfeleink rendelkezésére!

Családi ház részletei

Ár: 58 000 000 Ft
Méret: 120 négyzetméter
Azonosító: 11538963
Irodai azonosító: 382975
Cím: Bocskai utca
Telek: 110 négyzetméter
Ingatlan állapota:
Jelleg: sorház
Építőanyag: Tégla
Fűtés jellege: Cirkó
Fűtés módja: Gáz
Komfort fokozat: Összkomfort
Kor: 50 évesnél régebbi
Szintek száma: 1 szint
Egész szobák: 4

Egyéb jellemzők

  • Csatorna
  • Garázs
  • Pince
  • Terasz

Térkép

Hasonló családi ház hirdetések

Eladó családi ház

Pétfürdő

Eladó ikerház rengeteg lehetőséggel Pétfürdő kertvárosi részén! Pétfürdő ...

Hasonló családi ház hirdetések

Eladó családi ház

Pétfürdő

Eladó ikerház rengeteg lehetőséggel Pétfürdő kertvárosi részén! Pétfürdő ...