Eladó családi ház Pilis 16 000 000 Ft

Leírás

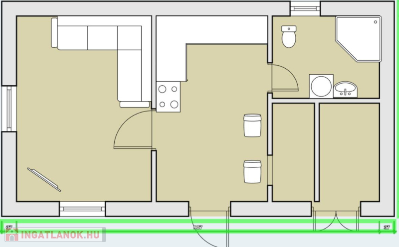
Pilis város zártkerti részében vált eladóvá ez a könnyen gondozható 342nm-es telken megépült 35nm-es gazdasági épület. Benne 1 szoba , konyha ebédlő résszel , fürdőszoba , félszoba helység kiosztással. A ház alatt pince helyezkedik el. Fűtéséről gázkonvektor gondoskodik , meleg víz ellátása boylerről. Fúrt kútról kapja a víz ellátását , emésztőbe ürül. Vegyes falazatú , fafödémes , cserép héjazatú. Szigeteléssel ellátott. Művelés alól nincs kivéve , kifüggesztéssel lehet értékesíteni. Gazdasági épületként feltüntetve. Osztatlan közös tulajdonban , per teher mentesen várja leendőbeli gazdáját ez a kis takaros házacska. Keskeny utcafronti rész 9méter széles. Hosszan benyuló telekkel. Autóval a parkolás az utcán lehetséges.

Családi ház részletei

Ár: 16 000 000 Ft
Méret: 35 négyzetméter
Azonosító: 11603945
Telek: 342 négyzetméter
Ingatlan állapota: Átlagos
Jelleg: családi ház
Építőanyag: Kérdezzen rá a hirdetőtől »
Fűtés jellege: Egyéb
Komfort fokozat: Fél komfort
Egész szobák: 1
Fél szobák: 1

Egyéb jellemzők

  • Garázs
  • Kábel TV
  • Melléképület
  • Parketta
  • Pince
  • Terasz

Hasonló családi ház hirdetések

Eladó családi ház

Pilis

Pilis város zártkerti részében vált eladóvá ez a könnyen gondozható ...

Eladó családi ház

Pilis

Pilis zártkerti részén eladó 2 szobás kis családi ház bútorozottan ...

Hasonló családi ház hirdetések

Eladó családi ház

Pilis

Pilis város zártkerti részében vált eladóvá ez a könnyen gondozható ...

Eladó családi ház

Pilis

Pilis zártkerti részén eladó 2 szobás kis családi ház bútorozottan ...