Eladó családi ház Pilisborosjenő 169 000 000 Ft

Leírás

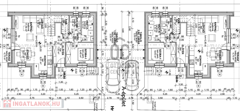
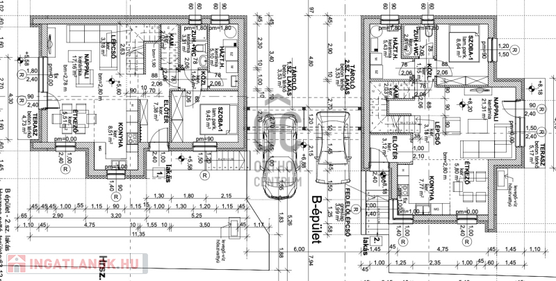
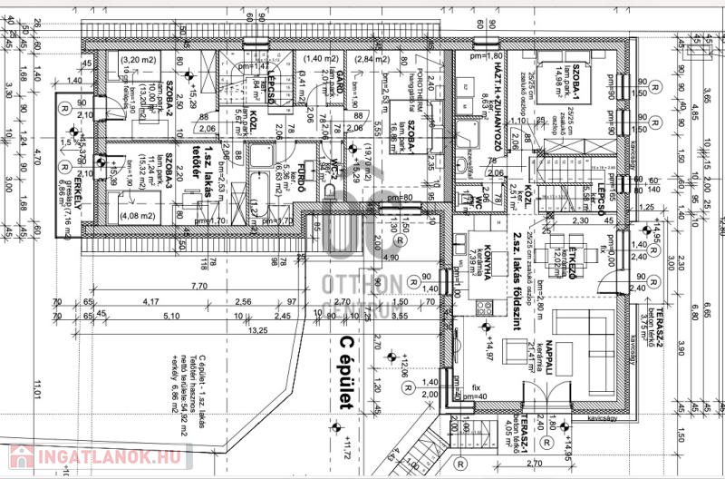
Projekt bemutatása

ÚJÉPÍTÉSŰ PRÉMIUM CSALÁDI HÁZAK PILISBOROSJENŐN, A NAGY-KEVÉLY LÁBÁNÁL

Fedezze fel új otthonát Pilisborosjenőn, Budapest közvetlen közelében, ahol a természet és a modern építészet találkozik. A festői panoráma a pilisi hegyekre, a környező településekre, sőt, tiszta estéken egészen a Parlamentig nyújt felejthetetlen látványt.
Prémium minőség – energiahatékony megoldásokkal
Az épületek a legkorszerűbb technológiákkal és anyagokkal készülnek, „A” energetikai besorolással. A hőszivattyús padlófűtés, a split klímák hűtés-fűtés funkciója és a gondosan megválasztott prémium burkolatok garantálják az otthon kényelmét és gazdaságos fenntarthatóságát.
Otthon, amely igazodik az Ön életéhez
Összesen 6 lakóház, saját kerttel, autóbeállóval vagy garázzsal
Kétszintes, 114–196 m²-es terek – átgondolt alaprajzokkal
Földszinten: tágas nappali-étkező-konyha, hálószoba, fürdő, háztartási helyiség, kamra
Emeleten: három hálószoba, gardrób és fürdőszoba
Különlegesség: a C épület egyik lakása háromszintes, kétállásos garázzsal és extra tárolási lehetőséggel
Kivételes elhelyezkedés – közel a fővároshoz, mégis a természet ölelésében
Pilisborosjenő igazi gyöngyszem: nyugodt, biztonságos település minden korosztály számára, mindössze 13 km-re Budapesttől. Autóval és tömegközlekedéssel is könnyen megközelíthető (busz, vonat).
A település saját óvodával, iskolával, orvosi rendelővel és modern közösségi létesítményekkel rendelkezik. A környék kirándulási és sportlehetőségek széles tárházát kínálja: Teve-szikla, Egri vár másolata, Kevélyhegyi tanösvény, levendulamezők és lovardák teszik teljessé az itt töltött mindennapokat.

✨ Ez nem csupán egy ingatlan – ez az Ön jövőbeli otthona, ahol a természet közelsége és a modern élet kényelme tökéletes harmóniában találkozik.

Bővebb információért, műszaki tartalommal, megtekintéssel kapcsolatban keressen bizalommal!

Családi ház részletei

Ár: 169 000 000 Ft
Méret: 112 négyzetméter
Azonosító: 11554645
Telek: 318 négyzetméter
Ingatlan állapota: Kitűnő
Jelleg: családi ház
Építőanyag: Kérdezzen rá a hirdetőtől »
Egész szobák: 5

Egyéb jellemzők

  • Csatorna
  • Garázs
  • Kábel TV
  • Melléképület
  • Parketta
  • Pince
  • Terasz

Hasonló családi ház hirdetések

Eladó családi ház

Pilisborosjenő

A NYUGALOM SZIGETE, ÖRÖKPANORÁMÁS CSALÁDI HÁZ ELADÓ A KÖVES-BÉRC LÁBÁNÁL. Budapest ...

Eladó családi ház

Pilisborosjenő

Projekt bemutatása ÚJÉPÍTÉSŰ PRÉMIUM CSALÁDI HÁZAK PILISBOROSJENŐN, ...

Eladó családi ház

Pilisborosjenő

Projekt bemutatása ÚJÉPÍTÉSŰ PRÉMIUM CSALÁDI HÁZAK PILISBOROSJENŐN, ...

Eladó családi ház

Pilisborosjenő

Az Otthon Centrum kínálatában : Pilisborosjenő belső ófalui részén ...

Hasonló családi ház hirdetések

Eladó családi ház

Pilisborosjenő

A NYUGALOM SZIGETE, ÖRÖKPANORÁMÁS CSALÁDI HÁZ ELADÓ A KÖVES-BÉRC LÁBÁNÁL. Budapest ...

Eladó családi ház

Pilisborosjenő

Projekt bemutatása ÚJÉPÍTÉSŰ PRÉMIUM CSALÁDI HÁZAK PILISBOROSJENŐN, ...

Eladó családi ház

Pilisborosjenő

Projekt bemutatása ÚJÉPÍTÉSŰ PRÉMIUM CSALÁDI HÁZAK PILISBOROSJENŐN, ...

Eladó családi ház

Pilisborosjenő

Az Otthon Centrum kínálatában : Pilisborosjenő belső ófalui részén ...