Eladó családi ház Pilisborosjenő 210 000 000 Ft

Leírás

Projekt bemutatása

ÚJÉPÍTÉSŰ PRÉMIUM CSALÁDI HÁZAK PILISBOROSJENŐN, A NAGY-KEVÉLY LÁBÁNÁL

Fedezze fel új otthonát Pilisborosjenőn, Budapest közvetlen közelében, ahol a természet és a modern építészet találkozik. A festői panoráma a pilisi hegyekre, a környező településekre, sőt, tiszta estéken egészen a Parlamentig nyújt felejthetetlen látványt.
Prémium minőség – energiahatékony megoldásokkal
Az épületek a legkorszerűbb technológiákkal és anyagokkal készülnek, „A” energetikai besorolással. A hőszivattyús padlófűtés, a split klímák hűtés-fűtés funkciója és a gondosan megválasztott prémium burkolatok garantálják az otthon kényelmét és gazdaságos fenntarthatóságát.
Otthon, amely igazodik az Ön életéhez
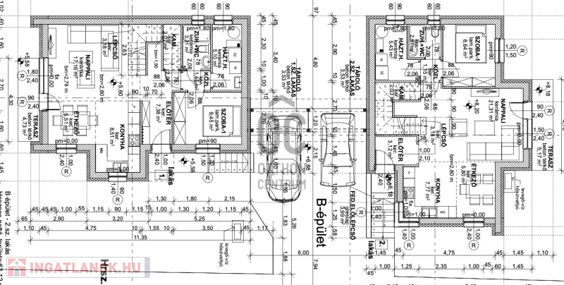
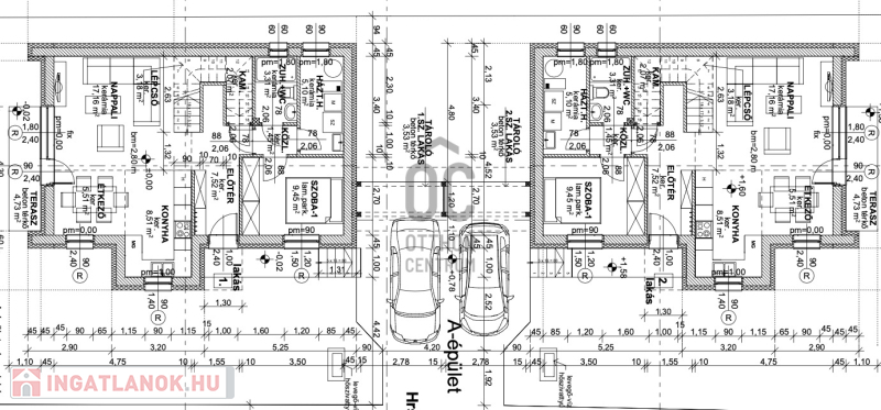
Összesen 6 lakóház, saját kerttel, autóbeállóval vagy garázzsal
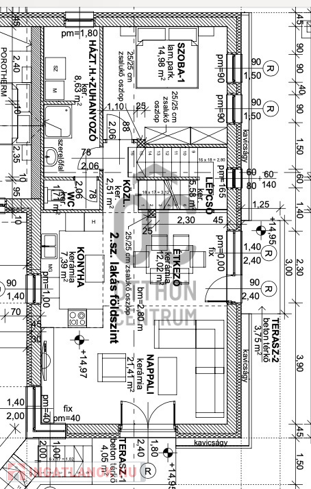
Kétszintes, 114–196 m²-es terek – átgondolt alaprajzokkal
Földszinten: tágas nappali-étkező-konyha, hálószoba, fürdő, háztartási helyiség, kamra
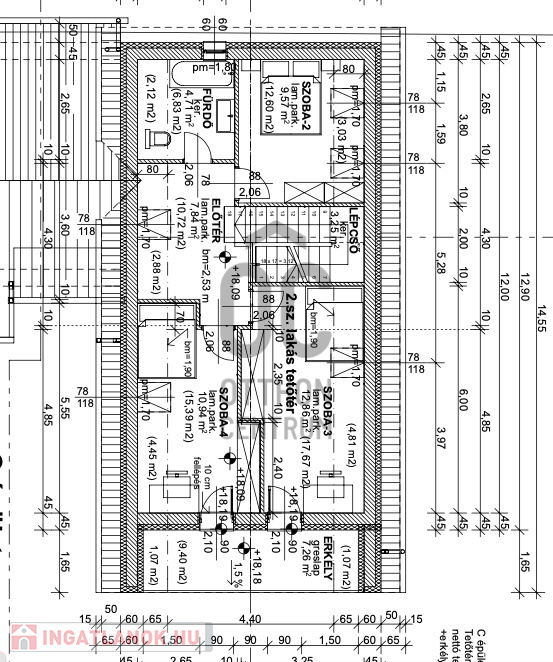
Emeleten: három hálószoba, gardrób és fürdőszoba
Különlegesség: a C épület egyik lakása háromszintes, kétállásos garázzsal és extra tárolási lehetőséggel
Kivételes elhelyezkedés – közel a fővároshoz, mégis a természet ölelésében
Pilisborosjenő igazi gyöngyszem: nyugodt, biztonságos település minden korosztály számára, mindössze 13 km-re Budapesttől. Autóval és tömegközlekedéssel is könnyen megközelíthető (busz, vonat).
A település saját óvodával, iskolával, orvosi rendelővel és modern közösségi létesítményekkel rendelkezik. A környék kirándulási és sportlehetőségek széles tárházát kínálja: Teve-szikla, Egri vár másolata, Kevélyhegyi tanösvény, levendulamezők és lovardák teszik teljessé az itt töltött mindennapokat.

✨ Ez nem csupán egy ingatlan – ez az Ön jövőbeli otthona, ahol a természet közelsége és a modern élet kényelme tökéletes harmóniában találkozik.

Bővebb információért, műszaki tartalommal, megtekintéssel kapcsolatban keressen bizalommal!

Családi ház részletei

Ár: 210 000 000 Ft
Méret: 196 négyzetméter
Azonosító: 11554643
Telek: 342 négyzetméter
Ingatlan állapota: Kitűnő
Jelleg: családi ház
Építőanyag: Kérdezzen rá a hirdetőtől »
Egész szobák: 5

Egyéb jellemzők

  • Csatorna
  • Garázs
  • Kábel TV
  • Melléképület
  • Parketta
  • Pince
  • Terasz

Hasonló családi ház hirdetések

Eladó családi ház

Pilisborosjenő

Természet közeli, különleges hangulatú otthon eladó Pilisborosjenőn! Nagykevélyre ...

Eladó családi ház

Pilisborosjenő

Pilisborosjenőn - panorámás - ikerfél eladó! A megvételre kínált ingatlan ...

Eladó családi ház

Pilisborosjenő

Képeket e-mailben tudok küldeni. Pilisborosjenőnek Ürömhöz és Budapesthez ...

Eladó családi ház

Pilisborosjenő

Természet közeli, különleges hangulatú otthon eladó Pilisborosjenőn! Nagykevélyre ...

Hasonló családi ház hirdetések

Eladó családi ház

Pilisborosjenő

Természet közeli, különleges hangulatú otthon eladó Pilisborosjenőn! Nagykevélyre ...

Eladó családi ház

Pilisborosjenő

Pilisborosjenőn - panorámás - ikerfél eladó! A megvételre kínált ingatlan ...

Eladó családi ház

Pilisborosjenő

Képeket e-mailben tudok küldeni. Pilisborosjenőnek Ürömhöz és Budapesthez ...

Eladó családi ház

Pilisborosjenő

Természet közeli, különleges hangulatú otthon eladó Pilisborosjenőn! Nagykevélyre ...