Eladó családi ház Pogányszentpéter 8 900 000 Ft

Leírás

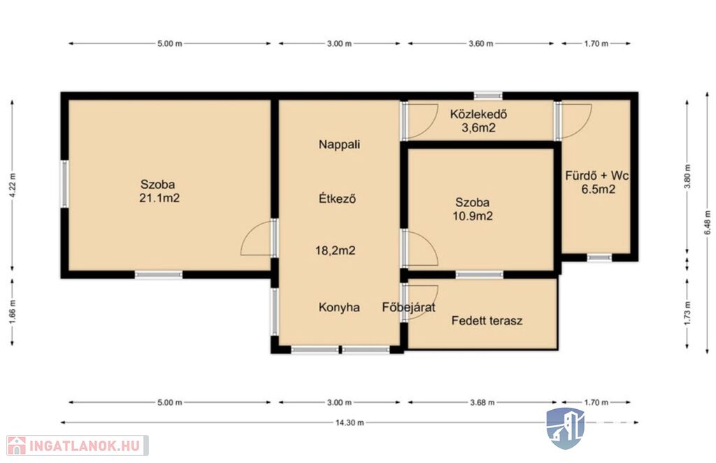
Nagykanizsától pár percre gépkocsival, Pogányszentpéter kistelepülésen vált eladóvá ez a megközelítőleg az 1960-as építésű, 60m2-es családi ház. A ház a telek utcafronti részén a domboldalba került megépítésre, 80% téglából az utcafronti szoba vályogból készült. A domboldalba való építési módnak köszönhetően, egy boltíves pince is helyett kapott az ingatlan alatt. Az épületben 2016-ban felújítási munkálatokat végeztek, ennek köszönheti a jelenlegi átlagos állapotát. Amik elkészültek: nyílászárok cseréje egy kivételével mindenhol, új elektromos hálózat, új fürdő kialakítása, hideg-meleg burkolatok cseréje.
Az ingatlanban enyhe vizesedési nyomok láthatók.
A lakrész belső terét, hangulatossá teszi a központilag elhelyezett cserépkályha, mely a téli hideg napokban szükséges meleget is szolgáltatja a házban, valamint a mestergerendás parasztmennyezet.
Közművek: nappali és éjszakai áram, víz + csatorna, szemétszállítás, gázcsonk a telken belül.
Az udvar méretének köszönhetően gazdálkodásra is alkalmas. Gépkocsi parkolás mind a ház előtt mind pedig az udvaron belül is megoldott. (Garázs nincs).
Ha Ön szeretne egy kis hangulatos házat, mely jelenleg is lakható, de akár igény szerint saját ízlésre is formálható, akkor ez az ingatlan jó választás lehet.
Iroda: Nagykanizsa Platán sor 7

Pogányszentpéteren található: 1 kisbolt, 1 büfé, heti 1x-i kihelyezett orvosi rendelő, óvoda, könyvtár, katolikus templom, evangélikus templom, sportpálya, vadász- és horgász klub, néprajzi gyűjtemény.
(További képekért és információkért kérem hívjon!)

Családi ház részletei

Ár: 8 900 000 Ft
Méret: 60 négyzetméter
Azonosító: 11393132
Irodai azonosító: 425230
Telek: 2312 négyzetméter
Ingatlan állapota: Átlagos
Jelleg: családi ház
Építőanyag: Tégla
Fűtés jellege: Cserépkályha
Egész szobák: 3
Nappalik: 1

Egyéb jellemzők

  • Beépíthető tetőtér
  • Csatorna
  • Garázs
  • Melléképület
  • Pince
  • Terasz