Eladó családi ház Ráckeve, Újtelep, 74 900 000 Ft

Leírás

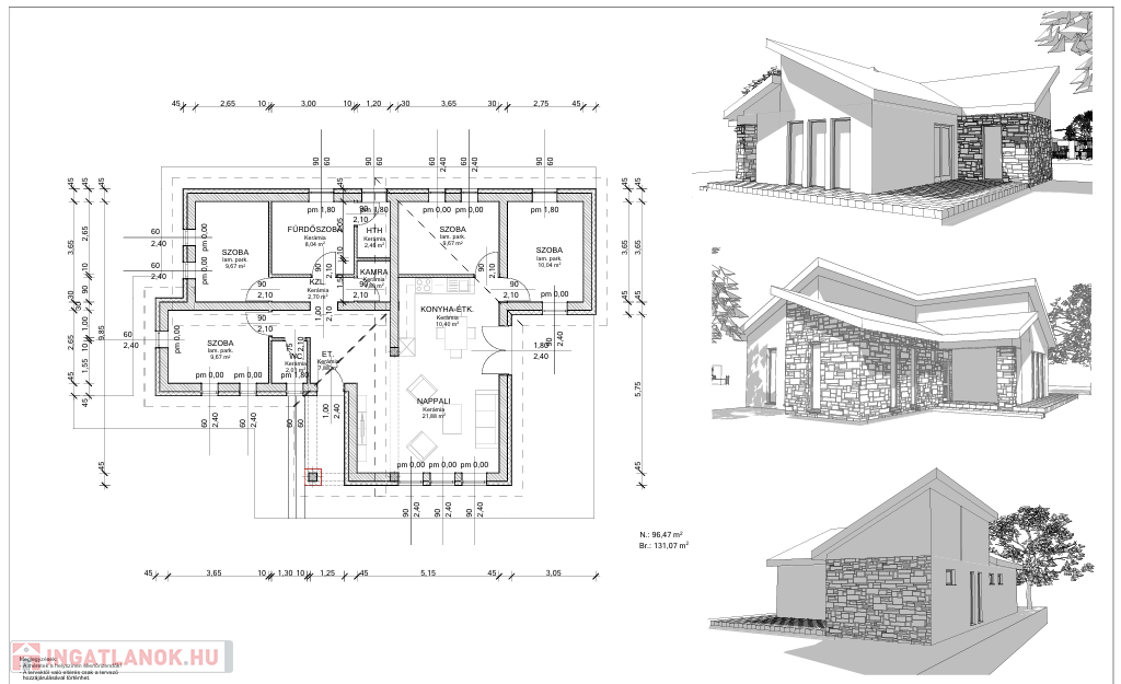
Eladó nettó 96 m2 ÚJ ÉPÍTÉSŰ önálló családi házak Ráckevén!

Céges kivitelezés!
Babaváró, CSOK PLUSZ igényelhető, hitelezhető!
Illetékmentesség!

Ráckeve új lakóparkjában kínálunk eladásra két db 2025-ben épülő önálló családi házat, különböző telekmérettel.
1. házhoz tartozó telek 775 m2, kulcsrakész ára 75,9 millió Ft.
2. házhoz tartozó telek 592 m2, kulcsrakész ára 74,9 millió Ft.

Az ingatlanokat most kezdik építeni, VÁRHATÓ ÁTADÁS 2025. ÉV VÉGE!

Az ingatlanok nettó 96 m2 nagyságúak
Elosztásuk:
-előtér
-kert és teraszkapcsolatos amerikai konyhás étkező-nappali
-kamra
-háztartási helyiség
-4 hálószoba
-fürdőszoba és külön WC.

Az ingatlanok tégla építésűek lesznek 15 cm homlokzati szigeteléssel, cserép héjazattal és 3 rétegű thermo nyílászárókkal.
Fűtését hőszivattyús rendszer biztosítja majd padlófűtéses hőleadással.

A környék infrastruktúrája kiváló, éttermek, bevásárlási lehetőségek, cukrászda, Duna-part stb. pár percen belül elérhetőek.

Amennyiben egy modern, kertvárosias, de természet közeli helyen képzeli el életét itt biztosan otthonra talál!

Hívjon bizalommal a hét bármely napján!

Tőlünk vásárolt ÜGYFELEK számos kedvezményt vehetnek igénybe mint pl. független-, ingyenes hitelügyintézés és tanácsadás, MÖMAX áruházban vásárlás esetén 10 % kedvezmény, DIEGO-ban vásárlás esetén 10% kedvezmény, Vét-Gát vagyonvédelem- Szolgálat ingyenes bekötés, Sentinel- Max védelmi szolgálat ingyenes bekötés, asztalos belső építés minden megrendelésből 10% kedvezmény, Enterprise Development online marketing és honlap készítés 10% kedvezmény.

Családi ház részletei

Ár: 74 900 000 Ft
Méret: 96 négyzetméter
Azonosító: 11546598
Városrész: Újtelep
Telek: 592 négyzetméter
Ingatlan állapota: Épülő
Jelleg: családi ház
Építőanyag: Tégla
Fűtés jellege: Hőszivattyú
Fűtés módja: Hőszivattyú
Komfort fokozat: Összkomfort
Kor: Új építésű
Elhelyezkedés: Udvari
Szintek száma: Földszintes
Egész szobák: 5

Egyéb jellemzők

  • Beépíthető tetőtér
  • Garázs
  • Melléképület
  • Padlás
  • Parketta
  • Pince
  • Terasz

Térkép

Hasonló családi ház hirdetések

Eladó családi ház

Ráckeve

Óriási lehetőség csendes környezetben – álmai projektje itt kezdődik! Eladásra ...

Eladó családi ház

Ráckeve

RÁCKEVE központjában a Duna parti lejárótól néhány ...

Eladó családi ház

Ráckeve

Ráckevén csendes utcában 2 lakásos ikerházban 90 % készültségben eladó. ...

Eladó családi ház

Ráckeve

AZOKNAK, AKIK EGY IGAZI CSODÁS, NYUGODT KISVÁROSBAN SZERETNÉNEK ÉLNI RÁCKEVÉN! Ráckeve ...

Hasonló családi ház hirdetések

Eladó családi ház

Ráckeve

Óriási lehetőség csendes környezetben – álmai projektje itt kezdődik! Eladásra ...

Eladó családi ház

Ráckeve

RÁCKEVE központjában a Duna parti lejárótól néhány ...

Eladó családi ház

Ráckeve

Ráckevén csendes utcában 2 lakásos ikerházban 90 % készültségben eladó. ...

Eladó családi ház

Ráckeve

AZOKNAK, AKIK EGY IGAZI CSODÁS, NYUGODT KISVÁROSBAN SZERETNÉNEK ÉLNI RÁCKEVÉN! Ráckeve ...