Eladó családi ház Ráckeve, Újtelep, 87 900 000 Ft

Leírás

???? Eladó újépítésű, földszintes önálló családi ház Ráckeve csendes részén!

CSOK PLUSZRA alkalmas! Használatba vételi engedéllyel rendelkezik!

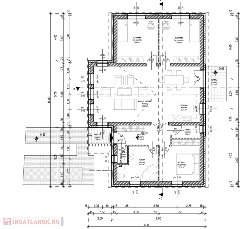
A 112 m²-es alapterületű, földszintes téglaépítésű ház ideális választás mindazoknak, akik korszerű, mégis természetközeli életteret keresnek.

A 10 m²-es terasz, az előszoba, nappali + konyha, 3 szoba, kamra/gépház, fürdőszoba, vendég Wc., és a 807 m²-es telek tökéletesen kiszolgálja a családi igényeket.

A ráckevei családi ház kiváló lehetőséget nyújt azok számára, akik újépítésű, energiatakarékos otthon vásárlásán gondolkodnak Pest megyében. A padlófűtéses gázcirkó rendszerrel felszerelt ingatlan egész évben komfortos klímát biztosít. Az összkomfortos kialakítás és a praktikus belső elrendezés biztosítja, hogy az otthon minden helyisége kihasználható legyen – legyen szó nappaliról, hálószobákról vagy akár dolgozószobáról.

A földszintes elrendezés különösen népszerű kisgyermekes családok, idősebb korosztály vagy mozgáskorlátozottak körében.

A téglaépítés hosszú távú stabilitást, jó hőszigetelést és alacsony fenntartási költségeket jelent.

Ingatlan rövid műszaki tartalma:

-teherhordó falak Porotherm 30-as falazó elemből épültek

-belső teherhordó falak 10 cm-es tégla

-homlokzati szigetelés 15 cm-es

-Bramac cserép fedés – párazáró fólia- tetőszigetelés 2×15 cm-es

-Nyílászárok: ablakok fehér 3 rétegű, hőhídmentes- hőszigetelt műanyag nyílászárok, fehér bejárati ajtók 5 ponton záródó acél tokkal és biztonsági vasalással

-Ingatlan fűtése és használati melegvíz előállítása gázkazánról történik

-Hőleadás: padlófűtéssel megoldott

– riasztórendszer beszerelve

A 807 m²-es körbe kerített telek ideális kertészkedéshez, gyermekjátszótér kialakításához vagy akár egy kerti medence telepítéséhez.

A 10 m²-es terasz kellemes szabadtéri életteret biztosít: tökéletes reggelihez, délutáni pihenéshez vagy esti beszélgetésekhez.

Ez az ingatlan nemcsak lakhatásra, hanem hosszú távú befektetésként is kiváló választás, hiszen a ráckevei ingatlanpiac dinamikusan fejlődik, az új építésű házak iránti kereslet folyamatosan nő.



A természetközeli elhelyezkedés kiváló kompromisszumot jelent azoknak, akik szeretnének elvonulni a város zajától, de mégis könnyen megközelíthető helyen szeretnének élni.

Ráckeve és környéke ideális választás a nyugalmat keresők számára, hiszen itt egyszerre élvezhető a városi kényelem és a vidéki béke.

???? Ráckeve – Természetközeli elhelyezkedés, kiváló infrastruktúra
Ráckeve Budapesttől délre, a Duna bal partján helyezkedik el, kiváló közlekedéssel és egyre fejlődő infrastruktúrával. A városban megtalálható minden, amire egy családnak szüksége lehet: óvoda, iskola, orvosi rendelő, gyógyszertár, bevásárlási lehetőségek, posta, valamint a híres ráckevei termálfürdő és sétálóutca.

A Duna közelsége lehetőséget kínál horgászatra, vízi sportokra, sétákra és kerékpározásra, így a természet szerelmesei is otthon érezhetik magukat.

A település folyamatosan fejlődik, új szolgáltatásokkal és családbarát környezettel várja az ideköltözőket.

Amennyiben felkeltette érdeklődését az ingatlan várom szeretettel hívását időpont egyeztetésre!



Tőlünk vásárolt ÜGYFELEK számos kedvezményt vehetnek igénybe min pl. független- ingyenes hitelügyintézés és tanácsadás, MÖMAX áruházban vásárlás esetén 10 % , DIEGO-ba vásárlás esetén 10%, Vét-Gát vagyonvédelem- Szolgálat ingyenes bekötés, Sentinel- Max védelmi szolgálat ingyenes bekötés, Asztalos belső építés minden megrendelésből 10%, Enterprise Development online marketing és honlap készítés 10%

Családi ház részletei

Ár: 87 900 000 Ft
Méret: 112 négyzetméter
Azonosító: 11550268
Városrész: Újtelep
Telek: 807 négyzetméter
Ingatlan állapota: Kérdezzen rá a hirdetőtől »
Jelleg: családi ház
Építőanyag: Tégla
Fűtés jellege: Cirkó
Fűtés módja: Gáz
Komfort fokozat: Összkomfort
Kor: Új építésű
Elhelyezkedés: Udvari
Szintek száma: Földszintes
Egész szobák: 4
Nappalik: 1

Egyéb jellemzők

  • Beépíthető tetőtér
  • Csatorna
  • Melléképület
  • Padlás
  • Parketta
  • Pince
  • Terasz

Térkép

Hasonló családi ház hirdetések

Eladó családi ház

Ráckeve

Ráckevén csendes utcában 2 lakásos ikerházban 90 % készültségben eladó. ...

Eladó családi ház

Ráckeve

Eladó családi ház Ráckevén - A tökéletes otthon álma most valóra válik! Ráckeve ...

Eladó családi ház

Ráckeve, Újtelep

Eladó újépítésű, 136 m²-es földszintes családi ház Ráckeve frekventált ...

Eladó családi ház

Ráckeve

Ráckevén egy 2021-ben épült, 96 m²-es, szigetelt, 4 szobás ikerház eladó. A ...

Hasonló családi ház hirdetések

Eladó családi ház

Ráckeve

Ráckevén csendes utcában 2 lakásos ikerházban 90 % készültségben eladó. ...

Eladó családi ház

Ráckeve

Eladó családi ház Ráckevén - A tökéletes otthon álma most valóra válik! Ráckeve ...

Eladó családi ház

Ráckeve, Újtelep

Eladó újépítésű, 136 m²-es földszintes családi ház Ráckeve frekventált ...

Eladó családi ház

Ráckeve

Ráckevén egy 2021-ben épült, 96 m²-es, szigetelt, 4 szobás ikerház eladó. A ...