Eladó családi ház Rózsaszentmárton 84 900 000 Ft

Leírás


***KISBIRTOK ELADÓ A MÁTRA LÁBÁNÁL, RÓZSASZENTMÁRTONON***

 

A Mátra lábánál, RÓZSASZENTMÁRTONON eladó egy az 1950-es években, majd 2005-ben kibővített, világos, 85 nm-es, RÖVID HATÁRIDŐVEL KÖLTÖZHETŐ, nappalival + 2 hálószobával, 1 fürdőszobával, összközműves, összesen 10 helyrajziszámon, egybefüggő 53.179 nm-es telken elhelyezkedő családi ház és birtok.

 

A HÁZ:

Az 1950-es években épült, majd 2005-ben kibővített családi ház szerető tulajdonosától eladó. A 3748 négyzetméteres belterületi telken álló épület utcafronti falazata 60 cm vastag vályog és a további falazata 38 cm vastag tégla. A ház kibővítése szintén 38-as porotherm téglával, valamint könnyűszerkezettel történt, stílusos duplex kialakítással várja új tulajdonosát. A kellemes hőmérsékletről télen a kombi gázcirkókazán gondoskodik, másodlagos fűtés pedig gyönyörű kályhával megoldható.

A házat természetes, fából készült, prémium minőségű bejárati ajtóval, ablakokkal szerelték fel.

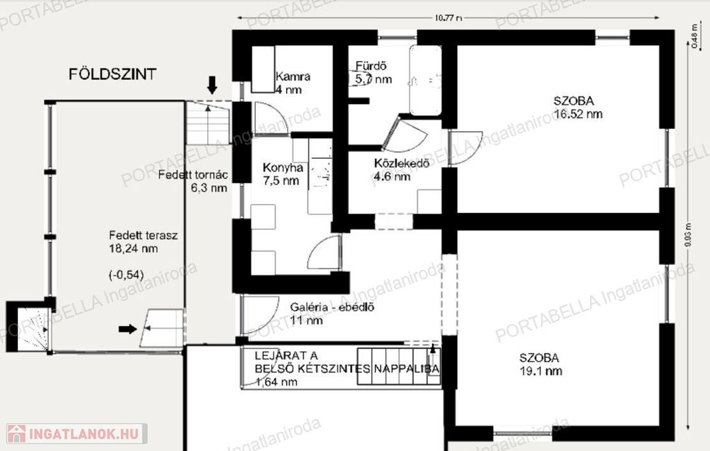
A fa konyhabútor és a beépített háztartási gépek mind az új tulajdonos kényelmét szolgálják a gyönyörű látszó gerendás konyhában kilátással a verandára és a nagy teraszra. A konyhából nyílik a 4 nm-es kamra, mely plusz tárolási lehetőséget biztosít.

A bejárati szinten található még 2 db hálószoba (16,5 és 19,1 nm), kádas fürdőszoba szeparált wc-vel és egy nagy előtér, melyből a belső kétszintes kialakításnak köszönhetően átlátható a közel 6 méteres belmagasságú földszinti nappali.

A földszinten télikertnek is kiválóan alkalmas nappalin kívül egy dolgozószoba, valamint a pincelejáró.

A nappaliból nyílik a kényelmes alsó terasz, melyet két kerti tó fog közre.

A kert több részre szekciónált, de ez természetesen egybe nyitható, így akadály nélkül bejárható a több mint 3748 nm terület, mely ősfákkal és parkosított növényekkel telepített.

 

A BIRTOK:

A falu utolsó utcájában utolsó ingatlanként abszolút nincs átmenő forgalom a bel és külterületi részek között, melyel így egybefüggő egységet képeznek. Besorolásuk rét és szántó vegyese. A terület déli oldalát fasor határolja, északi oldalát a főút.

A területen található egy saját forrás hozzá tartozó kis tavacskával, mely mellett egy gyönyörű és hatalmas fűzfa ad hűsítő árnyékot. A nyugalom oázisa, melyben ha megpihen az ember akkor bizton tudhatja, hogy amíg a szem ellát az az ő birtoka.



A KÖRNYÉK:

Elérhető távolságban a környéken minden megtalálható: bolt, patika, háziorvosi rendelő, bank, bölcsőde, óvoda, iskola, posta, Kormányablak.



Régi bányászvárosként múzeum található a mára már bezárt tárna környékén, valamit helyi pincesor is működik a környéken, hisz lokációban az egri borvidék területén helyezkedik el a település.

A zöld területet keresők és a sportolni vágyók felfedezhetik a közelben fekvő számtalan tavat és túraútvonalat.



KÖZLEKEDÉS:

M3 autópálya: 15 perc távolságra

Budapest 50 perc autóval.

 

Természetesen van helyi távolsági busz is, melynek megállója 6 perc gyalogosan.

 

A parkolás az udvarban is lehetséges, illetve a ház melletti területen akár 6 autónak is.

 

Ha vidéken kezdené újra nyugalomban és békében vagy állattartásban gondolkodik ,akkor ez az Ön ingatlanja.

 

***SMALL ESTATE FOR SALE AT THE FOOT OF THE MÁTRA, IN RÓZSASZENTMÁRTON***

At the foot of the Mátra, in Rózsaszentmárton, a bright, 85 sqm family house and estate, with living room + 2 bedrooms, 1 bathroom, full utilities, situated on a continuous 53,179 sqm plot on a total of 10 parcel numbers, built in the 1950s and expanded in 2005, is for sale. The property is available for a quick move-in.

THE HOUSE:

This family house was built in the 1950s and expanded in 2005, now for sale by its caring owner. The building is located on a 3,748 sqm inner-city plot, with a street-front wall that is 60 cm thick made of adobe, and the rest of the walls are 38 cm thick brick. The expansion was also done with 38 cm Porotherm brick and lightweight construction, featuring a stylish duplex design ready for its new owner. A combi gas-circulation boiler ensures a pleasant temperature in winter, and secondary heating can be achieved with a beautiful stove.

The house is equipped with a natural, wooden premium-quality entrance door and windows.

The wooden kitchen furniture and built-in appliances serve the new owner's comfort in the beautiful kitchen with exposed beams, offering a view of the veranda and large terrace. A 4 sqm pantry, which provides additional storage space, opens from the kitchen.

On the entrance level, there are also 2 bedrooms (16.5 and 19.1 sqm), a bathroom with a bathtub and a separate toilet, and a large foyer. Thanks to the duplex layout, there is a view of the ground floor living room with nearly 6 meters high ceilings.

On the ground floor, in addition to the living room suitable for a winter garden, there is a study and the cellar entrance.

The comfortable lower terrace opens from the living room, flanked by two garden ponds.

The garden is sectioned into several parts, but they can naturally be opened into one, allowing unobstructed access to the more than 3,748 sqm area, which is planted with ancient trees and landscaped plants.

THE ESTATE:

Situated at the last street of the village with no through traffic between the inner and outer areas, creating a contiguous unit. The classification is a mix of meadows and croplands. The southern side of the area is bordered by a row of trees, while the northern side borders the main road.

The property has its own spring with a small pond, next to which a beautiful and large willow tree provides cooling shade. It is an oasis of tranquility, and one can rest assured that as far as the eye can see, the land belongs to them.

THE SURROUNDINGS:

The surrounding area offers everything within reach: a shop, pharmacy, general practitioner, bank, nursery, kindergarten, school, post office, and government office.

As a former mining town, there is a museum near the now-closed mine, and there is a local wine cellar row as the settlement is located within the Eger wine region.

Nature and sports enthusiasts can explore numerous nearby lakes and hiking trails.

TRANSPORTATION:

M3 highway: 15 minutes away

Budapest: 50 minutes by car.

There is also a local long-distance bus service, with a stop a 6-minute walk away.

Parking is possible in the courtyard, and there is space next to the house for up to 6 cars.

If you're looking to start anew in peace and tranquility in the countryside or consider animal husbandry, this property is for you.

 

***KLEINBESITZ ZU VERKAUFEN AM FUßE DES MÁTRA-GEBIRGES, IN RÓZSASZENTMÁRTON***

Am Fuße des Mátra-Gebirges, in RÓZSASZENTMÁRTON, steht eine in den 1950er Jahren errichtete und 2005 erweiterte, helle 85 m² große Familienhaus mit kurzem Einzugstermin zum Verkauf. Es verfügt über ein Wohnzimmer, 2 Schlafzimmer, 1 Badezimmer, alle Versorgungsanschlüsse und befindet sich auf einem zusammenhängenden Grundstück von 53.179 m², aufgeteilt auf 10 Flurstücke.

DAS HAUS:

Das Familienhaus, das in den 1950er Jahren erbaut und 2005 erweitert wurde, wird von seinem liebevollen Besitzer verkauft. Das Gebäude auf einem 3.748 m² großen städtischen Grundstück hat eine Vorderwand aus 60 cm dickem Lehmziegel und die restlichen Wände aus 38 cm dickem Backstein. Die Erweiterung des Hauses erfolgte ebenfalls mit 38-er Porotherm-Ziegel sowie in Leichtbauweise und erwartet seinen neuen Besitzer mit einem stilvollen Duplex-Design. Die angenehme Temperatur im Winter wird durch einen Kombi-Gas-Zirkulationskessel gewährleistet und die sekundäre Heizung kann durch einen schönen Kamin erfolgen.

Das Haus ist mit natürlichen, hochwertigen Holzeingangstüren und Fenstern ausgestattet.

Die Holzküche und die eingebauten Haushaltsgeräte dienen dem Komfort des neuen Besitzers in einer schönen Küche mit sichtbaren Balken und Blick auf die Veranda und die große Terrasse. Von der Küche aus öffnet sich die 4 m² große Speisekammer, die zusätzlichen Stauraum bietet.

Im Eingangsbereich befinden sich zudem 2 Schlafzimmer (16,5 und 19,1 m²), ein Badezimmer mit Badewanne und separater Toilette sowie ein großer Vorraum, von dem aus dank der zweigeschossigen Innenaufteilung das Erdgeschoss-Wohnzimmer mit fast 6 Meter hoher Decke überblickt werden kann.

Im Erdgeschoss, abgesehen vom Wohnzimmer, das sich hervorragend als Wintergarten eignet, gibt es ein Arbeitszimmer sowie den Kellereingang.

Vom Wohnzimmer aus öffnet sich die komfortable untere Terrasse, die von zwei Gartenteichen flankiert wird.

Der Garten ist in mehrere Bereiche unterteilt, die jedoch natürlich zu einem großen Ganzen verbunden werden können. So kann das über 3.748 m² große Gelände, das mit alten Bäumen und gepflegter Vegetation bepflanzt ist, problemlos durchquert werden.

DAS GRUNDSTÜCK:

Als letztes Grundstück in der letzten Straße des Dorfes gibt es absolut keinen Durchgangsverkehr zwischen den städtischen und ländlichen Bereichen, die eine zusammenhängende Einheit bilden. Ihre Einstufung ist gemischte Wiese und Ackerland. Die südliche Grenze des Grundstücks wird von einer Baumreihe gebildet, die nördliche von der Hauptstraße.

Auf dem Grundstück befindet sich eine eigene Quelle mit einem kleinen Teich, neben dem eine wunderschöne und große Weide kühlenden Schatten spendet. Es ist eine Oase der Ruhe, in der man sicher sein kann, dass das Land, soweit das Auge reicht, einem selbst gehört.

DIE UMGEBUNG:

In erreichbarer Nähe findet sich alles, was man braucht: Geschäft, Apotheke, Hausarztpraxis, Bank, Krippe, Kindergarten, Schule, Post, Regierungsfenster.

Als ehemaliger Bergarbeiterstadt befindet sich ein Museum in der Nähe des heute geschlossenen Stollens, ebenso gibt es eine lokale Weinkellerstraße, da das Dorf im Weinbaugebiet des Egerer Weinanbaugebiets liegt.

Naturliebhaber und Sportbegeisterte können die zahlreichen Seen und Wanderwege in der Nähe erkunden.

VERKEHR:

Die Autobahn M3 ist 15 Minuten entfernt.

Budapest ist in 50 Minuten mit dem Auto erreichbar.

Natürlich gibt es auch einen örtlichen Überlandbus, dessen Haltestelle 6 Gehminuten entfernt ist.

Parken ist auch im Hof sowie auf dem Gelände neben dem Haus für bis zu 6 Autos möglich.

Wenn Sie ruhig und friedlich auf dem Land neu anfangen möchten oder an Tierhaltung denken, dann ist dies Ihre Immobilie.

Családi ház részletei

Ár: 84 900 000 Ft
Méret: 85 négyzetméter
Azonosító: 11484190
Irodai azonosító: 716300116
Cím: Bem József u.
Telek: 53179 négyzetméter
Ingatlan állapota: Átlagos
Jelleg: családi ház
Építőanyag: Kérdezzen rá a hirdetőtől »
Fűtés jellege: Cirkó
Komfort fokozat: Összkomfort
Egész szobák: 3

Videók (1)