Eladó családi ház Salgótarján 15 000 000 Ft

Leírás

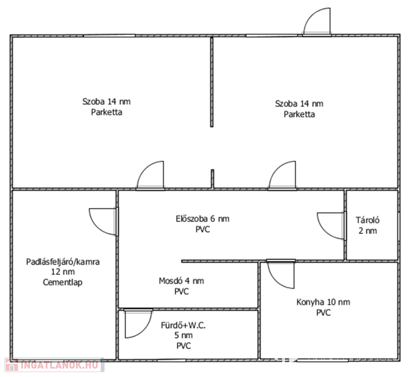
Salgótarjánban (Salgó kapu) 67 nm-es, 2 szobás, teljes felújítást igénylő, tégla+vályog szerkezetű, tehermentes, azonnal birtokba vehető ikerház eladó!

Helyiségei: 2 szoba, előszoba, fürdőszoba, konyha, kamra/padlásfeljáró, mosdó, tároló, az alsó szinten 20 nm-es pince.

Az épület teljes esztétikai és gépészeti felújítást igényel. Az utcafronti ablakok és a bejárati ajtó új, műanyag profillal szerelt.

A fűtést kandalló, a meleg víz ellátást villanybojler biztosítja.

Az alsó szinten két külön nyíló pincehelyiség található.

Az ingatlanhoz tartozó 742 nm-es telek, körbekerített, területén udvari gépkocsibeálló, önálló garázs (tetején panorámás napozóterasz), gazdálkodásra alkalmas melléképületek, termő gyümölcsfák találhatók.

A városközpont autóval 5 perc alatt elérhető, buszmegálló 400 méteren belül található.
(További képekért és információkért kérem hívjon!)

Családi ház részletei

Ár: 15 000 000 Ft
Méret: 67 négyzetméter
Azonosító: 11557328
Irodai azonosító: 625952
Telek: 742 négyzetméter
Ingatlan állapota: Felújítandó
Jelleg: ikerház
Építőanyag: Tégla
Fűtés jellege: Kandalló
Egész szobák: 2

Egyéb jellemzők

  • Beépíthető tetőtér
  • Csatorna
  • Garázs
  • Melléképület
  • Pince
  • Terasz

Hasonló családi ház hirdetések

Eladó családi ház

Salgótarján

A Medves fennsík déli végénél, Rónafaluban, az ország egyik legszebb ...

Eladó családi ház

Salgótarján

Eladó hangulatos zárt kert a Kercseg-dűlő csendes utcájában! Ez az ...

Eladó családi ház

Salgótarján

Salgótarján egyik csendes, nyugodt utcájában, a Blaha Lujza úton, 72 nm-es, ...

Hasonló családi ház hirdetések

Eladó családi ház

Salgótarján

A Medves fennsík déli végénél, Rónafaluban, az ország egyik legszebb ...

Eladó családi ház

Salgótarján

Eladó hangulatos zárt kert a Kercseg-dűlő csendes utcájában! Ez az ...

Eladó családi ház

Salgótarján

Salgótarján egyik csendes, nyugodt utcájában, a Blaha Lujza úton, 72 nm-es, ...