Eladó családi ház Salgótarján 33 500 000 Ft

Leírás

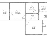
Eladó Rónafaluban egy 85 négyzetméteres, négyszobás, összkomfortos családi ház.
A házban minden szoba klímaberendezéssel ellátott.
A gazdaságos üzemeltetést 5 kW-os napelemes rendszer, és a közel egy méter vastag, erős, jó hőszigetelő képességű falak biztosítják.
A központi fűtést tápláló, vegyes tüzelésű kazánt csak a nagy hidegekben kell beindítani.
A melegvíz ellátásról villanybojler gondoskodik.
Ez a kis mesebeli ház a Medves fennsík lábánál, egy minden kényelemmel ellátott, kényelmes otthon.
A szoba ablakokból, a teraszról, a kertből, csodálatos kilátásban gyönyörködhet aki itt él. Közvetlenül ráláthat a Salgói Várra, a Tarjáni völgyre, és a környező hegyekre. A háztól 50-100 méterre lévő Mogyorósi-kilátóból jó időben a Mátra és a Tátra csúcsait is láthatjuk.
Az udvarba gépkocsival is be lehet állni.
Az ingatlanhoz tartozik egy 20 négyzetméteres pince, és egy közel 40 négyzetméteres melléképület is.
A ház mellett, és a hozzá tartozó 1119 négyzetméteres telek alsó részén is egy-egy aszfaltozott út fut. A telken gondozott gyümölcsfák hoznak évente bőséges termést a gazdájuknak.

A Salgótarjánhoz tartozó Rónafalu Nógrád vármegye és az ország egyik legszebb fekvésű települése.
Páratlan élmény innen a naplemente, ugyanis tavasszal a Nap éppen Salgó vára mögött bukik le.
Az 520-570 méteres tengerszint feletti magasságban fekvő Medves-fennsíkon való túrázás teljesen egyedi élmény Magyarországon, a látóhatáron ugyanis csak a környék legmagasabb csúcsai kandikálnak ki.
Mindössze három kilométeres túrával eljuthatunk az Eresztvényi Túristaházhoz, vagy Salgó várához, ahonnan a hazai viszonylatban meglepően ép falak mellől megcsodálhatjuk a fantasztikus kilátást és a zsákos kiválású bazaltoszlopokat. Átsétálhatunk a szomszédos, Boszorkány-kőnek is nevezett Kis-Salgóra, ahol egyes mondák szerint boszorkányok táncoltak egykoron. Csodálatos panoráma nyílik a Zagyva-forrásvidékére. Innen ered a Zagyva, hazánk leghosszabb folyója.
Nem messze áll Somoskő vára, aminek Szlovák oldalán megnézhetjük a híres Bazalt Orgonát. A számos látnivaló között megtalálható az Eresztvényi kőbányák geológiai tanösvény, a Salgótarjáni Bányamúzeum, a Baglyas-kő Vár Természetvédelmi Látogatóközpont. Meghódíthatjuk a Palóc Olimposzt, a Karancsot, vagy éppen a Szilvás-kő csúcsát. Átruccanhatunk a Szlovák oldalon álló Füleki fellegvárba, amelynek bevehetetlensége legendás volt a korabeli időkben.
Rónafalu a Medves-fennsík egyik legtöbbet fotózott helyszíne, amely minden bizonnyal pályázhatna az ország legjobb panorámájával rendelkező települése címére.
Ezt látni kell! Ne hagyja ki!
Hívjon a +36 70 423 13 04-es telefonszámon!
(További képekért és információkért kérem hívjon!)

Családi ház részletei

Ár: 33 500 000 Ft
Méret: 85 négyzetméter
Azonosító: 11608477
Irodai azonosító: 453382
Telek: 1119 négyzetméter
Ingatlan állapota: Felújított
Jelleg: családi ház
Építőanyag: Tégla
Fűtés jellege: Cserépkályha
Egész szobák: 4
Nappalik: 1

Egyéb jellemzők

  • Beépíthető tetőtér
  • Csatorna
  • Garázs
  • Melléképület
  • Pince
  • Terasz

Hasonló családi ház hirdetések

Eladó családi ház

Salgótarján

Salgótarján egyik csendes, nyugodt utcájában, a Rózsafa úton, 140 nm-es, ...

Eladó családi ház

Salgótarján

Salgótarján kertvárosában eladó egy remek adottságokkal rendelkező családi ...

Eladó családi ház

Salgótarján

Salgótarjánban (Vadaskert), kiváló adottságokkal rendelkező, 74 nm hasznos ...

Hasonló családi ház hirdetések

Eladó családi ház

Salgótarján

Salgótarján egyik csendes, nyugodt utcájában, a Rózsafa úton, 140 nm-es, ...

Eladó családi ház

Salgótarján

Salgótarján kertvárosában eladó egy remek adottságokkal rendelkező családi ...

Eladó családi ház

Salgótarján

Salgótarjánban (Vadaskert), kiváló adottságokkal rendelkező, 74 nm hasznos ...