Eladó családi ház Salgótarján 38 000 000 Ft

Leírás

Salgótarjánban (Forgách telep), kiváló adottságokkal rendelkező, 148 nm hasznos alapterületű, 6 szobás, 2 szintes, tehermentes családi ház eladó!

Az ingatlan egy cca. 900 nm-es, lankás telken helyezkedik el, csendes, családbarát környezetben. A telken melléképületek, több autó számára felszíni beálló található.

A családi ház két önálló lakrészre osztott, ezáltal, akár több generáció harmonikus együttélésére vagy otthoni vállalkozás működtetésére is ideális lehet.

A földszinten a nappali, 2 hálószoba, fürdőszoba, konyha, közlekedő, tároló és műhely/kazánház került kialakításra.

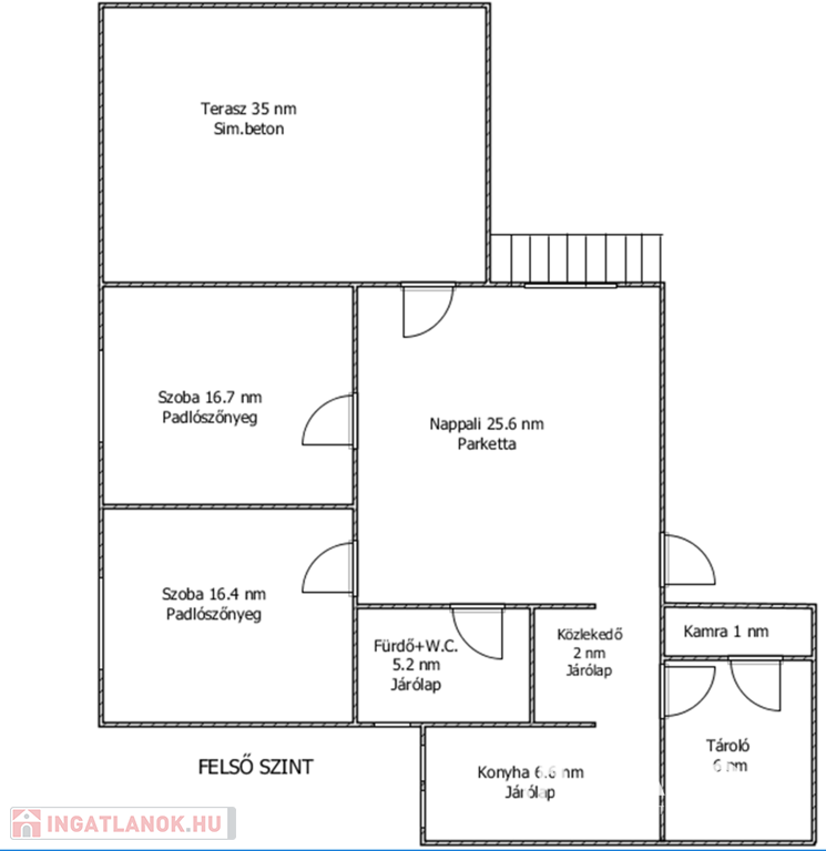
Az emeleti szinten nappali, 2 kényelmes hálószoba, fürdőszoba, konyha, közlekedő és tároló kapott helyet.

Az emeleten nappali kapcsolatos, 35 nm-es, részben fedett terasz található.

A ház műszakilag jó állapotú, szerkezete stabil és masszív. Téglából épült, 8 cm külső hőszigeteléssel ellátott. A nyílászárók korszerű, hő- és hangszigetelt műanyag ablakok. A fűtést gáz kombi cirkó kazán, a meleg víz ellátást villanybojler biztosítja, de alternatív megoldásként vegyes tüzelésű kazán és kandalló is rendelkezésre áll, így a fűtési rendszer rugalmasan használható.

A ház 70'-es években épült, jó állapotú, azonban, igény szerint esztétikai felújítás szükséges lehet.

Ez az otthon ideális választás lehet nagycsaládosok számára, többgenerációs együttéléshez, vagy olyanoknak, akik külön bejáratú lakrészt keresnek otthoni vállalkozáshoz.

A ház tágas, jól kihasználható, a környék csendes, mégis jól ellátott – mindössze 5 perc távolságra Salgótarján központjától.

A ház per-és tehermentes, a további részletekért kérem hívjon.
(További képekért és információkért kérem hívjon!)

Családi ház részletei

Ár: 38 000 000 Ft
Méret: 148 négyzetméter
Azonosító: 11548910
Irodai azonosító: 461532
Erkély mérete: 35.00 négyzetméter
Telek: 900 négyzetméter
Ingatlan állapota: Felújítandó
Jelleg: családi ház
Építőanyag: Tégla
Fűtés jellege: Cirkó
Egész szobák: 5
Nappalik: 1

Egyéb jellemzők

  • Beépíthető tetőtér
  • Csatorna
  • Garázs
  • Melléképület
  • Pince
  • Terasz

Hasonló családi ház hirdetések

Eladó családi ház

Salgótarján

Salgótarjánban (Vadaskert), kiváló adottságokkal rendelkező, 74 nm hasznos ...

Eladó családi ház

Salgótarján

Salgótarjánban (Rákóczi út), kiváló adottságokkal rendelkező, 175 ...

Hasonló családi ház hirdetések

Eladó családi ház

Salgótarján

Salgótarjánban (Vadaskert), kiváló adottságokkal rendelkező, 74 nm hasznos ...

Eladó családi ház

Salgótarján

Salgótarjánban (Rákóczi út), kiváló adottságokkal rendelkező, 175 ...