Eladó családi ház Seregélyes 66 900 000 Ft

Leírás

Vh-004501 Seregélyes központjában 101m2 hasznos alapterületű, nappali +3 hálószobás, önálló, teljes körűen felújított és újra gondolt családi ház 1020m2-es telekterülettel eladó!

A település rendezett, folyamatosan fejlődik és bővül. Székesfehérvártól, illetve a Velencei-tó partjától mindössze 15 perc autóútra található. A településen számos buszmegálló és vasútállomás is található. Az ingatlan környezetében szinte minden elérhető, ami a kényelmes életvitelhez elengedhetetlen (gyógyszertár, orvosi rendelő, általános és középiskola, posta, bank, boltok, sportpályák...).

Az ingatlan 1976-ban épült vegyesfalazattal (vályog, tégla).
Az elmúlt évek során teljeskörű felújításon esett át, mely magába foglalja a víz,- és villanyvezeték, nyílászárók, hideg-meleg burkolatok cseréjét, a villanyhálózat 32 A-ra bővült (nappali és éjszakai áram).
A teljes fűtésrendszer korszerűsítve lett.
A homlokzati falak 5cm vastag szigetelést kaptak, a vályog részre légáteresztő vakolat is került.
A tetőszerkezet felújított, új fedést kapott. A födém fából készült, 30cm vastag kőzetgyapottal szigetelve, a padlástér járhatóvá lett téve.
A padló is új szigeteléssel lett ellátva.
Lábazata terméskő, az ingatlan nem vizesedik, műszakilag kiváló állapotú.
A ház melegét egy teljesen új Ariston kazán biztosítja radiátoros hőleadással.

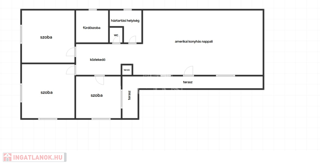
Elosztását tekintve 101m2 hasznos alapterületű.
Amerikai konyhás nappali, közlekedő, 3 tágas hálószoba, fürdőszoba, vendég WC, háztartási helyiség került kialakításra.

A telek 1020m2-es teljesen körbekerített, található rajta 2 ásott kút és számos gyümölcsfa is. A bejutás elektromos kapun keresztül biztosított. A helyi építési szabályzat lehetőséget kínál további melléképületek, garázs kialakítására.

Utcafrontja: 20m
Az ingatlan per,-és tehermentes, azonnal költözhető.

Eladási irányár: 69,9 M Ft

A terület mérete számos lehetőséget kínál a kikapcsolódásra, legyen szó kertművelésről vagy medence kialakításáról.

Ideális választás mindenki számára, legyen szó gyermekkel költöző családoknak, vagy pihenni vágyóknak, illetve az elhelyezkedése miatt befektetésre is tökéletes választás.

A ház a kényelmes otthont biztosít a lakók számára, mind a belső lakrészben, mind a kert, udvar, illetve a terasz területén. Nyugalmat sugároz, a mindennapos rohanások után.

Ha felkeltette érdeklődését, hívjon bizalommal, éljen ingyenes, személyre szabott hitelügyintézés szolgáltatásunkkal. Segítünk továbbá adásvételhez szükséges ügyvédi közreműködésben, energetikai tanúsítvány, valamint értékbecslés elkészítésében
.
For English details please send us a message or an e-mail, thank you.

Családi ház részletei

Ár: 66 900 000 Ft
Méret: 101 négyzetméter
Azonosító: 11548110
Irodai azonosító: 384544
Cím: Központ
Telek: 1020 négyzetméter
Ingatlan állapota: Felújított
Jelleg: családi ház
Építőanyag: Kérdezzen rá a hirdetőtől »
Fűtés jellege: Cirkó
Fűtés módja: Gáz
Komfort fokozat: Összkomfort
Kor: 50 évesnél régebbi
Szintek száma: Földszintes
Egész szobák: 4

Egyéb jellemzők

  • Csatorna
  • Garázs
  • Pince
  • Terasz

Térkép

Hasonló családi ház hirdetések

Eladó családi ház

Seregélyes

Vh-004501 Seregélyes központjában 101m2 hasznos alapterületű, nappali ...

Hasonló családi ház hirdetések

Eladó családi ház

Seregélyes

Vh-004501 Seregélyes központjában 101m2 hasznos alapterületű, nappali ...