Eladó családi ház Siklós 60 000 000 Ft

Leírás

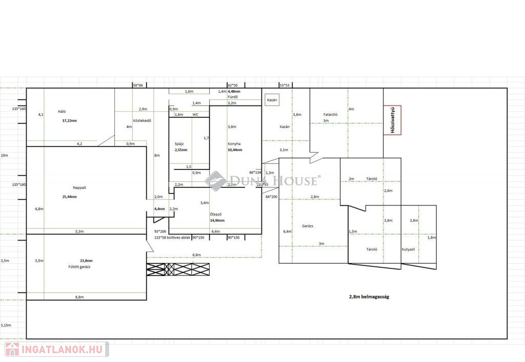
Siklós csendes, nyugodt utcájában, 180 m²-es, részben felújított és átalakított, két generációs családi ház eladó.A ház felújításon esett át az MFB pályázatnak köszönhetően, így az összes nyílászáró műanyagra lett cserélve, és a villamos hálózat is modernizálásra került. A rendszer teljesítménye bővült, és új éjszakai, nappali (3x25) és H-tarifa (3x16) áramkörök kerültek kiépítésre a hőszivattyú ellátására.-Fűtés szempontjából két lehetőség közül választhatunk:- Vegyes tüzelésű kazán- Fő fűtési rendszerként működő hőszivattyúAz ingatlanon gázcsonk is elérhető, így könnyedén bevezethető a gáz. Az északi és nyugati falak, valamint a garázs feletti rész szigetelve van, a födémre pedig 10 cm vastag kőzetgyapotot helyeztek el. Az emeleten a nappali és a hálószoba egy-egy klímával felszerelt.Az ingatlan számos lehetőséget rejt magában, ideális választás lehet akár két generáció számára, vagy akár Airbnb-szolgáltatás céljára is.A két szint különálló, de szükség esetén összenyitható.Az alsó szinten található:- Nappali- Hálószoba- Konyha- Étkező- Spájz- FürdőszobaAz emeleten:- Nappali- Konyha- Fürdőszoba- 2,5 szoba (az egyik szoba ablak nélküli, beépítésre vár)A 616 m²-es telek tartalmaz:- Fedett, fűthető garázs- További tároló helyiségek: fa tároló, külön garázs, gépészeti helyiség/nyári konyha, szerszámos, lomos tároló, valamint egy fúrt kút.Tesco és Aldi 12 perc sétára-Belváros 15 perc sétával elérhető-Óvoda és iskola mindössze 10 perc sétára-Buszmegállók 5 perc sétára találhatókHa keresel egy rugalmasan használható, több generáció számára is ideális otthont, vagy akár üzleti céllal szeretnél ingatlant, ne hagyd ki ezt a lehetőséget!

Családi ház részletei

Ár: 60 000 000 Ft
Méret: 259 négyzetméter
Azonosító: 11578119
Irodai azonosító: HZ094418-5079307
Cím: Siklósi eladó 259 nm-es ház
Telek: 616 négyzetméter
Összesített energetikai besorolás: F
Ingatlan állapota:
Jelleg: családi ház
Építőanyag: Tégla
Fűtés jellege: Villany
Fűtés módja: Hőszivattyú
Komfort fokozat: Dupla komfort
Kor: 21-50 éves
Szintek száma: Földszintes
Egész szobák: 6

Egyéb jellemzők

  • Garázs
  • Padlás
  • Pince

Térkép

Hasonló családi ház hirdetések

Eladó családi ház

Siklós

Siklós-családi házas övezetében, a 70-es években épült, 2 szintes családi ...

Hasonló családi ház hirdetések

Eladó családi ház

Siklós

Siklós-családi házas övezetében, a 70-es években épült, 2 szintes családi ...