Eladó családi ház Siófok 219 990 000 Ft

Leírás

Eladó luxusingatlan Siófok legszebb lakóparkjában, panorámás kilátással a Balatonra!

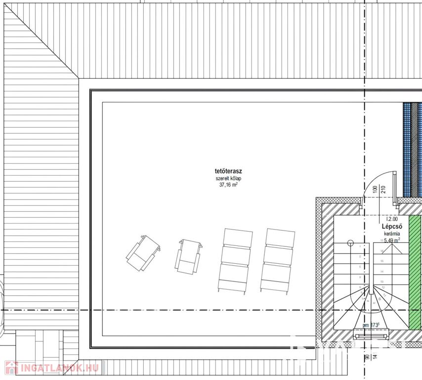
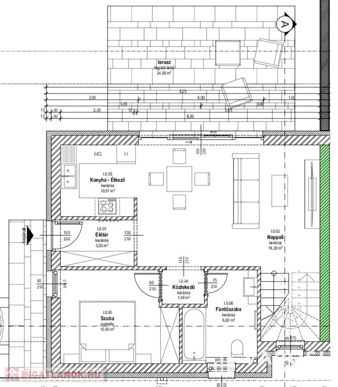
Siófok egyik legexkluzívabb, új építésű lakóparkjában kínálunk eladásra egy nettó 110 m2-es, prémium minőségű ikerházat, amelyhez ezen felül tartozik egy 24 m2-es terasz, egy 23,49 m2-es erkély és egy 37,16 m2-es tetőterasz. Az ingatlan tervezésénél rendkívüli figyelem lett fordítva a telek adottságainak maximális kihasználására, ezért a házból lenyűgöző, zavartalan panoráma nyílik a Balatonra, így minden nap a tó látványában gyönyörködhet!

Főbb jellemzők:
- Kiváló elhelyezkedés – a Balaton partja mindössze 200 méterre található
- Tágas lakótér – modern, átgondolt elrendezéssel
- Hatalmas teraszok – az első emeleti erkély és a tetőterasz is páratlan kilátást biztosít
- Energiahatékony megoldások – 15 cm-es grafitos hőszigetelés, hőszivattyús padlófűtés gondoskodik az otthon melegéről
- Parkosított kert – gondosan karbantartott zöldterület
- Parkolás – gépjárműbeállási lehetőség biztosított
- Remek közlekedés – az M7-es autópálya gyorsan elérhető, így Budapest is könnyen megközelíthető
- Legmodernebb optikai internet kábel - garantáltan jó internetkapcsolat, ha a munka és a szórakozás megkívánja

Luxus, kényelem és nyugalom egy helyen!
A lakás egy modern, családbarát környezetben, új építésű házak között található, ahol a nyugodt lakókörnyezet és a balatoni életérzés tökéletes harmóniában találkozik. Az ingatlan ideális választás mindazok számára, akik csendre, panorámára és exkluzív életstílusra vágynak, legyen szó állandó otthonról vagy nyaralóról.

Átadás: 2026 december – Foglalja le időben álmai otthonát!
Ez a hirdetés az ingatlan utcafronti részére vonatkozik. Az ikerház hátsó része is eladó!

Az ingatlan adottságai kiváló lehetőséget kínálnak és különleges értéket képviselnek Siófokon. Tegye meg az első lépést álmai otthonának megszerzése felé! Ne habozzon, hívjon még ma!
(További képekért és információkért kérem hívjon!)

Családi ház részletei

Ár: 219 990 000 Ft
Méret: 152 négyzetméter
Azonosító: 11499100
Irodai azonosító: 609051
Erkély mérete: 61.00 négyzetméter
Telek: 220 négyzetméter
Ingatlan állapota: Kitűnő
Jelleg: ikerház
Építőanyag: Tégla
Fűtés jellege: Hőszivattyú
Egész szobák: 4
Fél szobák: 1
Nappalik: 1

Egyéb jellemzők

  • Beépíthető tetőtér
  • Csatorna
  • Garázs
  • Melléképület
  • Pince
  • Terasz

Hasonló családi ház hirdetések

Eladó családi ház

Siófok

Siófok rózsadombján a Fokihegyen eladó egy 425 m2-es, 3 szintes, családi ...

Eladó családi ház

Siófok

Eladó luxusingatlan Siófok legszebb lakóparkjában, panorámás kilátással ...

Eladó családi ház

Siófok

Nekem a Balaton a RIVIÉRA - Neked is az lehet!!Szeretnél a Balaton déli ...

Eladó családi ház

Siófok

Eladó családi ház Siófok egyik legkedveltebb részén Fokihegy városrészében, ...

Hasonló családi ház hirdetések

Eladó családi ház

Siófok

Siófok rózsadombján a Fokihegyen eladó egy 425 m2-es, 3 szintes, családi ...

Eladó családi ház

Siófok

Eladó luxusingatlan Siófok legszebb lakóparkjában, panorámás kilátással ...

Eladó családi ház

Siófok

Nekem a Balaton a RIVIÉRA - Neked is az lehet!!Szeretnél a Balaton déli ...

Eladó családi ház

Siófok

Eladó családi ház Siófok egyik legkedveltebb részén Fokihegy városrészében, ...