Eladó családi ház Siófok 219 900 000 Ft

Leírás

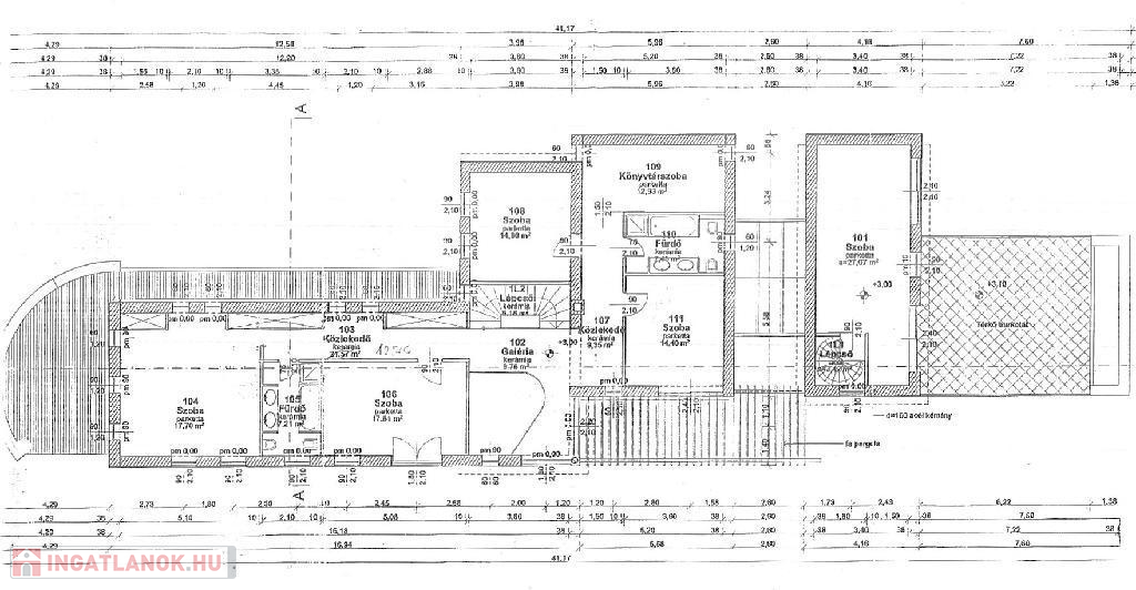
Balaton déli parton, Siófokon 270 m2-es családi ház eladó. Az ingatlan kertvárosi részen, csendes utcában helyezkedik el. A kétszintes épület 2 lakóegységet tartalmaz. A 2006-ban téglából épült lakóház a kor igényeinek megfelelő magas színvonalon, kőzetgyapot homlokzati hőszigeteléssel, természetes pala tetőhéjazattal, egyedi belsőépítészeti megoldásokkal került kivitelezésre. A földszinten külön bejáratú garzonlakás épült, ez akár iroda vagy otthoni vállalkozás céljára is alkalmas lehet. A nagyobb lakrész - földszint + teljes értékű emelet - több generáció együttélésére is alkalmas lehet. A földszinten lakóterek, és hálószoba, emeleten 4 háló és 2 fürdőszoba került kialakításra. Tervek szerint a lakótérből egy télikerten át wellness tér kerül kialakításra, medencetér, szauna, tetőtéri pihenőszoba, tetőterasz, ezek jelenleg szerkezetkész állapotban vannak. Az épület fűtése és melegvíz ellátása gáz kondenzációs kazánnal kivitelezett. A hőleadás módja padlófűtés és falfűtés, használati melegvíz tároló 300 literes. A gépészeti rendszernél medence vízgépészet csövezése elkészült. Épületen belül kétállásos, fűtött garázs áll rendelkezésre. A telek területe 991 m2, a parkosított kertben automata öntözőrendszer fúrt kútról működik. Balaton-part és városközpont gyalog 800 méter távolságban van. Bővebb információért keressen telefonon!

Referencia szám: M307406

Családi ház részletei

Ár: 219 900 000 Ft
Méret: 270 négyzetméter
Azonosító: 11551692
Irodai azonosító: M307406-4991652
Telek: 991 négyzetméter
Ingatlan állapota:
Jelleg: családi ház
Építőanyag: Tégla
Fűtés jellege: Cirkó
Fűtés módja: Gáz
Komfort fokozat: Összkomfort
Kor: 11-20 éves
Szintek száma: 1 szint
Egész szobák: 7

Egyéb jellemzők

  • Garázs

Térkép

Hasonló családi ház hirdetések

Eladó családi ház

Siófok

Siófok rózsadombján a Fokihegyen eladó egy 425 m2-es, 3 szintes, családi ...

Eladó családi ház

Siófok

Eladó luxusingatlan Siófok legszebb lakóparkjában, panorámás kilátással ...

Eladó családi ház

Siófok

Eladó családi ház Siófok egyik legkedveltebb részén Fokihegy városrészében, ...

Eladó családi ház

Siófok

Nekem a Balaton a RIVIÉRA - Neked is az lehet!!Szeretnél a Balaton déli ...

Hasonló családi ház hirdetések

Eladó családi ház

Siófok

Siófok rózsadombján a Fokihegyen eladó egy 425 m2-es, 3 szintes, családi ...

Eladó családi ház

Siófok

Eladó luxusingatlan Siófok legszebb lakóparkjában, panorámás kilátással ...

Eladó családi ház

Siófok

Eladó családi ház Siófok egyik legkedveltebb részén Fokihegy városrészében, ...

Eladó családi ház

Siófok

Nekem a Balaton a RIVIÉRA - Neked is az lehet!!Szeretnél a Balaton déli ...