Eladó családi ház Siófok 279 000 000 Ft

Leírás

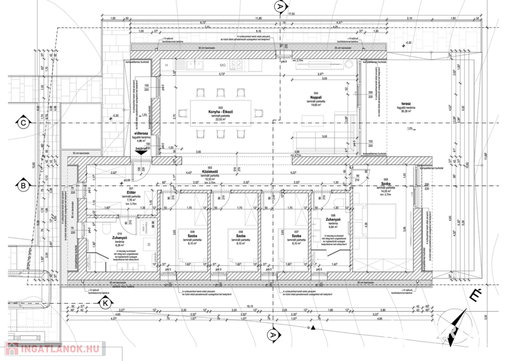
Siófok-Sóstó, új építésű lakóparkjában a Csenge utcában eladó ez az egyedi megjelenésű önálló családi ház, 630 m²-es telekkel. Az épület teljesen földszintes, nettó 115 m²-es a lakótér, amelyet egy tágas előtér (7 m²), 4 hálószoba, 2 fürdőszoba és egy amerikai konyhás nappali (40 m²) alkot.

A nappali és a konyha belmagassága teszi különlegessé a ház stílusát, amely az udvar felőli oldalon teljes síkban nyílászárót kapott, így igazán lenyűgözővé téve a kapcsolatot a kerttel és a 38 m²-es terasszal.

A falak 37,5 cm-es Ytong lambda falazóelemből készültek, amely külső hőszigetelés nélkül is biztosítja a megfelelő hőszigetelést, így az épület nem csak energiatakarékos, de megfelelően “lélegzik” is. A fűtés a teljes lakótérben padlófűtés, amely kétféle módon is használható, gázkazánnal és hőszivattyúval egyaránt.

Az ingatlan jelenleg építés alatt áll, 2025 év végi átadással fog elkészülni.

Amennyiben egy igazán modern és hangulatos családi házat keres egy kiváló helyen, akkor ezt mindenképp érdemes megtekintenie. Amennyiben idejében jelentkezik, a végső arculat, az anyagok kiválasztása, a színek és a belső tér stílusának meghatározása az épület teljes készültségét megelőzően a vevői igények szerint is alakítható.

További információkért kérem hívjon akár hétvégén is!
(További képekért és információkért kérem hívjon!)

Családi ház részletei

Ár: 279 000 000 Ft
Méret: 135 négyzetméter
Azonosító: 11463800
Irodai azonosító: 528291
Telek: 630 négyzetméter
Ingatlan állapota: Kitűnő
Jelleg: családi ház
Építőanyag: Tégla
Fűtés jellege: Hőszivattyú
Egész szobák: 5
Nappalik: 1

Egyéb jellemzők

  • Beépíthető tetőtér
  • Csatorna
  • Garázs
  • Melléképület
  • Pince
  • Terasz

Hasonló családi ház hirdetések

Eladó családi ház

Siófok

Somogy megyében, Siófok Balatonszéplakon, az Ezüstparton, 222 m2-es ház, ...

Eladó családi ház

Siófok

Balaton déli parton, Siófokon 118 m2-es családi ház 56 m2-es lakható melléképülettel ...

Eladó családi ház

Siófok

Balaton déli part, Siófok, 220 m2 társasházzá alakított 2 lakóegységes ...

Eladó családi ház

Siófok

Zseniálisan átgondolt egyszintes családi házat kínálok Önnek Siófokon. Ne ...

Hasonló családi ház hirdetések

Eladó családi ház

Siófok

Somogy megyében, Siófok Balatonszéplakon, az Ezüstparton, 222 m2-es ház, ...

Eladó családi ház

Siófok

Balaton déli parton, Siófokon 118 m2-es családi ház 56 m2-es lakható melléképülettel ...

Eladó családi ház

Siófok

Balaton déli part, Siófok, 220 m2 társasházzá alakított 2 lakóegységes ...

Eladó családi ház

Siófok

Zseniálisan átgondolt egyszintes családi házat kínálok Önnek Siófokon. Ne ...