Eladó családi ház Siófok 399 000 000 Ft

Leírás

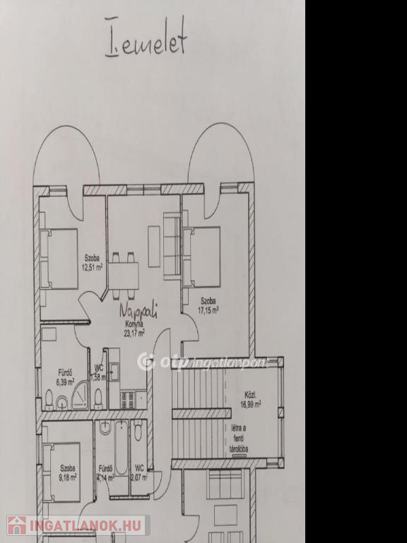
Somogy megye, Siófok, háromszintes családi ház eladó! Három az egyben, így is nevezhetnénk ezt a különleges építészeti megoldások alkalmazásával készült, mintegy 490 négyzetméteres ingatlant. Az épület földszintjén két tágas, praktikus elrendezésű apartman került kialakításra, amelyek akár mind a négy évszakban tudják fogadni a Balatonra érkező vendégeket. Az építész tulajdonos házaspár 2 darab fallabda pályát álmodott és valósított meg a hozzátartozó öltözőkkel, fürdőkkel, mellékhelyiségekkel. A 6 méteres belmagassággal rendelkező játékterek falainak építésekor, rendkívül előrelátóan, a funkció későbbi megváltoztatásával is terveztek. A két pályából kialakítható akár 4 db lakás is, mivel az épület statikailag alkalmas erre a belső átalakításra. Az öltözők előtti közlekedőn keresztül juthatunk az épület legmélyebben fekvő helyiségébe, a tégla boltíves borospincébe. A ház emeleti szintjén létesítettek két lakást, amelyekből az egyiket állandóan lakják ( 3 szobás ), a másik ( 2+2 szobás ) nyári időszakban kiadásra kerül. A tetőtérben két egység került kialakításra, mindkettőben szoba, félszoba, fürdő+WC helyiségek találhatók. Ennek a tekintélyt parancsoló méretű családi ház-nak 3 db gázcirkó kazánnal oldották meg a fűtését, valamint a lakóegységeket, apartmanokat légkondícionálták. A hőszigetelt ablakok cseréje a közelmúltban történt. A Bramac cseréppel borított tetőkön 14 db napelem panel lett elhelyezve, amelyek jelentősen mérséklik a villamosenergia költségeket. A házban található beépített berendezések a vételár részét képezik. A telek 1021 nm, amely a mérete alapján, a helyi építési szabályzatnak megfelelően, egy további lakóingatlan megépítésére lehetőséget biztosít, illetve egy nagyobb medence is elhelyezhető rajta. Egyedi ajánlat, elsősorban befektetők számára, kizárólag az OTP Ingatlanpont KFT kínálatában!

Referencia szám: M303850

Családi ház részletei

Ár: 399 000 000 Ft
Méret: 490 négyzetméter
Azonosító: 11539303
Irodai azonosító: M303850-4954124
Telek: 1021 négyzetméter
Ingatlan állapota:
Jelleg: családi ház
Építőanyag: Tégla
Fűtés jellege: Cirkó
Fűtés módja: Gáz
Komfort fokozat: Luxus komfort
Kor: 21-50 éves
Szintek száma: 2 szint
Egész szobák: 9
Fél szobák: 4

Egyéb jellemzők

  • Garázs

Térkép

Hasonló családi ház hirdetések

Eladó családi ház

Siófok

Siófok egyik legszebb utcájában, Balaton part közelében kínálom eladásra ...

Eladó családi ház

Siófok

Siófok üdülőövezeti részén, karnyújtásnyira a Balaton-parttól eladó ...

Eladó családi ház

Siófok

Engedje meg, hogy bemutassam Önnek Siófok egyik legszebb, jó ízlésről ...

Eladó családi ház

Siófok

Siófok kertvárosi részében eladó egy 15 apartmanból álló apartmanház! ...

Hasonló családi ház hirdetések

Eladó családi ház

Siófok

Siófok egyik legszebb utcájában, Balaton part közelében kínálom eladásra ...

Eladó családi ház

Siófok

Siófok üdülőövezeti részén, karnyújtásnyira a Balaton-parttól eladó ...

Eladó családi ház

Siófok

Engedje meg, hogy bemutassam Önnek Siófok egyik legszebb, jó ízlésről ...

Eladó családi ház

Siófok

Siófok kertvárosi részében eladó egy 15 apartmanból álló apartmanház! ...