Eladó családi ház Siófok 84 900 000 Ft

Leírás

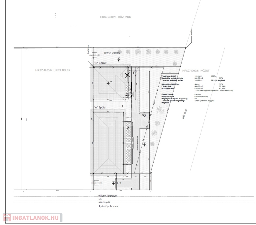
Siófokon a Bajcsy-Zsilinszki utca és a Rét utca közötti újonnan kialakuló lakóparkban, 900 méterre a Balaton partjától, 900m2-es telken nettó 63,07m2-es kulcsrakész ház eladó, 300m2-es kizárólagos használatú telekrésszel!

A közművek kialakítása folyamatban van.

Az ingatlant kivitelező cég építi, várható átadás 2025 harmadik negyedév.

14 lakás alapja elkészült, a tartószerkezeti falak kialakítása folyamatban van. Az ingatlanokhoz szükséges tégla, cserép, fa anyag, nyílászárók beszerzése megtörtént.

A tartószerkezeti falak 30-as porotherm téglából készültek, a padlón 10cm lépésálló szigeteléssel, a homlokzatokon 15cm-es EPS szigeteléssel, a vízszintes födémen 25 cm ásvénygyapot szigeteléssel. A külső nyílászárók korszerű 6 légkamrás, 3 rétegű üvegekkel szereltek.

Fűtéséről és a használati melegvízről monoblockos levegő-víz hőszivattyú gondoskodik, padlón történő hőleadással.

Burkolatok, szaniterek, beltéri ajtók választhatóak.


Érdeklődő ügyfeleinknek a tervdokumetációt és a műszaki tartalmat készséggel rendelkezésre bocsájtjuk.

INGYENES hitel tanácsadás, CSOK Plusz ügyintézés!
BANKFÜGGETLEN hitelcentrumunk az összes elérhető bank és hitelintézet ajánlatát versenyezteti az Ön kedvéért, ráadásul DÍJMENTESEN.

- Egyedi, bankfiókban nem elérhető kamat- és díjkedvezmények
- Hitelképesség vizsgálat
- Idő, energia és pénz megtakarítás
- Teljes hivatali ügyintézés

Amennyiben hirdetésem felkeltette az érdeklődését vagy egyéb információra van szüksége hívjon bizalommal!

Családi ház részletei

Ár: 84 900 000 Ft
Méret: 73 négyzetméter
Azonosító: 11408013
Irodai azonosító: 371424
Cím: Bajcsy-Zsilinszky út
Telek: 300 négyzetméter
Ingatlan állapota: Átlagos
Jelleg: családi ház
Építőanyag: Tégla
Fűtés jellege: Geotermikus
Fűtés módja: Hőszivattyú
Komfort fokozat: Összkomfort
Kor: 1-5 éves
Szintek száma: Földszintes
Egész szobák: 4

Egyéb jellemzők

  • Csatorna
  • Garázs
  • Pince
  • Terasz

Térkép

Hasonló családi ház hirdetések

Eladó családi ház

Siófok

Balaton déli part, Siófok, 75 m2 családi ház eladó. Az ingatlan a Belvároshoz ...

Eladó családi ház

Siófok

Siófok nyugodt részén, mégis elérhető közelségben a központtól, hagyományos építési ...

Eladó családi ház

Siófok

Siófok Sóstó városrészében, csendes utcában kínálok eladásra egy ...

Eladó családi ház

Siófok

Balaton déli part Siófok 160 m2 családi ház eladó. Az ingatlan Kiliti ...

Hasonló családi ház hirdetések

Eladó családi ház

Siófok

Balaton déli part, Siófok, 75 m2 családi ház eladó. Az ingatlan a Belvároshoz ...

Eladó családi ház

Siófok

Siófok nyugodt részén, mégis elérhető közelségben a központtól, hagyományos építési ...

Eladó családi ház

Siófok

Siófok Sóstó városrészében, csendes utcában kínálok eladásra egy ...

Eladó családi ház

Siófok

Balaton déli part Siófok 160 m2 családi ház eladó. Az ingatlan Kiliti ...