Eladó családi ház Sülysáp 69 900 000 Ft

Leírás

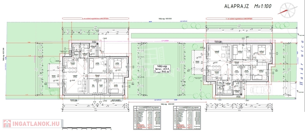
Sülysápon a Határ úton 960 m2-es telken, 93,76 m2-es három szoba + amerikai konyhás nappalival rendelkező, energiahatékony családi házak eladók!


Az építkezés December 11.-én megkezdődött a beton sávalap, a zsalukövezés és a szerlőbeton kialakításra került.

A Határ út Sülysáp Kóka felőli utolsó utcája, mégis közel van a központhoz. A telekről csodálataos panoráma nyílik a mögötte elhelyezkedő szántóra és az erdőre.

Az első ingatlan 438 m2-es kizárólagos használatú telekrésszel kerül kialakításra. Vételára: 69.900.000.- Ft.
A hátsó ingatlan egy 3 méter széles a telek jobb oldalán kialakított úton lesz megközelíthető, 522 m2 telekrésszel fog rendelkezni., vételára: 74.900.000.- Ft.

A tartószerkezeti falak Porotherm P30N+F téglából, betonkoszorúval, fa födémes tetőszerkezettel készülnek. A lábazat 10 cm polisztirol lépésálló, a homlokzatok 15cm-es EPS, a vízszintes födém 25 cm ásványgyapot szigeteléssel lesz ellátva.

Három rétegű üvegekkel szerelt, hat légkamrás műanyag thermo nyílászárók kerülnek beépítésre.

A minimális energiaigényt a megfelelő szigetelésen kívül a megújuló energiát használó gépészet is biztosítja. A fűtést levegő-víz hőszivattyús rendszer fogja végezni.


Burkolatok , szaniterek, belső ajtók, csaptelepek választhatóak a következő értékhatárig:

-Hidegburkolat: 3000 Ft.-/m2
-Melegburkolat: 3000 Ft.-/m2
-Beltéri ajtók: 30.000.Ft.-/db
-Fürdőkád: 40.000.- Ft.-
-Csaptelepek: 15000.- Ft.-/db

Magasabb árú választás is lehetséges, a különbség finanszírozásával.

A kivitelező korábban az utcában épített 6 ingatlant melyeket már birtokba adtuk, komoly érdeklődés esetén szívesen megmutatjuk őket referenciaként.

Központi elhelyezkedésének köszönhetően a közelben megtalálhatóak:
-óvoda 400m
-Móra Ferenc általános iskola 700m
-Tesco 800m
-Vasútállomás 550m
-Polgármesteri hivatal 750m
-Sülysáp 1-es Posta 750m
-Sülysáp Városi Piac 1km

Csok plusz igényelhető!

Tervezett átadás 2026 második negyedév.

Érdeklődő ügyfeleinknek a tervdokumetációt és a műszaki tartalmat készséggel rendelkezésre bocsájtjuk.

INGYENES hitel tanácsadás, CSOK Plusz ügyintézés!
BANKFÜGGETLEN hitelcentrumunk az összes elérhető bank és hitelintézet ajánlatát versenyezteti az Ön kedvéért, ráadásul DÍJMENTESEN.

- Egyedi, bankfiókban nem elérhető kamat- és díjkedvezmények
- Hitelképesség vizsgálat
- Idő, energia és pénz megtakarítás
- Teljes hivatali ügyintézés

Amennyiben hirdetésem felkeltette az érdeklődését vagy egyéb információra van szüksége hívjon bizalommal!

Családi ház részletei

Ár: 69 900 000 Ft
Méret: 94 négyzetméter
Azonosító: 11582603
Irodai azonosító: 390206
Cím: Határ út
Telek: 522 négyzetméter
Ingatlan állapota: Kitűnő
Jelleg: családi ház
Építőanyag: Tégla
Fűtés jellege: Geotermikus
Fűtés módja: Hőszivattyú
Komfort fokozat: Összkomfort
Kor: Új építésű
Szintek száma: Földszintes
Egész szobák: 4

Egyéb jellemzők

  • Csatorna
  • Garázs
  • Pince
  • Terasz

Térkép

Hasonló családi ház hirdetések

Eladó családi ház

Sülysáp

Sülysápon a Dózsa György út 130 szám alatt, 92,85 m2-es három szoba ...

Eladó családi ház

Sülysáp

Sülysápon a Dózsa Gyögy út és az Ady endre utca sarkán , 600 m2-es ...

Eladó családi ház

Sülysáp

Sülysápon, a Kókai utcában, csendes és rendezett környezetben kínálunk ...

Eladó családi ház

Sülysáp

Sülysápon a Határ úton , 874m2-es telken nettó 92,68 m2-es három szoba ...

Hasonló családi ház hirdetések

Eladó családi ház

Sülysáp

Sülysápon a Dózsa György út 130 szám alatt, 92,85 m2-es három szoba ...

Eladó családi ház

Sülysáp

Sülysápon a Dózsa Gyögy út és az Ady endre utca sarkán , 600 m2-es ...

Eladó családi ház

Sülysáp

Sülysápon, a Kókai utcában, csendes és rendezett környezetben kínálunk ...

Eladó családi ház

Sülysáp

Sülysápon a Határ úton , 874m2-es telken nettó 92,68 m2-es három szoba ...