Eladó családi ház Szada 124 500 000 Ft

Leírás

Kivételes Ajánlat!

A megfelelő otthon, a nyugalom záloga Fodor Ingatlanközvetítő kft kínálatában!!!

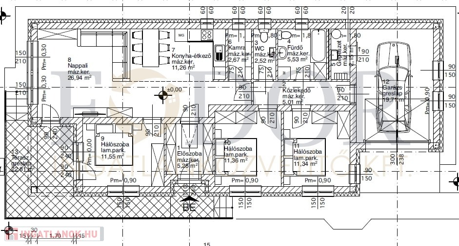
Szada, Várdomb részén csendes mellékutcában kínálok eladásra egy Újépítésű magas műszaki tartalommal épülő 1 db bruttó 116 nm-es nappali + 3 szobás, földszintes, garázzsal épülő családi házat. A 2025-es évi elvárásoknak megfelelően megújuló energiaként Hőszivattyúval, amely H-tarifás villanyórára lesz csatlakoztatva. Szobákban, konyhában, nappaliban, többi helyiségben padlófűtés, fürdőszobában törölköző szárítós radiátor. A ház teljesen körbe napozott, (DNY) tájolásának köszönhetően. Kellemes terei, elegáns megjelenése teszi egyedivé ezt a családi otthont.

A 950 nm-es telekre 1 db földszintes családi ház kerül megépítésre. Jelen állapotában az építkezés, folyamatosan halad. Foglalja le, és kövesse nyomon leendő háza épülését alakítsa belső elrendezését saját igényei szerint.

• Falazat: Phorotherm 30-as tégla
• Szigetelés: homlokzaton 15 cm-es Grafitos hőszigetelő rendszer
• H-tarifás villanyóra
• Vasbeton födém
• Nyílászárók: fehér műanyag 6 kamrás 3 rétegű üvegezéssel
• Áramellátás 3x20 Amper
• Hőszivattyú padlófűtéssel
• antracit beton cserép

Tulajdonságok:
• amerikai konyhás világos nappali
• 3 db hálószoba
• 1 dbfürdő / 2wc
• Saját privát telekterület !!!
• Riasztó rendszer vezetékelve
• elektromos kapu előkészítés

Ha Szadán egy kincset keres megtalálta!!!

Várható Átadás: 2025.III. negyedév

KÖRNYÉK:

Szada, Budapesttől 30 km-re található, a már beépült Várdomb lakóövezet közelében. A lakónegyed kiváló közlekedési adottságokkal bír, mind a tömegközlekedést (buszmegálló 2 percre) mind a gépjárművet használók könnyen elérhetik a környező településeket vagy a fővárost is. Bevásárlóközpont a közvetlen közelben, csak úgy, mint a virágbolt, a kozmetika, a zöldséges, pék, gyalogosan is könnyen megközelíthetők.

Babaváró támogatás, Csok Plusz, kamattámogatott hitel igénybe vehető.

A hirdetésben szereplő vételár a kulcsrakész állapotra vonatkozik. Burkolatok, szaniterek, beltéri ajtók választhatóak.

IRODÁNK INGYENES HITEL ÜGYINTÉZÉSSEL, TANÁCSADÁSSAL, SZÁMOS BANK AJÁNLATÁVAL ÉS AZ ÚJ CSOK FOLYÓSÍTÁSÁVAL VÁRJA ÜGYFELEIT.

Családi ház részletei

Ár: 124 500 000 Ft
Méret: 116 négyzetméter
Azonosító: 11563005
Irodai azonosító: 335716
Telek: 950 négyzetméter
Ingatlan állapota: Kitűnő
Jelleg: családi ház
Építőanyag: Tégla
Komfort fokozat: Összkomfort
Kor: Új építésű
Egész szobák: 4

Egyéb jellemzők

  • Garázs
  • Terasz

Hasonló családi ház hirdetések

Eladó családi ház

Szada

Szadán a Vasút Köz-ben, új építésű ingatlanok között, nettó 150,4 ...

Eladó családi ház

Szada

Megvételre kínálunk Szadán egy új építésű, HŐSZIVATTYÚS, ...

Eladó családi ház

Szada

Megvételre kínálunk Szadán egy új építésű, HŐSZIVATTYÚS, ...

Eladó családi ház

Szada

Szada egyik legszebb családi házát kínálom eladásra, a Szőlőhegyen! Hatalmas ...

Hasonló családi ház hirdetések

Eladó családi ház

Szada

Szadán a Vasút Köz-ben, új építésű ingatlanok között, nettó 150,4 ...

Eladó családi ház

Szada

Megvételre kínálunk Szadán egy új építésű, HŐSZIVATTYÚS, ...

Eladó családi ház

Szada

Megvételre kínálunk Szadán egy új építésű, HŐSZIVATTYÚS, ...

Eladó családi ház

Szada

Szada egyik legszebb családi házát kínálom eladásra, a Szőlőhegyen! Hatalmas ...