Eladó családi ház Szada 179 000 000 Ft

Leírás


Szada Gödöllőhöz közeli részén, természetközeli helyen, de mégis jó infrastruktúra mellett, kiváló elosztással rendelkező, nagyon jó fekvésű, nappali + 4 szobás, nagy teraszos, garázsos energiahatékony családi ház referenciákkal rendelkező, megbízható építőtől eladó!

Műszaki adatok:

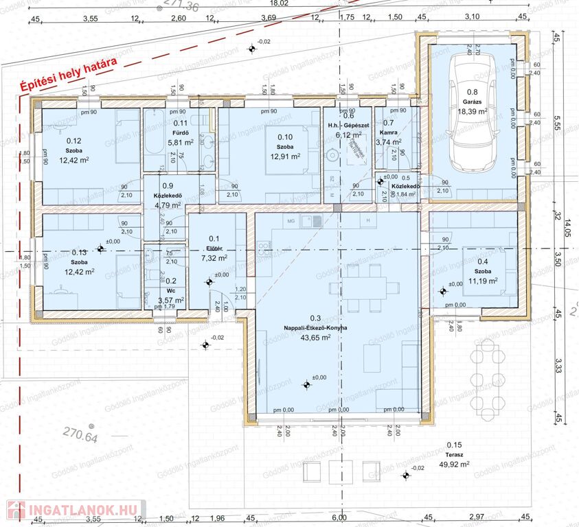
- Az ingatlan egyszintes, hasznos lakóterülete 135nm.

- Falazata 30-as PTH téglából + 15cm dryvittal készül.

- Előre gyártott szeglemezes tető, szürkés-barna színű pikkelyes cserépfedés.

- Minden helyiségben 3 réteg üvegezésű műanyag nyílászárók kerülnek beépítésre elektromos aluredőnyökkel.

- Fűtéséről Daikin hősszivattyú gondoskodik padlófűtéssel.

- Hűtő-Fűtő klíma.

- Rengeteg elektromos kiállás lesz a házban.

- Igény esetén, megbeszélés alapján napelem rendszer is kiépíthető.

- 3X20A áram bevezetése, riasztó előkésztés az ár részét képezi.

- A lakás igényesen kialakított belső terekkel, gondosan kiválasztott minőségi burkolatokkal, modern beltéri ajtókkal épül, a vizes helyiségek Hansgrohe csaptelepekkel lesznek felszerelve.

Elosztás: 

- Előtér, tágas nappali-konyha-étkező, közlekedő, 4 szoba, egy zuhanyzós és egy kádas fürdőszoba, háztartási helyiség-gépészet, kamra, valamint 18,39nm-es garázs és 49,92nm-es terasz kerül kialakításra.

Telek:

- 926nm-es telken helyezkedik el.

- A kerítés elektromos kapuval és kaputelefonnal lesz kiépítve.

Környék:

- Csendes, természetközeli környezet.

- Buszmegálló gyalog 10 percre van, iskola, óvoda a központban található.

- Bevásárlási lehetőségek (Lidl Szada, Gödöllő Stop Shop stb.), autópálya kocsival 5-10 perc távolságra.

Irányár: 179Mft



Hivatkozási szám: 2518304.

Megtekinthető telefonos időpont egyeztetés alapján:

Sápi Tamás +36 20 944-7025 sapitamas@godolloi.hu 

GÖDÖLLŐ INGATLANKÖZPONT - www.godolloi.hu: Gödöllő és környéke legnagyobb ingatlan választéka /Gödöllő, Szada, Veresegyház, Kistarcsa, Kerepes, Erdőkertes/ eladó-kiadó családi ház, telek, lakás! Ingatlan építés és felújítás!

Családi ház részletei

Ár: 179 000 000 Ft
Méret: 135 négyzetméter
Azonosító: 11613731
Irodai azonosító: 2518304
Telek: 926 négyzetméter
Ingatlan állapota: Kitűnő
Jelleg: családi ház
Építőanyag: Tégla
Komfort fokozat: Dupla komfort
Kor: Új építésű
Egész szobák: 5

Hasonló családi ház hirdetések

Eladó családi ház

Szada

Szeretne falun, jó levegőn élni, de fontos Önnek a főváros közelsége? ...

Eladó családi ház

Szada

Álmai otthona várja Szada rózsa dombján! Különleges ingatlan, prémium ...

Eladó családi ház

Szada

CasaNetWork Ingatlaniroda kínálatában eladó családi birtok Szada csendes, ...

Eladó családi ház

Szada

CasaNetWork Gödöllő Ingatlaniroda kínálatában eladó családi ház SzadánSzada ...

Hasonló családi ház hirdetések

Eladó családi ház

Szada

Szeretne falun, jó levegőn élni, de fontos Önnek a főváros közelsége? ...

Eladó családi ház

Szada

Álmai otthona várja Szada rózsa dombján! Különleges ingatlan, prémium ...

Eladó családi ház

Szada

CasaNetWork Ingatlaniroda kínálatában eladó családi birtok Szada csendes, ...

Eladó családi ház

Szada

CasaNetWork Gödöllő Ingatlaniroda kínálatában eladó családi ház SzadánSzada ...