Eladó családi ház Szeged 112 000 000 Ft

Leírás


Legyen a szomszédom! – Az utolsó elérhető ház ebben a projektben a Liliom Lakópark főutcáján



13 éve élek a családommal a Liliom Lakóparkban.

Nem térképről és nem prospektusból ismerem a környéket – hanem a mindennapokból.

Ha szeretné, szívesen elmondom, milyen itt élni.



Szegeden, a Liliom Lakóparkban, a Vinkler László utcában kínálom megvételre ezt az új építésű, önálló házat, amelynek ikerpárja már elkelt.



Főbb jellemzők:



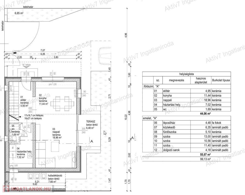
- 315 m² saját használatú telekrész (a teljes telek 676 m²)

- 99,13 m² hasznos alapterület



- nappali + 3 hálószoba

- fürdőszoba az emeleten,

- külön WC kézmosóval a földszinten

- nincs közös fal a szomszéddal

- tetőterasz vagy nagyobb emeleti szoba kialakításának lehetősége

- buszmegálló közvetlenül a ház előtt



Műszaki tartalom – röviden:

-

- kulcsrakész kivitelezés

- tégla falazat, korszerű hőszigeteléssel

- alacsony rezsi a modern hőszivattyús fűtési rendszernek köszönhetően.

- burkolatok-, ajtók-, szaniterek választhatók, igény szerint módosíthatók



A négy egymás melletti telken összesen 8 új ház épül, ezek közül már csak a hirdetéseimben szereplő ingatlanok eladóak!



A közelben épülő BYD szegedi autógyár miatt a környék nemcsak otthonként, hanem hosszabb távú befektetésként is értelmezhető.



Ha kérdése van, vagy személyesen is megnézné a helyszínt, hívjon bizalommal.

Családi ház részletei

Ár: 112 000 000 Ft
Méret: 99 négyzetméter
Azonosító: 11601581
Irodai azonosító: 675301141
Cím: Vinkler László út
Telek: 315 négyzetméter
Ingatlan állapota: Kitűnő
Jelleg: családi ház
Építőanyag: Tégla
Kor: Új építésű

Hasonló családi ház hirdetések

Eladó családi ház

Szeged

IDE CSAK KÖLTÖZNI KELL! Szeged kertvárosi részén , Petőfi telep és ...

Eladó családi ház

Szeged

Szegeden a Katona József utcában 80 m2 + 37 m2-es családi ház, 513 m2-es ...

Eladó családi ház

Szeged

  Szeged-Újszegeden, a város egyik legkedveltebb, nyugodt, ...

Eladó családi ház

Szeged

Szegeden a Katona József utcában 80 m2 + 37 m2-es családi ház, 513 m2-es ...

Hasonló családi ház hirdetések

Eladó családi ház

Szeged

IDE CSAK KÖLTÖZNI KELL! Szeged kertvárosi részén , Petőfi telep és ...

Eladó családi ház

Szeged

Szegeden a Katona József utcában 80 m2 + 37 m2-es családi ház, 513 m2-es ...

Eladó családi ház

Szeged

  Szeged-Újszegeden, a város egyik legkedveltebb, nyugodt, ...

Eladó családi ház

Szeged

Szegeden a Katona József utcában 80 m2 + 37 m2-es családi ház, 513 m2-es ...