Eladó családi ház Szeged 129 000 000 Ft

Leírás


Legyen a szomszédom! Legyen a szomszédom! – Az utolsó elérhető házak egyike a Liliom Lakópark főutcáján



13 éve élek a családommal a Liliom Lakóparkban.

Nem térképről és nem prospektusból ismerem a környéket – hanem a mindennapokból.

Ha szeretné, szívesen elmondom, milyen itt élni.



Szegeden, a Liliom Lakóparkban, a Vinkler László úton kínálom megvételre ezt az új építésű, önálló házat, amelynek ikerpárja is eladó.



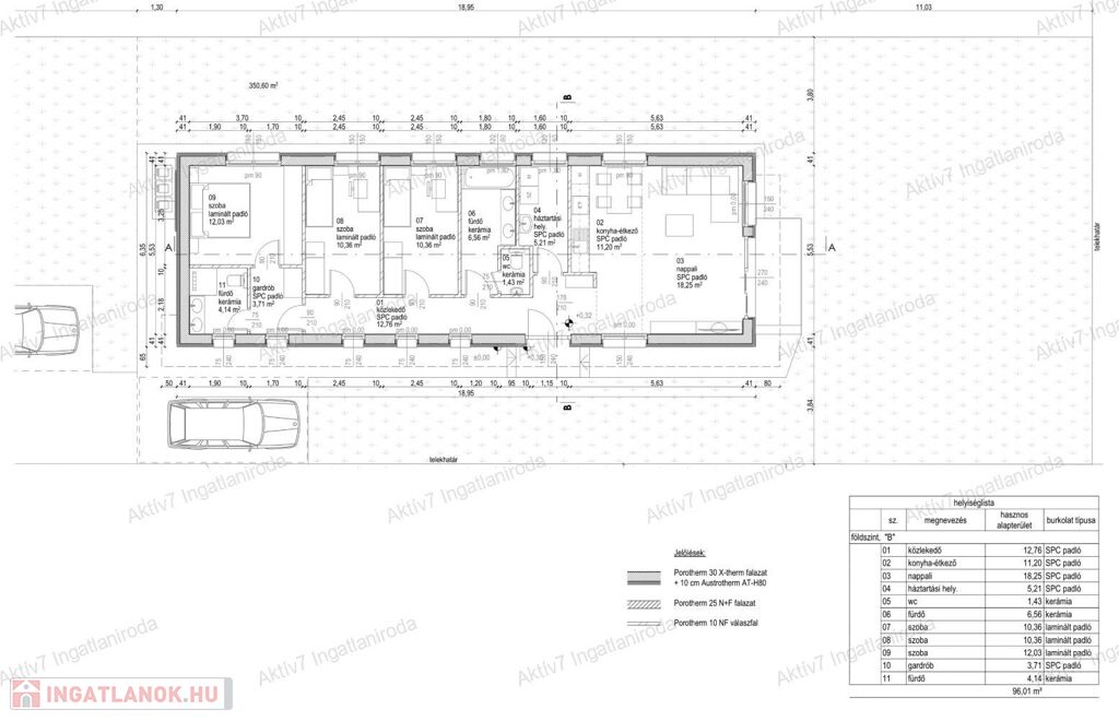
Főbb jellemzők:



- 262 m² saját használatú telekrész (a teljes telek 700 m²)

- 110,4 m² hasznos alapterület



- nappali + 3 hálószoba + dolgozó

- fürdőszoba az emeleten,

- külön WC kézmosóval a földszinten

- nincs közös fal a szomszéddal, a másik épület 12 méter távolságra

- buszmegálló közvetlenül a ház előtt



Műszaki tartalom – röviden:



- kulcsrakész kivitelezés

- tégla falazat, 10 cm vastag polisztirol hőszigeteléssel

- alacsony rezsi a modern hőszivattyús fűtési rendszernek köszönhetően.

- burkolatok-, ajtók-, szaniterek választhatók, igény szerint módosíthatók



A négy egymás melletti telken összesen 8 új ház épül, ezek közül már csak az én hirdetéseimben szereplő ingatlanok eladóak!



A közelben épülő BYD szegedi autógyár miatt a környék nemcsak otthonként, hanem hosszabb távú befektetésként is értelmezhető.



Ha kérdése van, vagy személyesen is megnézné a helyszínt, hívjon bizalommal.

Családi ház részletei

Ár: 129 000 000 Ft
Méret: 116 négyzetméter
Azonosító: 11608621
Irodai azonosító: 675301155
Cím: Vinkler László út
Telek: 262 négyzetméter
Ingatlan állapota: Épülő
Jelleg: családi ház
Építőanyag: Tégla
Kor: Új építésű
Egész szobák: 4

Hasonló családi ház hirdetések

Eladó családi ház

Szeged

Szeged Újszeged városrészében, az Akácvirág lakóparkban, eladó egy ...

Eladó családi ház

Szeged

Szuper év végi akció! Hihetetlen kedvezmény! Limitált ideig tartó ajánlat! 2025. ...

Eladó családi ház

Szeged

Modern családi ház eladó Szegeden A 90 m²-es családi ház egy 718 m²-es ...

Eladó családi ház

Szeged

Szeged belvárosában rendezett, könnyen megközelíthető ...

Hasonló családi ház hirdetések

Eladó családi ház

Szeged

Szeged Újszeged városrészében, az Akácvirág lakóparkban, eladó egy ...

Eladó családi ház

Szeged

Szuper év végi akció! Hihetetlen kedvezmény! Limitált ideig tartó ajánlat! 2025. ...

Eladó családi ház

Szeged

Modern családi ház eladó Szegeden A 90 m²-es családi ház egy 718 m²-es ...

Eladó családi ház

Szeged

Szeged belvárosában rendezett, könnyen megközelíthető ...