Eladó családi ház Szeged 168 000 000 Ft

Leírás


Ha Szeged egyik közkedvelt kertvárosi részében szeretne élni akkor ez a ház önnek készül.

Szeged Petőfi telep városrészében a Zágráb utcában épül ez az egyszintes minden igényt kielégítő családi ház.

Eredetileg itt egy klasszikus Kádár kocka épület állt, amiből a külső falak egyrésze megmaradt, egyebekben teljesen új építésű.

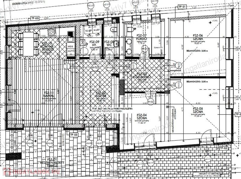
Az ingatlan telek területe 732 m2, az épülő családi ház 123 m2, amerikai konyha-nappali, 3 hálószoba, fürdőszoba WC-vel, külön WC, háztartási helyiség, közlekedők és egy részben fedett terasz helyiségekkel, a mellékelt alaprajz szerint.

Az ingatlanban hőszivattyús fűtés, hűtés lesz kialakítva, H-tarifával üzemeltetve.

 A napelem rendszer előkészítése is meglesz.

 Az udvaron építésre kerül egy 45 m2 területű, 2 autó beállására alkalmas elektromos kapuval ellátott garázs.

Az udvar egy része zöld felület, egy része térkövezett, körbe kerített elektromos kapuval ellátva. Az ingatlan 2025 év végére várhatóan elkészül.

Az elhelyezkedése kiváló, csendes, rendezett utcában, újabb építésű családi házak szomszédságában.

A belvárosba jutás egyszerű, 10 perc se kell, se híd, se sorompó, de még lámpa sem akadályozza a haladásunkat egészen a Dóm térig!

 

Amennyiben az ingatlan felkeltette érdeklődését, ha további információra van szüksége, hívjon bizalommal!

Családi ház részletei

Ár: 168 000 000 Ft
Méret: 137 négyzetméter
Azonosító: 11494471
Irodai azonosító: 675300988
Telek: 732 négyzetméter
Ingatlan állapota: Átlagos
Jelleg: családi ház
Építőanyag: Tégla
Komfort fokozat: Dupla komfort
Kor: Új építésű
Egész szobák: 4

Hasonló családi ház hirdetések

Eladó családi ház

Szeged

CSALÁDI HÁZ MELLÉKÉPÜLETTEL ALSÓVÁROSON! Szeged-Alsóváros frekventált ...

Eladó családi ház

Szeged

AZONNAL KÖLTÖZHETŐ KULCSRAKÉSZ INGATLANOK A HOLT MAROS BRIDGE KÖZELÉBEN! LEGYEN ...

Eladó családi ház

Szeged

AZONNAL KÖLTÖZHETŐ, ÚJ ÉPÍTÉSŰ, ENERGIATAKARÉKOS, MODERN IKERHÁZ!!!! Újszeged ...

Eladó családi ház

Szeged

AZONNAL KÖLTÖZHETŐ KULCSRAKÉSZ INGATLANOK A HOLT MAROS BRIDGE KÖZELÉBEN!LEGYEN ...

Hasonló családi ház hirdetések

Eladó családi ház

Szeged

CSALÁDI HÁZ MELLÉKÉPÜLETTEL ALSÓVÁROSON! Szeged-Alsóváros frekventált ...

Eladó családi ház

Szeged

AZONNAL KÖLTÖZHETŐ KULCSRAKÉSZ INGATLANOK A HOLT MAROS BRIDGE KÖZELÉBEN! LEGYEN ...

Eladó családi ház

Szeged

AZONNAL KÖLTÖZHETŐ, ÚJ ÉPÍTÉSŰ, ENERGIATAKARÉKOS, MODERN IKERHÁZ!!!! Újszeged ...

Eladó családi ház

Szeged

AZONNAL KÖLTÖZHETŐ KULCSRAKÉSZ INGATLANOK A HOLT MAROS BRIDGE KÖZELÉBEN!LEGYEN ...